
|
看到過很多豪華的農村別墅,好看歸好看,但是面積太大的,宅基地批不下來,造價太高,隨受能力有限,選來選去還是小戶型的最實用。這12款農村別墅,占地面積都在100平方米以內,戶型小巧實用,室內設計卻五臟俱全,每個功能都做到最大限度的合理利用,造價也都是普通農村人都建得起的,主體20萬起,打工5年就能建一套農村小別墅。 戶型一
編號:3026 開間:8.6米 進深:10米 占地面積:90.02平方米 建筑面積:253.06平方米
戶型二
編號:3030 開間:11.4米 進深:7.2米 占地面積:86.6平方米 建筑面積:255.4平方米
第一款和第二款都是很經濟實用的戶型,外觀沒有過多的裝飾,雖然不華麗但很樸實,特別是室內功能各方便都很合理,考慮到農村生活也要與時俱進,戶型一設計有多個套間,適合居家。 戶型三
編號:3042 開間:12米 進深:9.3米 占地面積:97.6平方米 建筑面積:275.4平方米
戶型四
編號:3089 開間:8.9米 進深:9.9米 占地面積:91.91平方米 建筑面積:252.21平方米
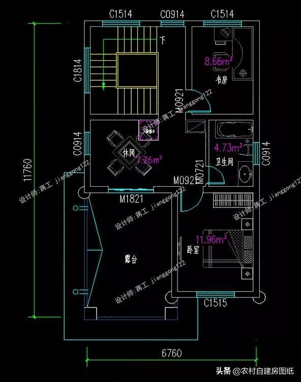
帶有屋頂露臺,露臺不僅是休閑的好地方,同時也是觀景效果最佳的地方,在最高層的露臺上你可以看到別人整個鄉村的田園風光,帶給你不一樣的感受。 戶型五
編號:3127 開間:6.76米 進深:11.76米 占地面積:81.07平方米 建筑面積:225.14平方米
戶型六
編號:3128 開間:8.51米 進深:7.69米 占地面積:70平方米 建筑面積:194.86平方米
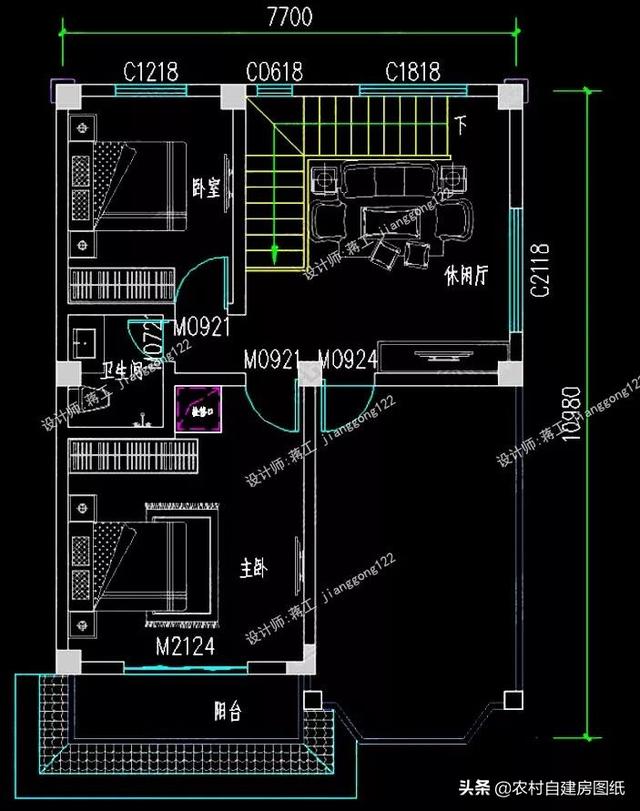
二層半的設計,非常清新田園風格,圓形360度的大透窗,別致的屋頂造型,都為鄉村增加了一道美麗的風景。 戶型七
編號:3179 開間:11.7米 進深:9.2米 占地面積:100平方米 建筑面積:240.11平方米
戶型八
編號:3277 開間:7.7米 進深:10.98米 占地面積:82.57平方米 建筑面積:226.99平方米
戶型九
編號:3284 開間:10.94米 進深:7.6米 占地面積:82.19平方米 建筑面積:239.52平方米
一款歐式風格農村別墅,進深比較窄,雖然設計比較有局限性,但是外觀效果圖非常大氣。 戶型十
編號:3285 開間:9.2米 進深:10.2米 占地面積:95.07平方米 建筑面積:226.13平方米
戶型十一
編號:3291 開間:9.7米 進深:10米 占地面積:99.19平方米 建筑面積:252.03平方米
帶車庫非常實用,外觀非常有層次感,顏色搭配比較清新,符合農村的審美。 戶型十二
編號:3393 開間:11.24米 進深:9.54米 占地面積:88.73平方米 建筑面積:251.34平方米
這12款戶型都適合宅基地比較小的家庭建房,面積小加高層數,使用空間更大,造價主體20萬起,加上裝修50萬就能入住。 圖紙之家-專注農村別墅/自建房設計18年,集合國內200余位經驗豐富的設計師,被評為口碑最好的農村建筑設計公司! |

新款240平方米三層雙拼別墅設計圖,歐式兄弟雙拼圖片
占地:240平方米
農村三層帶露臺、帶車庫房屋設計圖,含外觀圖片
占地:155平方米
簡約大氣四開間二層自建房設計圖,16x10米,經典耐看高顏值
占地:160平方米
農村四間兩層別墅房屋設計圖,含外觀圖片
占地:160平方米
戳中年輕人喜好!時尚三層自建房,簡約時尚設計,住著舒適自然
占地:169.76平方米
2026新款戶型三層新農村別墅房屋設計圖紙,外觀對稱
占地:160平方米
小戶型農村三層房屋設計圖,占地120平米,布局非常合理,外表典
占地:120平方米
新農村四合院別墅圖片及戶型方案圖,全套圖紙可施工
占地:154平方米左右
實用三層新農村住宅設計圖,鄉村別墅設計圖(含外觀效果圖)
占地:102.34平方米
占地180平方米二層農村新款樓房別墅設計圖,外觀漂亮
占地:180平方米
漂亮實用三層自建別墅設計圖紙,超高的性價比
占地:160平方米
面寬12米新中式三層別墅設計圖,回家建房就選它,全家人都愛的
占地:180平方米
農村三間兩層樓房設計圖,帶車庫,戶型簡單實用
占地:140平方米
對稱設計二層歐式別墅設計圖,優雅時尚有品位
占地:151.85平方米
農村18萬元二層小樓圖,帶開放式車庫
占地:110平方米
帶車庫二層165平別墅房屋設計圖,含效果圖
占地:165平方米
110平米一層小別墅設計方案,布局四室兩廳一廚兩衛
占地:110.5平方米
時尚漂亮的二層小洋樓設計圖,設計師建房都選這個方案
占地:149.27平方米
客廳中空三層復式別墅房屋設計圖,帶外觀效果圖
占地:145平方米
帶地下室獨棟三層高端別墅房圖紙設計圖,復式客廳旋轉樓梯
占地:146.145平方米
推薦:10套新農村自建房設計圖,2026年最新設計
閱讀次數:4825737次
100套鄉村別墅圖片大全,2026年最新設計
閱讀次數:2492203次
6款農村蓋一層平房的設計圖,10萬元就能建起來
閱讀次數:1852637次
這11個一層農村自建房別墅火爆了朋友圈!我最喜歡戶型十!你呢
閱讀次數:750268次
農村6萬元建一層小別墅圖,你敢相信嗎
閱讀次數:567686次
農村5萬塊就能自建房,6套普通房子設計圖分享,你沒看錯!
閱讀次數:419410次
8套農村漂亮三間平房圖片,非常適合在農村修建!
閱讀次數:411197次
農村自建房化糞池怎么做?附方案及施工過程
閱讀次數:391783次
農村一層三間平房設計圖,告別土氣養老房,讓人忍不住點贊
閱讀次數:350581次
新農村二層樓房圖片造價12萬,挑一套回家建房吧!
閱讀次數:349126次
