
|
雖說回農村建房很劃算,但是現在在農村建房也不是一件容易的事,既要住的舒適,布局要合理,外觀的設計也要符合現代人的審美需求,這樣建出來的房子才住的舒心,在老家也有面子。即使在老家居住的時間不長,但是在逢年過節,或是以后老來的時候住進去會特別的溫馨和幸福。今天小安要給大家帶來的是一款住進去會讓人感到幸福的別墅。
這款別墅采用的是框架的結構形式,主體造價:20-25萬 ,開間:8米 進深:12米, 占地面積:99平方米。這款帶濃烈的歐式風格,門前流暢的羅馬柱支撐,白色石雕護欄裝飾。大型的落地窗,既時尚又保證了充足的光照。
一層入戶是堂屋,左側是客廳,客廳設有三扇窗戶,室內通透又明亮。再是北側的廚房和餐廳相連,既能相互利用空間又能減少室內的油煙干擾。西北角的臥室出門便是公共衛生間,方便日常洗漱。
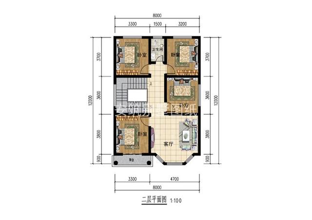
二層北面是兩間臥室,公共衛生間位于中間,便于日常起居生活。南面的臥室帶有陽臺,很好的保障了室內的通風與采光,還能眺望鄉村風景。
三層北面的公共衛生間的設計與一二層位置相同,方便施工,也能很好的節約施工成本。還設有活動室,親戚朋友來家中做客時也不怕沒地方娛樂。南面的大露臺,不僅滿足了農村日常生活中的晾曬需求,有閑情時還可以打造成空中花園。 圖紙之家-專注農村別墅/自建房設計18年,集合國內200余位經驗豐富的設計師,被評為口碑最好的農村建筑設計公司! |

四層簡單新農村房屋設計圖紙,造價低,適合農村自建
占地:多種戶型
方方正正的二層農村別墅設計圖,普通農村人都能建
占地:201.05平方米
帶露臺陽光房二層建房別墅設計圖,13米乘12米,享受農村悠然慢
占地:143.54平方米
新中式高端豪宅三層別墅自建房設計圖,大戶型經典
占地:270平方米左右
歐式二層5大間別墅設計圖,新穎獨特的外觀,面寬20米
占地:180.14平方米
簡單實用的四層農村自建房屋設計圖,占地100平米左右
占地:100平方米
適合兄弟自建的二層雙拼別墅設計方案,帶效果圖
占地:180平方米
農村帶車庫兩層歐式農村別墅設計圖紙,占地220平方米左右
占地:221平方米
大戶型三層別墅設計圖,高貴大氣,占地面積將近300平
占地:273.33平方米
120平方房子設計圖帶效果圖,農村自建房戶型推薦
占地:120平方米
8萬元二層農村房子圖片及設計圖,簡易二層小樓,占地50平米
占地:50平方米
占地120平米清新脫俗簡單二層別墅設計方案,含效果圖
占地:119.01平方米
農村4開間二層別墅設計圖,帶堂屋帶露臺,進深9米
占地:126平方米左右
110平左右三間兩層農村別墅房屋設計圖,含外觀效果圖
占地:107平方米
80-90平米二層經典小別墅房屋設計圖,左右對稱外觀
占地:88.46平方米
三層新中式別墅建筑設計圖紙及圖片,11.66m*9.76m,典雅耐看
占地:114平方米
農村三層蓋房設計圖大全,最新的設計,最新的戶型
占地:150平方米
復式三層雙拼別墅設計圖,客廳中空,旋轉樓梯
占地:350平方米
經典三層歐式造型別墅圖紙,功能房豐富,挑空客廳
占地:180平方米
豪華復式三層別墅設計圖紙,效果圖+建筑施工圖+結構施工圖
占地:126平方米
推薦:10套新農村自建房設計圖,2026年最新設計
閱讀次數:4825737次
100套鄉村別墅圖片大全,2026年最新設計
閱讀次數:2492203次
6款農村蓋一層平房的設計圖,10萬元就能建起來
閱讀次數:1852637次
這11個一層農村自建房別墅火爆了朋友圈!我最喜歡戶型十!你呢
閱讀次數:750268次
農村6萬元建一層小別墅圖,你敢相信嗎
閱讀次數:567686次
農村5萬塊就能自建房,6套普通房子設計圖分享,你沒看錯!
閱讀次數:419410次
8套農村漂亮三間平房圖片,非常適合在農村修建!
閱讀次數:411197次
農村自建房化糞池怎么做?附方案及施工過程
閱讀次數:391783次
農村一層三間平房設計圖,告別土氣養老房,讓人忍不住點贊
閱讀次數:350581次
新農村二層樓房圖片造價12萬,挑一套回家建房吧!
閱讀次數:349126次
