
|
在農村建房,大家普遍關心的就是造價和占地面積了,現在建別墅的越來越多,批的宅基地也越來越小了,很多家庭只能批到100平左右。 ?下面這3款別墅圖紙,占地八九十平,造價只要20幾萬,非常實用上檔次的別墅。
別墅圖紙1:JF9260,層數:2層,結構形式:磚混結構,主體造價20-26萬,開間8.26米,進深10.38米,占地面積84.11平方米,建筑面積168.76平方米,建筑高度10米
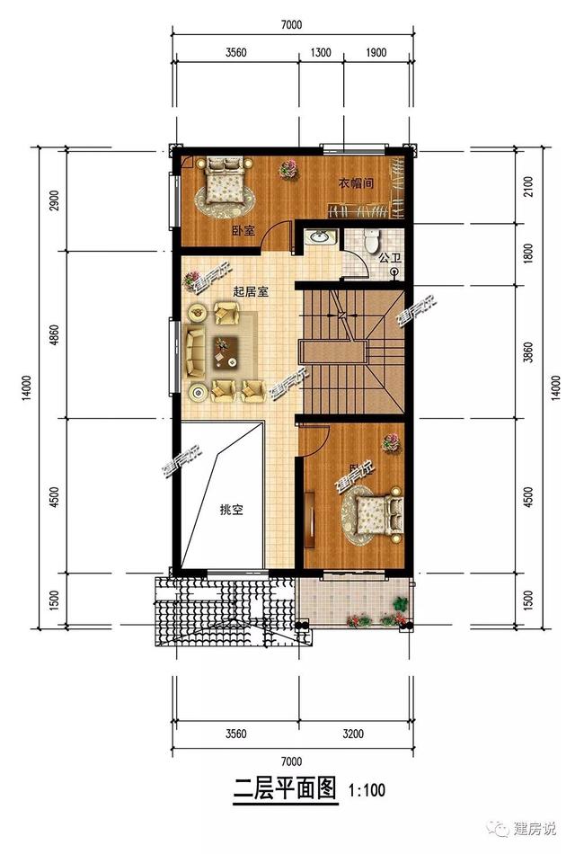
別墅圖紙2:層數:2層,結構形式:框架結構,主體造價20-26萬,開間7米,進深14米,占地面積93.2平方米,建筑面積180.7平方米,建筑高度8.5米
別墅圖紙3:JF8326,層數:2層,結構形式:框架結構,造價22-28萬,開間8.24米,進深12.04米,占地面積88.6平方米,建筑面積183.4平方米,建筑高度9.3米
咱們農村人都想花小錢蓋好房,這3款別墅圖紙,就是完美的戶型,收藏好圖紙,建房不迷路。 圖紙之家-專注農村別墅/自建房設計18年,集合國內200余位經驗豐富的設計師,被評為口碑最好的農村建筑設計公司! |

好看又簡單的二層小樓設計圖,農村自建20萬元左右
占地:130平方米
兄弟雙拼別墅設計戶型圖及設計方案圖,帶外觀效果圖,外觀好看
占地:185平方米(單棟)
三層兄弟雙拼別墅設計圖,外觀大氣漂亮,顏色搭配協調,一層為
占地:270平方米
簡歐二層別墅設計圖紙含效果圖片,寶家鄉墅經典風格
占地:137.34平方米
180平方別墅房屋設計圖,外觀效果圖美觀
占地:180平方米
100平新農村三層復式房屋別墅設計圖紙,造價30萬左右
占地:106平方米
二層帶架空層的農村別墅設計圖,功能齊全,超越十里八村
占地:130平方米
帶車庫鄉下雙拼別墅設計圖,三層造型漂亮大全
占地:256平方米
歐式復式型三層別墅施工設計圖紙及效果圖大全
占地:164平方米
新款240平方米三層雙拼別墅設計圖,歐式兄弟雙拼圖片
占地:240平方米
經典中式三合院設計,一層空間實用大氣,輕松實現理想家園!
占地:160.53平方米
農村中式兩層雙拼別墅房屋設計圖,含效果圖片
占地:200平方米
100平方米農村二層CAD設計圖紙帶外觀圖,12X8米
占地:100平方米
12×12米農村二層經濟型自建房設計圖,設計了6間臥室
占地:140平方米
造價30萬多的三層簡歐新農村別墅設計施工圖紙及效果圖
占地:133平方米左右
150平歐式別墅房屋設計圖,外觀精美、氣派
占地:150平方米
2026年新款別墅外觀圖,新中式風格,比簡歐大氣,時尚
占地:135平方米
100平左右農村一層平房小洋樓建筑設計圖紙,14米×8米
占地:98平方米
自建一層農村別墅圖,經濟實用新選擇,建房必備參考戶型!
占地:142.88平方米
簡單大方四間二層小樓房設計圖,帶車庫,帶大露臺
占地:180平方米
推薦:10套新農村自建房設計圖,2026年最新設計
閱讀次數:4825737次
100套鄉村別墅圖片大全,2026年最新設計
閱讀次數:2492203次
6款農村蓋一層平房的設計圖,10萬元就能建起來
閱讀次數:1852637次
這11個一層農村自建房別墅火爆了朋友圈!我最喜歡戶型十!你呢
閱讀次數:750268次
農村6萬元建一層小別墅圖,你敢相信嗎
閱讀次數:567686次
農村5萬塊就能自建房,6套普通房子設計圖分享,你沒看錯!
閱讀次數:419410次
8套農村漂亮三間平房圖片,非常適合在農村修建!
閱讀次數:411197次
農村自建房化糞池怎么做?附方案及施工過程
閱讀次數:391783次
農村一層三間平房設計圖,告別土氣養老房,讓人忍不住點贊
閱讀次數:350581次
新農村二層樓房圖片造價12萬,挑一套回家建房吧!
閱讀次數:349126次
