圖紙介紹:本戶型為150平歐式別墅房屋設計圖,外觀精美、氣派,外墻磚顏色可以按照自己的喜好選擇,戶型合理,寬大的客廳+配上旋轉樓梯,這是豪宅的標配,二層、三層都有客廳、娛樂廳,方便客人來家玩,也讓整體布局看起來更豁亮。
占地面積:14.0m*12.3m(進深含門廳),一層建筑面積150平方米左右;
建筑層高:三層;
建筑高度:14.1米(含屋頂);
設計功能:
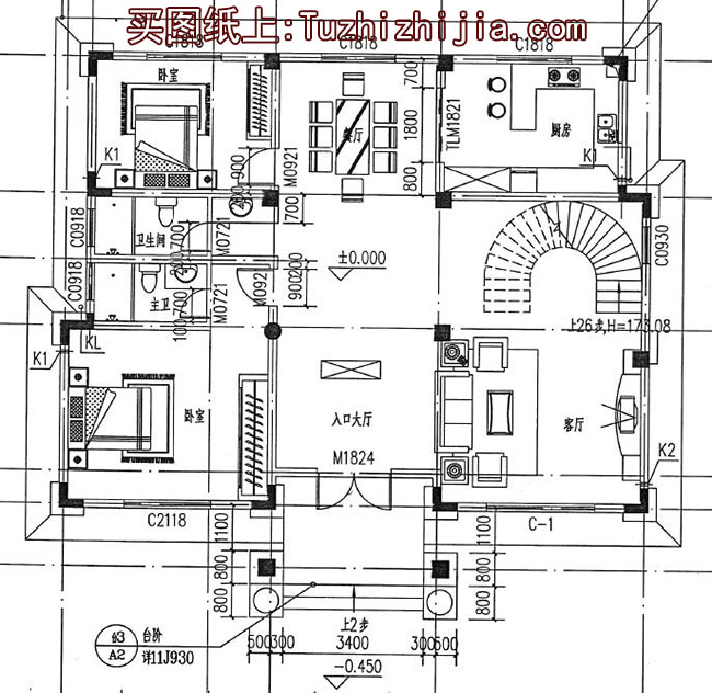
一 層:門廳、客廳、餐廳、廚房、主臥(帶衛生間)、次臥、衛生間;
二 層:客廳、休閑廳、書房、主臥(帶衛生間)、臥室x2(帶衣帽間)、衛生間、陽臺;
三 層:客廳、休閑廳、臥室x2、衛生間、露臺;
圖紙目錄:
建 筑 圖:建筑設計說明、一層平面圖、二層平面圖、三層平面圖、屋頂平面圖、正立面圖、背立面圖、左立面圖、右立面圖、1-1剖面圖、樓梯大樣圖、門斗大樣圖、節點大樣圖、門窗詳圖、門窗表等;
結 構 圖:結構設計說明、基礎平面布置圖、基礎大樣圖、一層梁結構平面圖、二層梁結構平面圖、三層梁結構平面圖、屋頂梁結構平面圖、二層板結構平面圖、三層板結構平面圖、屋面板結構平面圖、樓梯大樣圖、節點大樣圖等;
給排水圖:給排水設計說明、一層給排水平面圖、二層給排水平面圖、三層給排水平面圖、屋頂給排水平面圖、衛生間大樣圖、給排水系統圖等;
電 氣 圖:電氣設計說明、配電系統圖、弱電系統圖、配電干線系統圖、一層照明平面圖、二層照明平面圖、三層照明平面圖、一層插座平面圖、二層插座平面圖、三層插座平面圖、一層弱電平面圖、二層弱電平面圖、三層弱電平面圖、接地平面圖、屋頂防雷平面圖等;
全套A3圖紙+效果圖,拿到即可施工。





































































































