
|
時至今日,在老家為父母修建一座養老別墅,已經不再是稀奇事了。但要如何建的好,的確是難題。 今天小編就為大家分享一處343㎡新中式父母養老別墅,庭院幽深,還設置了蓮花水池,簡直可以算是一個小小桃源。
本案自建別墅案例,位于廣東,是一處新中式別墅,占地面積194㎡,建筑面積達343㎡,是典型的磚混結構,不包含室內裝修,僅僅花了50萬,在房價逆天的廣東,這個花費,可以算是白菜價了。
△自建別墅 總平面示意圖 該宅基地情況較為復雜,東北兩側均是村內的小巷,而西南兩側是鄰居住宅。這種宅基地,雖顯得復雜, 卻又讓人有了曲徑通幽的入戶之感。 因為是為父母養老所建,所以業主在自建伊始,就要求需要有庭院,并且為了契合父母對中式的鐘愛之情,最終本案項目確定為二層新中式別墅。
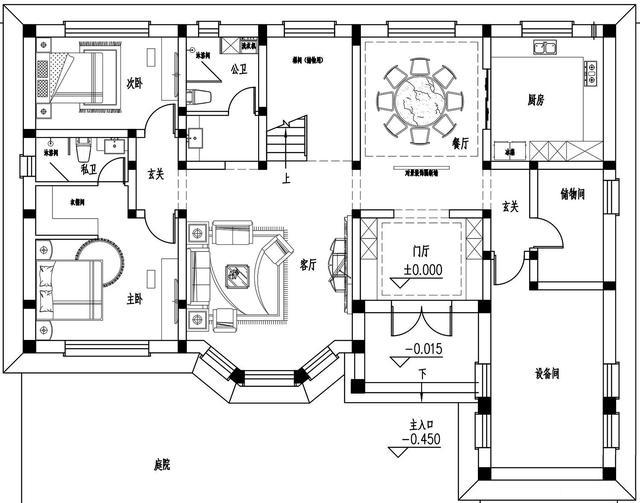
△自建別墅 一層平面圖 一層平面布局,主要功能為居住待客。南側為主入口,并且父母長輩房設置在南側客廳,這樣方便父母日常居住使用。
△自建別墅 二層平面圖 二層則主要以休閑居住為功能需求,可以讓業主歸家時偶爾可以居住。同時在二層空間設計了雙陽臺、露臺以及書房燈空間,并且還設置了棋牌室,方便父母日常使用。
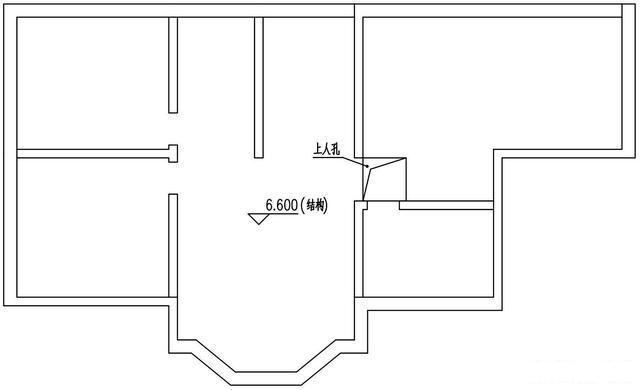
△自建別墅 閣樓層平面圖 而頂層閣樓層,主要以儲物為功能,增設了多處儲物間,可以方便儲物。
△自建別墅 南側效果圖
△自建別墅 西南側效果圖 整體別墅,建筑風格以新中式為主調,并且南立面被設置成了別墅柱造型,屋檐之下配合柱體,進行了立面上的空間劃分,使得這棟別墅,不論是水平還是垂直方向,都具有豐富的層次感。
△自建別墅 庭院效果圖 同時設計師還在入戶庭院之中設置了一處蓮池,并且以木板和石板兩結合的庭院,塑造出愜意優雅的庭院景觀。
△自建別墅 鳥瞰圖 在整體里面材料上,主要以暖色系真石漆和文化石的搭配使用,讓整體別墅氛圍顯得莊重卻不失現代靈動之感。
△自建別墅 東南側效果圖
△自建別墅 院門效果圖 外墻設置上,以高低起伏的變化來呈現出墻面的整體靈動之感,保證室內空間隱私的同時,又讓整體效果更為莊重氣派。 院門設計,簡約大氣,門邊搭配門檐,彰顯出一派高雅格調,難以想象這是一處父母養老別墅,它更像是一處極為成熟的都市別墅。
△自建別墅 庭院效果圖
△自建別墅 庭院效果圖 入院效果極佳,從二樓露臺可以直接俯瞰整個庭院里的景致,一樹梨花壓海棠,蓮池之中錦鯉嬉戲。入戶之時,亦可在信步之間,觀賞到整個庭院之中的詩意之美。
△自建別墅 庭院效果圖
△自建別墅 庭院效果圖 在庭院之中,設計師設置了多出景觀裝飾,二層室內休閑露臺,和南側植物景觀以及水景,做了上下呼應,相映成趣之中,讓院落更具自然氣息。
△自建別墅 東立面圖
△自建別墅 西立面圖
△自建別墅 南立面圖
△自建別墅 北立面圖 圖紙之家-專注農村別墅/自建房設計18年,集合國內200余位經驗豐富的設計師,被評為口碑最好的農村建筑設計公司! |

110平預算20萬內三層別墅設計圖,含效果圖
占地:110平方米
農村兩層半樓房設計圖,平面功能分區明確,布置合理
占地:180平方米
130平四間二層小洋樓設計圖,含外觀圖片
占地:130平方米
四層豪華歐式別墅自建樓房設計圖紙,帶效果圖和全套施工圖
占地:300平方米
全套歐式二層別墅設計cad圖紙,含效果圖,帶車庫
占地:211平方米
鄉下建房一層戶型圖,一層住宅設計圖紙,誰說一層平房不能叫別
占地:200平方米
面寬11米現代風二層小別墅,平屋頂設計,緊跟潮流時尚前衛
占地:94.43平方米
二層別墅設計圖紙及效果圖,占地200平米,外觀精致優雅,小有情
占地:200平方米
面寬18米二層農村大別墅設計圖,可帶電梯,舒適又實用
占地:138.29平方米
農村二層小別墅自建房屋設計圖,客廳中空,占地150平米
占地:150平方米
最新設計的三層農村別墅圖紙,帶車庫,帶露臺,占地150平米左右
占地:150平方米
造價25萬農村二層小別墅設計圖,外觀效果圖美觀、精致
占地:165平方米
二層復式雙拼別墅設計圖(客廳中空),含外觀效果圖
占地:195平方米
26萬二層平頂別墅樓設計圖,客廳中空,占地120平米
占地:120平方米
樓中樓客廳挑高二層別墅設計圖,復式別墅方案推薦
占地:122平方米
簡歐式三層小別墅設計圖,帶地下室,客廳中空,占地150平米
占地:150平方米
適合農村自建四合院圖片,中式二層四合院別墅設計施工圖紙
占地:232平方米
闊氣高端的三層別墅設計圖,亮得恰到好處,永遠也住不膩
占地:160平方米
農村160平四間兩層樓房設計圖,全套施工圖+外觀效果圖片
占地:160平方米
110平左右二層小洋樓設計圖,含效果圖片
占地:108平方米
推薦:10套新農村自建房設計圖,2026年最新設計
閱讀次數:4825737次
100套鄉村別墅圖片大全,2026年最新設計
閱讀次數:2492203次
6款農村蓋一層平房的設計圖,10萬元就能建起來
閱讀次數:1852637次
這11個一層農村自建房別墅火爆了朋友圈!我最喜歡戶型十!你呢
閱讀次數:750268次
農村6萬元建一層小別墅圖,你敢相信嗎
閱讀次數:567686次
農村5萬塊就能自建房,6套普通房子設計圖分享,你沒看錯!
閱讀次數:419410次
8套農村漂亮三間平房圖片,非常適合在農村修建!
閱讀次數:411197次
農村自建房化糞池怎么做?附方案及施工過程
閱讀次數:391783次
農村一層三間平房設計圖,告別土氣養老房,讓人忍不住點贊
閱讀次數:350581次
新農村二層樓房圖片造價12萬,挑一套回家建房吧!
閱讀次數:349126次
