
|
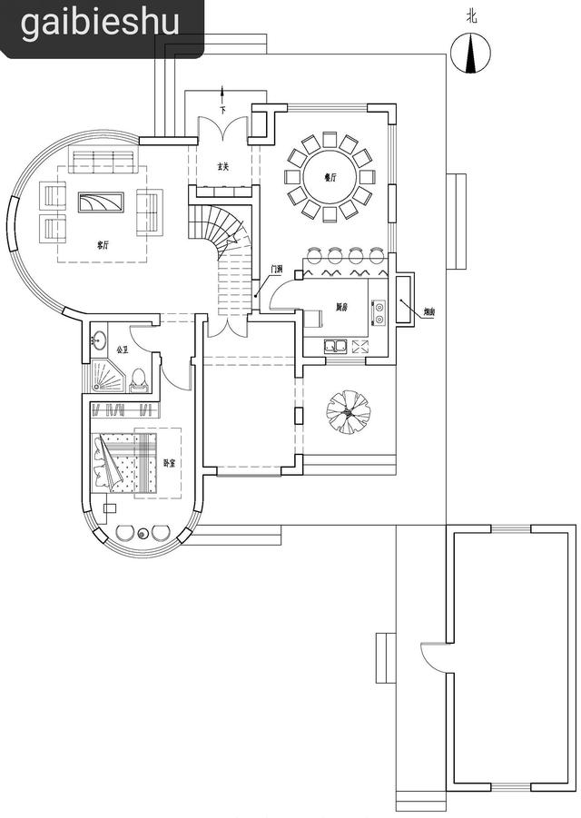
獨特的東西總是能留給別人深刻的印象,這款三層別墅造型非常特別,讓人看一眼都覺得難忘,坡屋頂與尖頂結合,圓柱造型設計,有挑空大客廳,旋轉樓梯,豪華臥室套房,真正的別墅! 項目位于安徽,建筑占地140平米左右。基地東、西兩側為鄰居家住宅,北側為村內主路,南側在花園后仍是村內道路。基地面積較大,建筑不會受到四周環境影響。 ![]() 戶型信息 開間:11.5米 進深:13.4米 建筑面積:224平方米 土建造價:52萬 ![]() ![]() 【室內布局】 ![]() 一層:玄關,挑空客廳,廚房 ,餐廳,臥室,公衛 ![]() 二層:臥室(帶露臺),臥室?2,書房,公衛 ![]() 三層:主臥(帶3露臺,衛生間) 圖紙之家-專注農村別墅/自建房設計18年,集合國內200余位經驗豐富的設計師,被評為口碑最好的農村建筑設計公司! |

農村建房的“面子天花板”!新中式簡歐結合三層別墅,進門就被
占地:225.98平方米
新農村自建三層樓房設計圖紙,外觀簡單大方
占地:137平方米
四層豪華別墅設計圖及效果圖,高端房屋設計方案
占地:250平方米
開間9到10米簡約別墅設計圖紙帶效果圖,全套別墅設計方案
占地:122平方米
帶地下室的農村三層雙拼別墅設計圖,復式戶型,面寬23米
占地:261.6平方米左右
一層半小別墅設計圖帶效果圖,農村自建帶閣樓一層半方案
占地:155平方米
230平方米豪華歐式二層別墅CAD設計圖紙帶外觀效果圖,21.6×15米
占地:236平方米
一層帶架空層的農村別墅設計圖,防潮、停車、放農具全都滿足
占地:163.78平方米
13×10米現代簡約風格三層別墅圖,坡屋頂和平屋頂完美結合
占地:120平方米
新農村現代簡約別墅建筑設計圖紙(含外觀效果圖),28萬左右
占地:107平方米
農村13萬元二層小樓圖,簡單易建,造價低
占地:110平方米
新農村自建二層樓房戶型設計圖,簡單大氣,外觀漂亮精致
占地:多種戶型
一層4間自建平房別墅及全套戶型圖紙,占地160平左右,簡單實用
占地:162.13平方米
兄弟雙拼四間三層別墅設計圖,農村自建推薦戶型方案
占地:260平方米
二層半房子設計圖及效果圖,客廳中空,南北通透
占地:160平方米
高顏值又實用的一層雙拼鄉村別墅設計圖,舒適度堪比豪宅
占地:217.3平方米
中式兄弟雙拼別墅設計圖紙,類似合院造型,美爆了
占地:221.9平方米
農村四間二層別墅設計圖,七室二廳帶車庫,室內寬敞鄰居都羨慕
占地:217.1平方米
仿古中式三合院設計圖紙,帶堂屋,適合農村自建
占地:173平方米
農村二層帶車庫樓房設計圖,帶外觀效果圖片
占地:125平方米
推薦:10套新農村自建房設計圖,2026年最新設計
閱讀次數:4825737次
100套鄉村別墅圖片大全,2026年最新設計
閱讀次數:2492203次
6款農村蓋一層平房的設計圖,10萬元就能建起來
閱讀次數:1852637次
這11個一層農村自建房別墅火爆了朋友圈!我最喜歡戶型十!你呢
閱讀次數:750268次
農村6萬元建一層小別墅圖,你敢相信嗎
閱讀次數:567686次
農村5萬塊就能自建房,6套普通房子設計圖分享,你沒看錯!
閱讀次數:419410次
8套農村漂亮三間平房圖片,非常適合在農村修建!
閱讀次數:411197次
農村自建房化糞池怎么做?附方案及施工過程
閱讀次數:391783次
農村一層三間平房設計圖,告別土氣養老房,讓人忍不住點贊
閱讀次數:350581次
新農村二層樓房圖片造價12萬,挑一套回家建房吧!
閱讀次數:349126次
