
|
現在在農村,家家戶戶都蓋起了新房子,手頭寬裕的家庭更是將房子蓋到了三層。人們對自建房的設計方案要求也越來越高,咨詢這方面信息的人員還是越來越多,從大家的言談中不難看出,不僅要建筑美觀大方,內部布局合理實用,還要有低廉的價格和便利的施工,本期,我們推薦將近三套設計方案,從一層到三層,滿足多元化的居住需求,看看有沒有你中意的外形。 第一套:
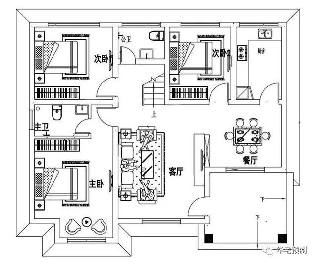
這款一層自建房戶型設計十分獨特,雙坡屋頂設計給人一種流暢的線條感,寬敞的走廊設計為住戶提供閑聊、晾曬、賞景的空間,室內布局流暢,空間層次分明,功能靈活性設計,是一款實用且美觀的戶型設計。
占地面積:11.76m*10.06m,106平方米左右;建筑層高:一層;建筑高度:6.225米(含屋頂); 設計功能:
一層設有;客廳、餐廳、廚房、主臥(帶衛生間)、臥室×2、衛生間×; 第二套:
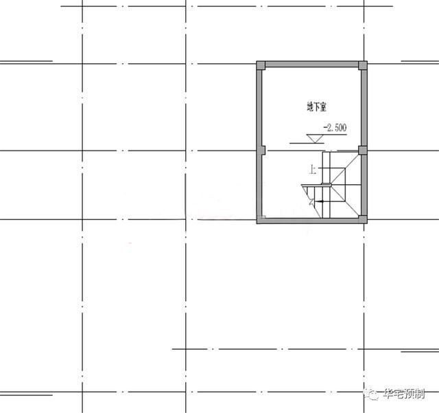
本戶型為農村二層樓簡單大氣的設計方案,自建小別墅推薦戶型設計圖,帶一個小的地下室,占地不到110平米,一層外墻采用自然的木色文化石點綴,二層采用淡黃色墻磚/真石漆裝飾,搭配藍色坡屋頂,整體色彩搭配古樸自然,富有層次感,室內布局流暢,尺寸劃分合理,主體造價25萬左右,施工難度較低,適合農村建造
占地面積:10.0m*11.6m,106平方米左右;建筑層高:二層;建筑高度:9.4米(含屋頂); 設計功能:
地下室
一層戶型:客廳、餐廳、廚房、衛生間、臥室;
二層戶型:臥室×3、棋牌室、露臺、陽臺; 第三套:
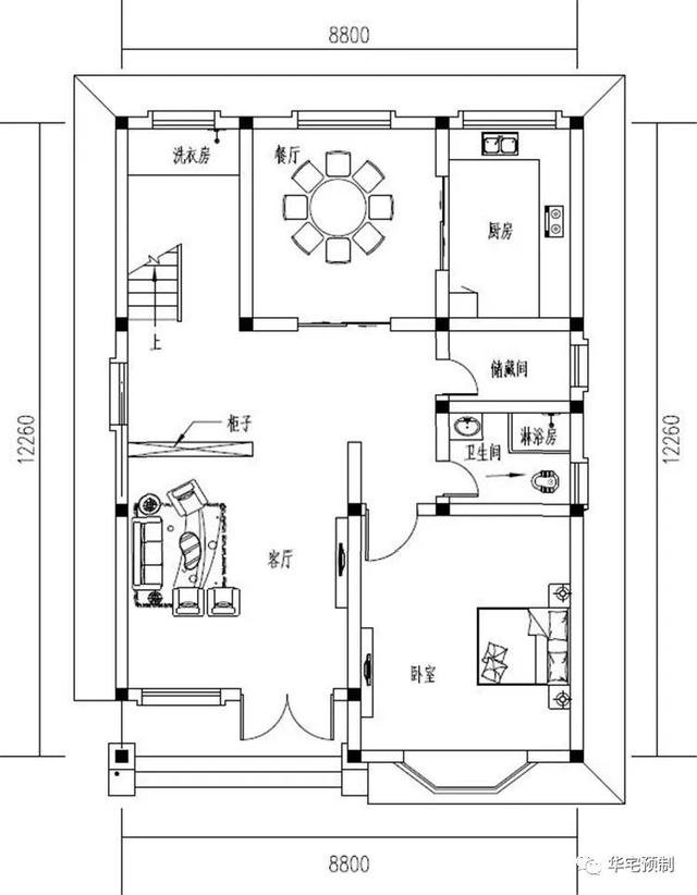
本戶型為帶陽臺房農村小開間三層自建別墅設計圖,建筑為現代簡歐式三層別墅,立面采用淡黃色面磚,與屋頂部橙色瓦片搭配,塑造一個簡潔而又富有藝術形象的家。左側方形大柱支撐拱形門樓,右側采用八角窗設計,打破了原來方方正正的房子造型,使得整體新穎奪目,更加美觀。
占地面積:8.8m*12.26m,107平方米;建筑層高:二層;建筑高度:12.16米(含屋頂); 設計功能:
一層戶型:客廳,臥室(帶衛生間),儲藏間,洗衣房,廚房,餐廳;
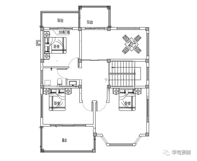
二層戶型:臥室X2,陽臺,衛生間,主臥(帶書房和衣帽間);
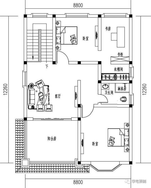
三層戶型:陽臺房,客廳,臥室,衛生間,主臥(帶書房和衣帽間); 裝修效果圖:
客廳
臥室
廚房 圖紙之家-專注農村別墅/自建房設計18年,集合國內200余位經驗豐富的設計師,被評為口碑最好的農村建筑設計公司! |

五間兩層農村自建房設計圖,大門居中真氣派,空間寬敞生活質量
占地:219.94平方米
110平房子設計圖,經典的農村自建房屋設計圖
占地:110平方米
240平方米新農村四合院兩層樓房施工設計圖紙帶外觀圖
占地:234平方米
私人別墅房屋cad施工設計圖,造型精致、美觀
占地:105平方米
135平復式別墅房屋設計圖,外觀時尚、漂亮
占地:135平方米
兄弟雙拼三層小戶型別墅設計圖紙,160平方米(單戶80平)
占地:163平方米
農村三層四合院別墅設計圖紙,自建房建這棟面子十足
占地:227.49平方米
造價25萬農村二層小別墅設計圖,外觀效果圖美觀、精致
占地:165平方米
最新款二層鄉下別墅設計圖,新中式風格,24萬建好主體
占地:150.94平方米
私人二層歐式別墅建筑設計圖(效果圖+全套別墅設計方案)
占地:144平方米
四層豪華別墅設計圖及效果圖,高端房屋設計方案
占地:250平方米
農村四間兩層樓房設計圖,外觀時尚,戶型實用
占地:180平方米
2026年新款二層半農村自建小別墅設計圖紙,占地150平方米
占地:150平方米
小占地三層現代時尚風別墅設計圖,平屋頂占地不足100平
占地:98.35平方米
農村二層樓房設計圖帶外觀圖片,造價20多萬,13.3x11
占地:146平方米
二層雙拼別墅外觀效果圖及施工圖,帶露臺,14乘12米
占地:168平方米
110平方米新農村三層房屋設計圖紙,含效果圖,帶車庫
占地:113平方米
造價65萬左右的三層歐式別墅房屋設計施工CAD圖紙及效果圖
占地:178平方米
新農村三層豪華歐式別墅,復式高端自建房設計圖紙及效果圖
占地:多種戶型
新農村小洋樓三層別墅戶型設計圖,開間9米,造價25萬
占地:94平方米
推薦:10套新農村自建房設計圖,2026年最新設計
閱讀次數:4825737次
100套鄉村別墅圖片大全,2026年最新設計
閱讀次數:2492203次
6款農村蓋一層平房的設計圖,10萬元就能建起來
閱讀次數:1852637次
這11個一層農村自建房別墅火爆了朋友圈!我最喜歡戶型十!你呢
閱讀次數:750268次
農村6萬元建一層小別墅圖,你敢相信嗎
閱讀次數:567686次
農村5萬塊就能自建房,6套普通房子設計圖分享,你沒看錯!
閱讀次數:419410次
8套農村漂亮三間平房圖片,非常適合在農村修建!
閱讀次數:411197次
農村自建房化糞池怎么做?附方案及施工過程
閱讀次數:391783次
農村一層三間平房設計圖,告別土氣養老房,讓人忍不住點贊
閱讀次數:350581次
新農村二層樓房圖片造價12萬,挑一套回家建房吧!
閱讀次數:349126次
