
|
人到暮年,忙碌了一生,為兒為女也算是操累了心,大多數人到了退休的年紀都追求的不多了,至親過好生活,自己隨便找個偏靜的地方,無風無波的走完這一生,這就算是圓滿了。 今天給大家帶來的是一套一層中式院子,面積大,功能齊全,有山有水,十分的適合養老生活。
建筑整體為中式風格,造型比較簡約,白墻黑瓦,打造干練的中式風貌。 整個建筑占地550個平方左右,面積比較充裕,所以在功能設施上就比較齊全,有車庫,有涼亭,有假山和人工水,庭院面積也是比較大,室外活動空間很大,甚至還能滿足老年人的廣場舞場地需求。
整個建筑呈現一個折梯型,南面以抄手游廊為連接點,環繞整個建筑。
側面看去,整個建筑的形態十分美觀,起伏不斷,和周邊的山脈相互相應,很好的融入到自然中去。
下面來看下建筑四個立面的設計效果:
建筑南面,也就是正面。
建筑西面,面對大門的左面。
建筑東面,面對大門的右面。
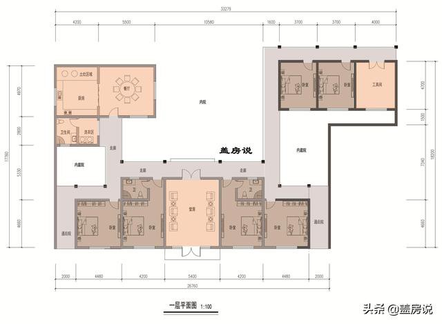
建筑北面,也就是背面。 最后來看下平面布局效果:
整個建筑分為三個部分,主房和左右廂房。 主房設立在靠北面中間位置,設有一個堂屋和四個臥室,基本滿足業主家庭居住需求。 左廂房設計成廚房餐廳,作為餐飲區域使用,和居住區域干濕分離,做到干凈衛生。 右廂房則是設計成客房和工具間,已備家庭宴會來客居住。 圖紙之家-專注農村別墅/自建房設計18年,集合國內200余位經驗豐富的設計師,被評為口碑最好的農村建筑設計公司! |

農村一層房屋設計圖,自建一層房子圖紙推薦
占地:200平方米
130平米左右三層農村小別墅,經典永不過時三層小洋樓
占地:130平方米
新農村三層帶露臺自建房設計施工圖,農村自建別墅推薦
占地:112平方米
新農村二層房屋設計圖紙(全套建筑施工圖紙+外觀效果圖)
占地:85平方米
L字型自建房屋設計圖,一層別墅類型,外觀效果圖漂亮
占地:188.62平方米
180平方別墅房屋設計圖,外觀效果圖美觀
占地:180平方米
三層三間別墅設計圖方案,含外觀圖片,自建推薦
占地:125平方米
帶車庫農村二層雙拼別墅設計圖,外觀現代
占地:235平方米
帶地下室的農村自建三層半歐式別墅設計圖,看著真豪氣!
占地:142.45平方米
戶型好的三層帶獨立車庫的樓房設計圖,含外觀效果圖
占地:148平方米
農村中式二層4開間別墅圖紙設計方案圖,帶車庫戶型
占地:198平方米
帶庭院中式二層四合院別墅設計效果圖片,方方正正
占地:404平方米
農村一層小別墅設計圖,經濟大氣,16米乘9米
占地:124.12平方米
鄉村三層別墅設計圖紙,帶屋頂花園(含效果圖)
占地:150平方米
2026最受歡迎的三層農村小別墅設計圖紙,占地155平方米
占地:155平方米
100平方米實用二層半小別墅設計圖紙(帶閣樓層),住著安逸
占地:100平方米左右
100平米左右簡單實用的二層樓房設計圖,施工簡單造價低
占地:95平方米
開間4米多的農村三層別墅設計圖,一開間三層自建房
占地:66.65平方米
大開間小進深的一層別墅設計圖,進深僅8.7米,獨立餐廚照樣美觀
占地:130.32平方米
造型新穎漂亮的農村二層現代風別墅設計圖,老少皆宜的外觀
占地:144.54平方米
推薦:10套新農村自建房設計圖,2026年最新設計
閱讀次數:4825737次
100套鄉村別墅圖片大全,2026年最新設計
閱讀次數:2492203次
6款農村蓋一層平房的設計圖,10萬元就能建起來
閱讀次數:1852637次
這11個一層農村自建房別墅火爆了朋友圈!我最喜歡戶型十!你呢
閱讀次數:750268次
農村6萬元建一層小別墅圖,你敢相信嗎
閱讀次數:567686次
農村5萬塊就能自建房,6套普通房子設計圖分享,你沒看錯!
閱讀次數:419410次
8套農村漂亮三間平房圖片,非常適合在農村修建!
閱讀次數:411197次
農村自建房化糞池怎么做?附方案及施工過程
閱讀次數:391783次
農村一層三間平房設計圖,告別土氣養老房,讓人忍不住點贊
閱讀次數:350581次
新農村二層樓房圖片造價12萬,挑一套回家建房吧!
閱讀次數:349126次
