
|
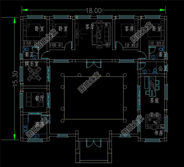
人的一生有很多愿望或者目標,擁有自己的一棟房子,你我想便是其中之一吧。在城里有房,也可以回到家鄉建一棟新房,偶爾遠離城市的喧囂,擁抱農村的幽靜又何嘗不是一件美事呢?就一棟一層就可以,不用太高簡簡單單就可以,今天小編推薦5款農村一層小樓,絕對不會浪費你家宅基地,每一分錢都花得值。 第一款:農村一層中式合院別墅設計圖以及戶型圖,帶小院子的規劃![]() 有庭有院,風水絕佳,排隊來參觀的人不少灰墻黑瓦,木質窗格,保留四合院的古樸風采,褪去繁復的造型,既保留中式古宅的意蘊,同時更具有生活氣息。大門圍墻也有雕花窗格,注重細節的雕刻,別有一番風味。別墅與山水相接,自然融入在大自然的風光秀麗中,好一幅山水田園水墨畫,此情此景只有夢中有,人間哪得幾回聞。四間臥室,足夠一家人居住,兩間帶有獨衛,生活更加方便,也有利于保護個人的隱私性。客廳居于走廊和臥室正中間,將室內布局劃分得更加清晰明了,整個空間合理有序,生活有條不紊。入門就是大庭院,盡顯大戶人家的大手筆,讓人心生敬畏。周圍又是幽深的走廊,凸顯古樸質感。右邊書房茶座,可以引客在此休憩,泡上一壺清茶,盡享片刻悠閑。 占地面積:18m*15.3m,202.15平方米左右; 建筑層高:一層; 建筑高度:6.275米(含屋頂); 設計功能: 一層戶型:客廳、廚房、餐廳、娛樂室、書房、茶座、臥室(帶衛生間)x2、臥室、庭院 ![]() 第二款:帶地下室的一層別墅設計圖以及戶型圖,農村自建房推薦![]() 地下室可以當酒窖或儲物間(大小施工時可以自行調整),廚房就在餐廳的旁邊。四個臥室,家里有老人也可以一起住,還配有內衛,造價經濟,住起來也十分舒適,建起來很氣派,農村建房就選它。 占地面積:17.46m*12.56m,206平方米左右; 建筑層高:一層; 建筑高度:7.051米(含屋頂); 設計功能: 地下室:酒窖; 一層戶型:客廳、廚房、餐廳、臥室X2、臥室(帶衛生間)X2、衛生間 ![]() ![]() 第三款:帶院子的一層農村別墅自建房設計圖以及戶型圖,造價不高,養老房首選![]() 家里有老人家一般比較適合住一樓。別墅外觀是以灰色為主,搭配藍色坡屋頂,整體大氣沉穩,精致美觀,內部布局合理,院子里可以放松休息,同時還能種點花花草草,聽起來還是很美好的。 占地面積:11.83m*12.5m,144.819平方米; 建筑層高:一層; 建筑高度:6.741米(含屋頂); 設計功能: 一層戶型:客廳、廚房、餐廳、臥室X3、臥室(帶衛生間)、儲藏室、衛生間 ![]() 第四款:一層簡單自建房設計圖以及戶型圖,占地面積140平方米![]() 絳紅色的斜坡屋頂清新明快,屋檐的線條輕盈流暢,頗具造型感。黃色墻身素雅簡單,沒有過多的外墻裝飾,但是氣質卻更加平易近人。進入屋內,迎面的便是寬敞通透的客廳以及餐廳。設有四間臥室,廚房與餐廳處在同一區域,方便干凈。大面積的門廳給人一種大氣之風,合理利用可以進行適當的植物配置進行裝飾。 占地面積:13.76m*9.6m,137.76平方米左右; 建筑層高:一層; 建筑高度:6.3米(含屋頂); 設計功能: 一層戶型:客廳、廚房、餐廳、臥室x4、衛生間x2 ![]() 第五款:農村中式一層仿古自建房設計圖以及戶型圖,灰墻青瓦,占地160多平米![]() 外觀中式韻味十足,古典古韻,三間臥室的設計,還帶雜物間,不管從哪個角度看,這棟房子都屬于很舒適的類型;除去居室空間外,剩余最大的面積就是客廳了,相信生活在這樣一棟房子里,定會讓人感到無比舒心! 占地面積:15.6m*10.8m,168.48平方米左右; 建筑層高:一層; 建筑高度:6.63米(含屋頂); 設計功能: 一層戶型:客廳、廚房、餐廳、臥室x3、衛生間、雜物間(地下酒窖) ![]() 以上就是小編推薦的五款農村自建一層小別墅設計圖以及戶型圖,你家想建哪款?評論區告訴我吧!
圖紙之家-專注農村別墅/自建房設計18年,集合國內200余位經驗豐富的設計師,被評為口碑最好的農村建筑設計公司! |

14米×10米農村二層小別墅自建房設計圖,外觀設計時尚美觀
占地:125平方米
農村小洋樓設計圖及效果圖,二層樓房設計圖
占地:120平方米
2026二層農村新款別墅戶型圖,占地不到110平米
占地:110平方米
歐式二層農村別墅設計圖,140平方米戶型方正的好方案
占地:142.51平方米
二層農村房屋設計圖紙,帶效果圖和全套施工方案圖
占地:多種戶型
實用三層新農村住宅設計圖,鄉村別墅設計圖(含外觀效果圖)
占地:102.34平方米
農村大戶型中式二層四合院別墅設計圖含外觀效果圖,戶型經典、
占地:464平方米
多臥室復式二層別墅房屋設計圖,含外觀效果圖
占地:175平方米
帶車庫二層165平別墅房屋設計圖,含效果圖
占地:165平方米
170平方米農村二層房屋設計施工圖,外觀圖時尚、好看
占地:172平方米
中國最好看的二層農村房子圖片及施工圖紙,20萬現代風格
占地:130平方米
160平小開間大進深農村三層別墅設計圖紙
占地:158.73平方米
農村2開間三層經濟別墅設計圖,9.6米面寬,實用布局
占地:127.68平方米
一層新中式三合院設計,建好城里大平層都不香了
占地:294.12平方米
歐式小型二層別墅效果圖片,帶全套Cad別墅設計圖紙
占地:120平方米
10萬農村別墅設計圖小戶型,經濟、耐看、實用
占地:多種戶型
中式古風別墅設計圖,一層三合院設計,經濟舒適,時尚與傳統的
占地:275.7平方米
三層農村小別墅設計圖,一層帶商鋪,占地110平米,經濟實用
占地:110平方米
150平方米大平層別墅設計圖,時尚大氣舒適實用
占地:149.43平方米
帶車庫二層農村豪華別墅設計圖,主體25萬左右
占地:170平方米左右
推薦:10套新農村自建房設計圖,2026年最新設計
閱讀次數:4825737次
100套鄉村別墅圖片大全,2026年最新設計
閱讀次數:2492203次
6款農村蓋一層平房的設計圖,10萬元就能建起來
閱讀次數:1852637次
這11個一層農村自建房別墅火爆了朋友圈!我最喜歡戶型十!你呢
閱讀次數:750268次
農村6萬元建一層小別墅圖,你敢相信嗎
閱讀次數:567686次
農村5萬塊就能自建房,6套普通房子設計圖分享,你沒看錯!
閱讀次數:419410次
8套農村漂亮三間平房圖片,非常適合在農村修建!
閱讀次數:411197次
農村自建房化糞池怎么做?附方案及施工過程
閱讀次數:391783次
農村一層三間平房設計圖,告別土氣養老房,讓人忍不住點贊
閱讀次數:350581次
新農村二層樓房圖片造價12萬,挑一套回家建房吧!
閱讀次數:349126次
