
|
項目名稱 北京密云王家新中式別墅 圖紙編號 1182 建筑面積 491.7㎡ 占地面積 272㎡ 建筑尺寸 16.7m×16m 建筑結構 磚混結構 參考造價 88萬元(不含室內裝修費用) 項目概況
△總平面示意圖 基地情況: 東:鄰家住宅 南:鄰家住宅 西:自家地窖 北:鄰家住宅 項目簡介: 業主在項目前期與設計師溝通了較多具體的居住空間方面需求,提供現場照片和資料,同時業主表示做個天井設計,呈現出簡單大氣。 設計師根據建筑的場地情況,及業主的需求和喜好,將項目形式確定為南北朝向的新中式二層別墅。 平面布局 戶型概況: 2層 / 7室 1堂室 1廳 8衛 1廚 1設備 1棋牌 1書房 1陽光房
△一層平面圖 考慮到西側是自己地窖,西側設置門保證暢通。入戶門、客廳、天井直線分布,貫通中軸線,使得提升整體建筑的采光優勢。
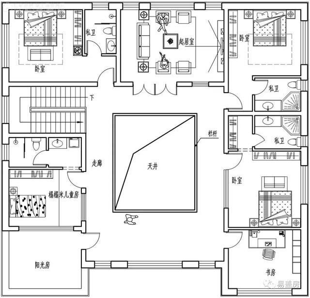
△二層平面圖 二層以娛樂休閑為主,將所有的臥室和客廳等主要功能空間置于南、北兩側,考慮到南側的采光好,將書房及陽光房置于那里。中間區域預留出來,合理利用場地條件,為家人提供舒適便捷的居住體驗。 造型設計
△東南側效果圖
△南側效果圖 建筑整體呈現出簡約新中式風格,設計師以南立面作為主造型面,屋檐配合功能空間,使得建筑無論在水平方向還是垂直方向均具有豐富的層次感。
△鳥瞰圖
△西南側效果圖 本著簡潔大氣的主思路,沒有采用繁復的線腳,屋頂線腳采用層次感的外挑。立面采用方正簡潔的門窗套,并在顏色上給予區分,以白色真石漆搭配藍色金屬瓦,凸顯雅致清新之感。
△鳥瞰圖
△局部效果圖 根據功能空間對于開窗的大小和窗臺高度做了一定的變化,豐富立面效果也是保證了使用隱私性,并且在空間上的凹凸變化讓建筑整體十分靈動,展現出更多層次。
△局部效果圖
△局部效果圖 天井以木桌木椅所在的休息區域作為中心,四周以碎石鋪路,配合綠化讓庭院空間極有層次。
△東立面圖
△西立面圖
△南立面圖
△北立面圖 圖紙之家-專注農村別墅/自建房設計18年,集合國內200余位經驗豐富的設計師,被評為口碑最好的農村建筑設計公司! |

125平兩層別墅房屋設計圖,帶普通和復式兩個戶型
占地:125平方米
160平方米農村實用型二層自建小別墅設計施工圖紙15米*10米
占地:160平方米
農村二層四合院設計圖,秒殺各種洋別墅
占地:220平方米
兄弟共建一層雙拼平房設計圖,省錢省心又可相互照應
占地:177.27平方米
帶院子的四間二層別墅房屋設計圖,帶獨立車庫
占地:350平方米
農村四間二層別墅設計圖,七室二廳帶車庫,室內寬敞鄰居都羨慕
占地:217.1平方米
面寬13米方正戶型二層小別墅設計方案,南北通透采光好
占地:166.78平方米
二層半房子設計圖及效果圖,客廳中空,南北通透
占地:160平方米
新中式三層豪華大氣三層別墅自建房屋設計圖,帶地下室,土豪專
占地:194平方米
復式挑空現代簡約風三層別墅設計圖,簡單時尚最受年輕人最愛
占地:149.7平方米
二層美式自建別墅設計圖,全套施工圖+外觀效果圖
占地:145平方米
新農村田園風格兩層半別墅設計圖,外觀造型非常漂亮
占地:147.8平方米
二層簡歐別墅設計圖挑空客廳+旋轉樓梯,看過的人都說氣派
占地:154.699平方米
大戶型美觀一層平房自建房設計圖,面寬19米左右
占地:245.1平方米
回村蓋一層養老房別墅設計圖紙,面寬16米四開間戶型圖
占地:127平方米左右
占地110平米兩層半農村房子設計圖,簡單實用
占地:110.25平方米
2026最受歡迎的三層農村小別墅設計圖紙,占地155平方米
占地:155平方米
120平方房子設計圖帶效果圖,農村自建房戶型推薦
占地:120平方米
7字型一層半農村別墅設計圖,美觀舒適,買了別墅的都會羨慕你
占地:229.14平方米
三層歐式自建房別墅設計方案,11x11米洋氣實用,飽受大家好評
占地:127平方米
推薦:10套新農村自建房設計圖,2026年最新設計
閱讀次數:4825737次
100套鄉村別墅圖片大全,2026年最新設計
閱讀次數:2492203次
6款農村蓋一層平房的設計圖,10萬元就能建起來
閱讀次數:1852637次
這11個一層農村自建房別墅火爆了朋友圈!我最喜歡戶型十!你呢
閱讀次數:750268次
農村6萬元建一層小別墅圖,你敢相信嗎
閱讀次數:567686次
農村5萬塊就能自建房,6套普通房子設計圖分享,你沒看錯!
閱讀次數:419410次
8套農村漂亮三間平房圖片,非常適合在農村修建!
閱讀次數:411197次
農村自建房化糞池怎么做?附方案及施工過程
閱讀次數:391783次
農村一層三間平房設計圖,告別土氣養老房,讓人忍不住點贊
閱讀次數:350581次
新農村二層樓房圖片造價12萬,挑一套回家建房吧!
閱讀次數:349126次
