
項目名稱:安徽馬鞍山龔宅 圖紙編號:454 建筑面積:312m2 占地面積:156m2 建筑尺寸:12.0x13.6m 建筑結構:磚混結構 主體造價:42萬(不包含室內裝修費用) 項目概況 該項目位于安徽馬鞍山,委托人原有住宅的西側門口的一顆古樹以及北側的規劃樹都是和委托人一家一起生活成長的,出于感情方面的原因,委托人要求保留這些樹木。因此整個建筑在古樹的位置有一個折角。這個設計不僅保留了樹木,同時也讓整個建筑更有設計感,盡可能多的保留了室內的使用空間。
總平面示意圖 圖紙設計
一層平面圖 一層設計了土灶、廚房、餐廳、客廳以及兩個臥室。
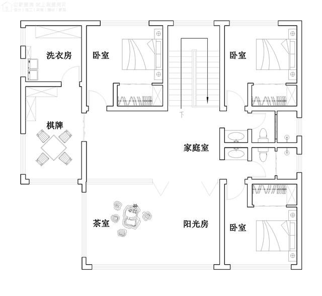
二層平面圖 二層有洗衣房、棋牌室、茶室、陽光房、家庭室以及三個臥室。 造型設計
整個建筑造型的設計主要依據現代風格。房屋通過坡屋頂兼具了良好的排水功能。
建筑的背面就是高低錯落的樹木,使得無論從房屋的哪個樓層看去,都是風景。
進門的位置設計師做了設計,從正面入戶的角度給了視覺上的沖擊,可謂是將風景和業主的興趣愛好結合的渾然一體。
水景的不遠處就是遮陽傘和桌椅,使得整個庭院不僅只有景觀,人情味也融入了設計中,讓整個建筑瞬間有了活力。
從木廊架下走過,坐在庭院的椅子上休息片刻,看著孩子們嬉笑打鬧,人生不就是為了這一刻嘛。
東立面圖
西立面圖
南立面圖
北立面圖 圖紙之家-專注農村別墅/自建房設計18年,集合國內200余位經驗豐富的設計師,被評為口碑最好的農村建筑設計公司! |

豪華大氣農村三層別墅圖紙,帶車庫、露臺,占地200平方米左右
占地:207平方米
農村10萬元一層小別墅設計圖,農村一層自建房屋設計圖
占地:多種戶型
最新網紅二層別墅,寬敞時尚沉穩大氣,布局實用正好滿足您的需
占地:110平方米
農村120平三層樓房設計圖,造型現代,帶屋頂花園
占地:120平方米
新農村兩層帶露臺自建房設計圖,造價30萬內
占地:170平方米
農村15萬元二層小樓圖,經濟實用小別墅設計圖
占地:105平方米
50萬左右農村豪華二層別墅設計圖 ,大廳中空,外觀精美
占地:210平方米
農村一層養老別墅設計圖,14.8x17.9米,戶型對稱,實用布局
占地:193平方米
中國最美的四合院別墅設計圖方案,復式挑空客廳戶型
占地:343.57平方米
新農村三層房屋設計圖紙大全,新農村住宅圖紙
占地:108平方米
豪華大氣三層農村自建房設計圖,經典大氣,百看不厭,新中式風
占地:141.75平方米
農村自建房別再做傳統客廳!“客廳+茶室”一體設計,寬敞明亮
占地:143.73平方米
最新歐式三層別墅設計圖紙,超漂亮,預算30到40萬
占地:160平方米
帶車庫,帶露臺的三層復式樓房設計圖,新農村房屋方案推薦
占地:140平方米
最漂亮五間一層自建別墅設計圖,布局實用顏值高!
占地:多戶型可選
簡單漂亮實用的三層自建房設計圖,帶露臺,占地170平方米
占地:170平方米
兩層半雙拼別墅設計方案,超大露臺+歐式風格,好設計別錯過!
占地:175.8平方米
鄉村20萬內三層別墅房屋設計圖,面積適中、戶型經典
占地:100平方米
帶地下室獨棟三層高端別墅房圖紙設計圖,復式客廳旋轉樓梯
占地:146.145平方米
鄉下建房一層平房設計圖紙及戶型圖,占地150平米左右
占地:150平方米
推薦:10套新農村自建房設計圖,2026年最新設計
閱讀次數:4825737次
100套鄉村別墅圖片大全,2026年最新設計
閱讀次數:2492203次
6款農村蓋一層平房的設計圖,10萬元就能建起來
閱讀次數:1852637次
這11個一層農村自建房別墅火爆了朋友圈!我最喜歡戶型十!你呢
閱讀次數:750268次
農村6萬元建一層小別墅圖,你敢相信嗎
閱讀次數:567686次
農村5萬塊就能自建房,6套普通房子設計圖分享,你沒看錯!
閱讀次數:419410次
8套農村漂亮三間平房圖片,非常適合在農村修建!
閱讀次數:411197次
農村自建房化糞池怎么做?附方案及施工過程
閱讀次數:391783次
農村一層三間平房設計圖,告別土氣養老房,讓人忍不住點贊
閱讀次數:350581次
新農村二層樓房圖片造價12萬,挑一套回家建房吧!
閱讀次數:349126次
