
|
20萬能建成一款像樣的別墅嗎,一定會有人說簡直是在做夢,現在這個時代,20萬能想在村里修建的小區買房怕是都不夠,建房子就更困難了,根本沒那么多資金建一個好看的房子,稍微好看點的都要用好多錢,只想建一個普通的那種四四方方沒有造型的房子,那么你就錯了,今天我們就看看這些20萬左右的自建房是一個什么樣的吧,外觀雖不如那種豪華型的那么好看,但是在村里也是足夠了的。只要花20萬就可以住別墅,8款經濟實用的農村自建房任你選! 20萬左右農村別墅一 農村別墅基本信息
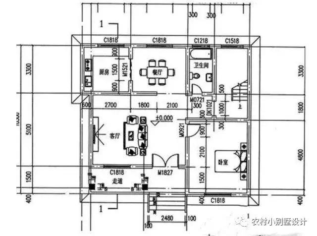
? 占地尺寸:10.2米*9.7米 ? 占地面積:96.6平方米 ? 建筑面積:193.2平方米 ? 建筑結構:磚混結構 ?主體造價: 18萬
本套圖紙有施工圖50張,效果圖1張,包打印(效果圖為彩圖,施工圖為A3大圖),快遞包郵,無電子版 需要這套圖紙的請加小編微信號;回家去蓋一棟吧
小編微信號 外觀設計說明: 這款別墅外觀簡潔大方實用,門頭和圓形飄窗設計的非常有特色,在簡潔中透出一種時尚大氣的感覺,屋頂的煙囪既能有效的排煙,又起到裝飾的作用。 一層平面圖:
一 層:玄關、客廳、臥室、棋牌室、廚房、餐廳、衛生間
二層平面圖:
二 層:小客廳、臥室(附陽臺)、3臥室、衛生間
20萬左右農村別墅二
建筑外觀精致,外觀是文化石和真石漆的經典搭配,建筑設計尺寸:開間11米,進深10米,戶型方正,建筑面積110平米;
設計功能:建筑入戶是玄關,左側設計客廳,右側設計一間臥室,另設計廚房、餐廳和獨立衛生間;二層設計帶陽臺的客廳和三間臥室,另有棋牌區和獨立衛生間。 20萬左右農村別墅三
建筑外觀設計簡潔,是大眾偏愛的建筑樣式,建筑設計尺寸:開間9.34米,進深11.24米,建筑占地105平米,建筑高度8.1米;
設計功能:建筑入戶是客廳,右側設計一間臥室,緊鄰衛生間,另設計廚房和寬敞的餐廳,樓梯間做儲物間;二層設計帶陽臺的起居室,設計兩間臥室和獨立書房。 20萬左右農村別墅四
非常別致的小戶型,建筑門外設計走廊,外墻大部采用真石漆,部分采用文化石,效果非常不錯。建筑設計尺寸:開間11.4米,進深10.3米,建筑占地105.9平米,總建筑面積210平米。
設計功能:建筑入戶是客廳,右側是臥室,設計廚房、餐廳衛生間和樓梯間;二層設計帶陽臺的小客廳和三間臥室,其中一間帶書房。 20萬左右農村別墅五 別墅基本信息 開間:13米 進深:10.3米 占地面積:130平 地面建筑面積:258平 建筑層數:二層帶地下室 建筑高度:9.7米(含屋頂)坡屋頂 結構形式:磚混結構 主體造價參考:18-20萬
效果圖一
1 戶型說明
今天的這套戶型坐北朝南,占地東西長13米,南北寬10.3米,占地面積130平方米,建筑高度9.7米,建筑面積258平方米。 2 功能設計
地下室:開放式隔間,業主可自由安排空間位置。 地下室一層平面圖:
一層:2間臥室、堂屋、儲藏室、客廳、餐廳、廚房、衛生間; 一層平面圖:
二層:4間臥室、衛生間、客廳;、 二層平面圖:
20萬左右農村別墅六 戶型效果圖
戶型基本信息 開間:18米進深:11.5米占地面積:214.14平方米建筑面積:531.58平方米結構形式:磚混結構主體造價:50-55萬
俯視圖 戶型效果圖
一樓設有客廳、廚房、餐廳、倉庫、臥室、衛生間。
二樓設有客廳、兩間臥室、一個衛生間、另外還帶有一個小陽臺。因為是雙拼,所以所有的格局,旁邊都是一樣的。
20萬左右農村別墅七 戶型效果圖
鏡像圖 這款別墅外觀簡潔大方實用,門頭和弧形窗設計的非常有特色,在簡潔中透出一種時尚大氣的感覺,門前的羅馬柱起到裝飾的作用。 戶型效果圖
一樓設有客廳、兩間臥室(主臥帶衛生間)、廚房、餐廳、衛生間。
二樓設有客廳、三間臥室(主臥帶衛生間)、衛生間、陽臺。
20萬左右農村別墅八 別墅基本信息
? 占地尺寸:14.34X11.34米; ? 占地面積:150.95平方米 ? 建筑面積:279.93平方米 ? 建筑結構:磚混結構 ? 造價估算:22萬
小別墅特色:采用坡屋頂,外觀造型簡潔大方,色彩明快,房間尺度設計適宜,空間利用率高,富有時代氣息; 一層平面圖:
一層平面圖:設有1門廳、1客廳、臥室2間、1衛生間、1車庫、1廚房、1餐廳;戶型設計合理,多臥室設計。通過一個門廊可以就可以進入室內,進門左拐是臥室,右拐是客廳,從客廳往里面走還有一個很大的家庭活動室,與餐廳相貫通,生活氛圍很濃郁。房子左側有一個車庫,從車庫可以進入室內去往廚房,也可以直接去洗衣房。值得說明的是,挨著洗衣房處有一個臨時臥室,如果有一天家里來客人較多,在這也可以臨時住一晚。 二層平面圖:
二層平面圖:設有1主臥室帶1衣帽間、2衛生間、1露臺,臥室2間、1活動室帶露臺、1書房;,主臥室在北面弧形采光窗的位置,它有獨立的衣帽間、衛生間和浴室。并且每一個臥室都處在各自不同的角落,讓每間居室都能獲得更加優越的通透性。 圖紙之家-專注農村別墅/自建房設計18年,集合國內200余位經驗豐富的設計師,被評為口碑最好的農村建筑設計公司! |

高端大氣四層復式別墅房屋設計圖,含外觀效果圖
占地:270平方米
120平帶車庫二層農村別墅施工圖,簡約時尚的外觀
占地:119.13平方米
鄉村最美四合院設計圖及外觀效果圖片,國人的理想住宅
占地:280.62平方米
小型農村二層自建樓房設計圖,面寬10米小占地經濟
占地:78.54平方米
實用農村三層房屋設計圖紙,效果圖+全套施工圖
占地:113平方米
275平方米新農村雙拼樓中樓戶型別墅設計圖紙及效果圖21X14米
占地:275平方米
農村120方三層自建房子圖,好看又不貴的三層農村別墅
占地:120平方米
110平方米農村三層復式房屋施工圖,通透時尚,低調又奢華
占地:107.98平方米
三層帶挑空客廳旋轉樓梯,農村這樣建別墅高檔大氣
占地:130.51平方米
最好看的農村三層樓房設計圖,占地113平米,小平米大格局
占地:110平方米
2026年新款一層住宅別墅設計圖紙,中式風格漂亮極了
占地:207平方米
復式三層別墅設計圖片及全套圖紙,客廳中空,外觀為歐式建筑的
占地:175平方米
三層農村自建房別墅設計圖紙,大廳中空,外觀高端大氣
占地:230平方米
兄弟倆二層雙拼別墅設計圖紙,一層共用,設計新穎
占地:180平方米
2026新農村三層雙拼房屋設計圖紙平面圖與效果圖,帶堂屋
占地:190平方米
私人別墅房屋cad施工設計圖,造型精致、美觀
占地:105平方米
適合兄弟自建的二層雙拼別墅設計方案,帶效果圖
占地:180平方米
2026新款四層樓房設計圖,占地120平方米左右,客廳中空
占地:120平方米
農村10萬元一層小別墅平房設計圖大全,含效果圖
占地:120平方米
簡單實用二層自建房子設計圖,主體造價僅17萬
占地:106.387平方米
推薦:10套新農村自建房設計圖,2026年最新設計
閱讀次數:4825737次
100套鄉村別墅圖片大全,2026年最新設計
閱讀次數:2492203次
6款農村蓋一層平房的設計圖,10萬元就能建起來
閱讀次數:1852637次
這11個一層農村自建房別墅火爆了朋友圈!我最喜歡戶型十!你呢
閱讀次數:750268次
農村6萬元建一層小別墅圖,你敢相信嗎
閱讀次數:567686次
農村5萬塊就能自建房,6套普通房子設計圖分享,你沒看錯!
閱讀次數:419410次
8套農村漂亮三間平房圖片,非常適合在農村修建!
閱讀次數:411197次
農村自建房化糞池怎么做?附方案及施工過程
閱讀次數:391783次
農村一層三間平房設計圖,告別土氣養老房,讓人忍不住點贊
閱讀次數:350581次
新農村二層樓房圖片造價12萬,挑一套回家建房吧!
閱讀次數:349126次
