
|
早幾年,農村新房的房子基本都是裝上幾根羅馬柱的歐式假洋樓,近5年真正的歐式鄉村小墅在農村多了起來。 但歐式的外觀總是大同小異,更重要的是不能體現出中國各地農村的地域特色。要說真正適合中國農村的房子,還是中式小院。 近兩年,新農村建設發展非常迅速,各地都在如火如荼的進行新農村改造。我們可以發現,各地都是將房子外觀改造成極具地方特色的各種中式風格。 而回鄉建房子的朋友們,也開始舍棄歐式,回歸我們的中式建筑。今天給大家推薦9款風格不同的中式院落戶型,喜歡中式的你,心動的話,就趕緊行動吧。
很多人感嘆,想在農村建中式合院,但地皮是最大的問題,根本批不到這么大的宅基地。 確實像這樣的大四合院,很多時候都是需要幾兄弟一起建房,幾個戶頭一起批地才能搞定。
第二套:12米開間,占地百平中式小院 但是像這樣房子占地才100來個平方的中式小院,大家還是可以輕松拿到宅基地建一套的。
而且這種民居風格建筑,造型簡單,施工難度小,當地的師傅一般都能完全還原設計。
第三套:小占地中式三合院
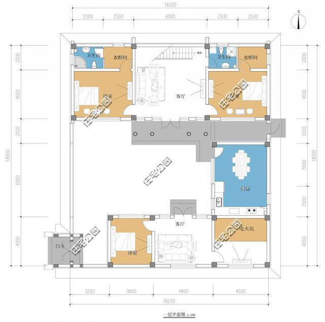
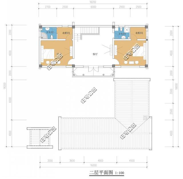
第四套:二進中式平層四合院
這個是坐西朝東的戶型,內院不大,設置了一個天井,雖然只有一層卻有8個臥室,可以滿足大家庭的居住需求。
第五套:除了傳統的合院,建一套這樣的新中式小院也是不錯的。更加的時尚、活力。
第六套:非常經典的帶院子中式設計來了,我最喜歡的是“閣樓”式的設計和院子,要是在鋪上木地板,那感覺應該很舒服,還有院子曬太陽非常舒適吧!
第七套:小進深平層三合院 農村一層養老房,造型傳統,內在布局現代化,廚房連接餐廳,設大客廳,多臥室,適合父母養老,自己逢年過節回家也住的下,非常合理。
第八套:新中式三層別墅 如果宅基地真的比較小,沒有空間再去建一個大院子了,那就建一棟這樣的新中式多層吧。
占地130平方,臥室數量很多,絕對夠住。
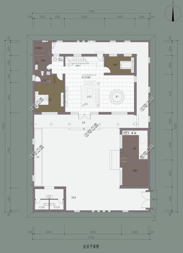
第九套: 中式四合院的設計,別看院子大,其實房子也不小,大餐廳和大客廳,還有綠化和這么寬敞的中庭,一家人住已經綽綽有余了,每次看到這樣的院子,有種莫名的歸屬感和安全感!
怎么樣,看到這樣的房子,你心動了嗎? 圖紙之家-專注農村別墅/自建房設計18年,集合國內200余位經驗豐富的設計師,被評為口碑最好的農村建筑設計公司! |

最新農村三層樓房設計圖紙,客廳中空,采用暖黃色為主色
占地:160平方米
新農村住宅設計圖集,三層房屋設計圖紙展示
占地:110平方米
農村三層樓房設計圖及圖片,客廳挑空,優化室內采光
占地:140平方米
新農村二層住宅設計圖紙,簡單別墅設計圖(含效果圖)
占地:77.6平方米
110平方米新農村三層別墅設計圖,含外觀效果圖
占地:109平方米
回村蓋一層養老房別墅設計圖紙,面寬16米四開間戶型圖
占地:127平方米左右
農村帶地下室二層半自建房屋設計圖,樓中樓設計,歐式風格
占地:140平方米
好看精致的三層自建房別墅設計圖,開間12米進深12米左右
占地:125.73平方米
農村三層別墅設計圖紙,造價50萬左右,中式風格,沉穩內斂
占地:160平方米
15米面寬田園風一層別墅!戶型新穎太吸睛,看過都想建
占地:141.13平方米
100平方建房子設計圖及效果圖,簡單實用的戶型設計
占地:97.3平方米
三層新中式別墅建筑設計圖紙及圖片,11.66m*9.76m,典雅耐看
占地:114平方米
農村三間兩層樓房設計圖,背面不開窗,氣勢上就勝人一籌
占地:153.7平方米
一層農村三合院別墅設計方案圖,秀氣優美,大氣又實用
占地:191.18平方米
美式田園二層別墅設計方案圖,全套設計圖+效果圖
占地:235平方米
新農村自建20萬二層小樓外觀圖及戶型圖,簡單大方,漂亮接地氣
占地:130平方米
帶開放式車庫的二層別墅!配土灶、室外樓梯,新穎還顯品味
占地:127.2平方米
農村四間兩層樓房設計圖,帶車庫,時尚經濟,最適合農村施工的
占地:180平方米
帶配房的農村三層別墅設計圖,全家享精致生活
占地:167.29平方米
三層新農村自建小型別墅設計圖及效果圖,三間三層樓房戶型
占地:114平方米
推薦:10套新農村自建房設計圖,2026年最新設計
閱讀次數:4825737次
100套鄉村別墅圖片大全,2026年最新設計
閱讀次數:2492203次
6款農村蓋一層平房的設計圖,10萬元就能建起來
閱讀次數:1852637次
這11個一層農村自建房別墅火爆了朋友圈!我最喜歡戶型十!你呢
閱讀次數:750268次
農村6萬元建一層小別墅圖,你敢相信嗎
閱讀次數:567686次
農村5萬塊就能自建房,6套普通房子設計圖分享,你沒看錯!
閱讀次數:419410次
8套農村漂亮三間平房圖片,非常適合在農村修建!
閱讀次數:411197次
農村自建房化糞池怎么做?附方案及施工過程
閱讀次數:391783次
農村一層三間平房設計圖,告別土氣養老房,讓人忍不住點贊
閱讀次數:350581次
新農村二層樓房圖片造價12萬,挑一套回家建房吧!
閱讀次數:349126次
