
|
國慶假期到,你們是選擇家里蹲還是外出看人頭呢?聽說還有不少朋友選擇回農村老家,過幾天悠閑生活。現在的新農村家家戶戶都在蓋新房,那么準備建房的朋友們,圖紙都備好了嗎?沒備好圖紙的就趕緊來看看新型房屋今天的戶型合集吧! 第1套:簡約小平層 毛坯造價:20萬起
這套小平層外觀比較簡約,對稱的設計大方耐看,屋檐挑高增加造型感,室內布局實用方便,適合人口較少的家庭修建。
第2套:實用小洋樓 毛坯造價:25萬起
這款是適用于絕大部分家庭自建的二層戶型,外觀時尚洋氣,外墻采用的材料是現在最流行的外墻掛板和文化石,如果預算不多也可選用瓷磚+墻漆搭配。
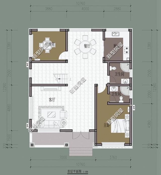
第3套:經典歐式別墅 毛坯造價:35萬起
這套是新型房屋一套非常經典的三層別墅,建成案例數不勝數,因其經典的外觀和布局收到很多農村朋友的喜愛。
第4套:帶商鋪的農村洋樓 毛坯造價:45萬起
農村地區,有很多“房前做買賣,房后生活居住”的形態模式,生活起居的同時,照看著個小生意,開個小賣部或者雜貨店,生活賺錢兩不耽誤。
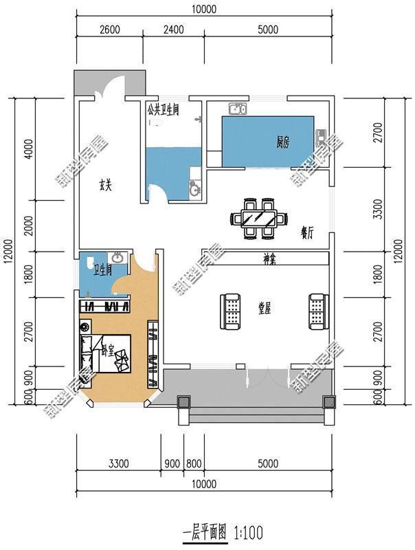
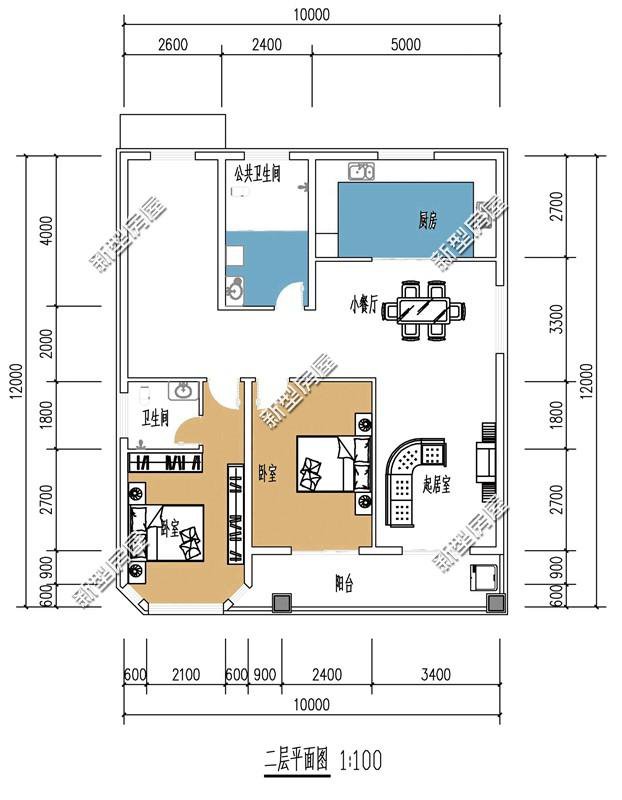
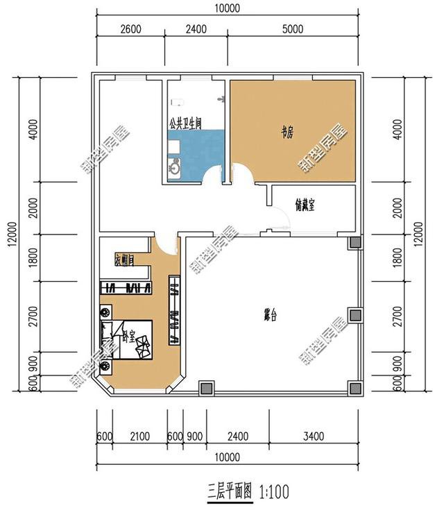
第5套:接地氣的中式住宅 毛坯造價:35萬起
很多朋友喜歡中式風格,如果預算和宅基地不夠,可以選擇這套中式風格的三層住宅,傳統中式的白灰配色,無需昂貴的材料裝飾,呈現出江南水鄉的溫婉意境。
![]() 這5套圖紙,你最喜歡哪套? 圖紙之家-專注農村別墅/自建房設計18年,集合國內200余位經驗豐富的設計師,被評為口碑最好的農村建筑設計公司! |

三層兩開間小面寬別墅設計圖紙帶外觀效果圖,95平方米
占地:94.61平方米
180平方米新農村自建二層小別墅設計圖及效果圖,15X13米
占地:183平方米
二層農村小別墅自建房設計圖,布局實用,占地150平
占地:149.05平方米
造價30萬左右的三層樓房設計圖,占地120平米左右
占地:120平方米
背面不開窗二層別墅設計圖,對稱設計簡單好看,眾多建房者的選
占地:183.79平方米
農村三層樓房設計圖及圖片,客廳挑空,優化室內采光
占地:140平方米
面寬18米二層新中式別墅圖紙設計,復式戶型,帶堂屋
占地:269.83平方米
兩層半樓房設計圖及效果圖,農村二層房屋設計圖推薦
占地:135平方米
最新小別墅設計圖,復式三層,外觀非常漂亮
占地:158平方米
3款三層農村自建別墅設計圖,氣派十足,準備建房的快快查看
占地:多戶型可選
最新三層農村別墅設計圖紙,推薦農村自建
占地:106平方米
簡單平房農村自建一層別墅設計圖,時尚大氣,造價經濟
占地:166平方米
185平米自建三層別墅房屋施工設計圖紙及效果圖
占地:187平方米
新農村兩層樓房設計圖,占地110平米,戶型簡單實用
占地:110平方米
實用型農村120平米二層樓房設計圖,小巧美觀實用
占地:120平方米
面寬13米二層鄉村自建別墅戶型圖,帶堂屋和露臺
占地:135.47平方米
新款三層農村自建別墅設計圖,中式風復式客廳
占地:158.96平方米
造價便宜的二層雙拼自建房設計方圖案,一塊宅基地建兩戶
占地:224平方米
120平米三層別墅房屋設計圖,帶車庫,帶閣樓
占地:120平方米
新中式二層雙拼樓房設計圖,單戶面積100平米左右,實用美觀
占地:200平方米
推薦:10套新農村自建房設計圖,2026年最新設計
閱讀次數:4825737次
100套鄉村別墅圖片大全,2026年最新設計
閱讀次數:2492203次
6款農村蓋一層平房的設計圖,10萬元就能建起來
閱讀次數:1852637次
這11個一層農村自建房別墅火爆了朋友圈!我最喜歡戶型十!你呢
閱讀次數:750268次
農村6萬元建一層小別墅圖,你敢相信嗎
閱讀次數:567686次
農村5萬塊就能自建房,6套普通房子設計圖分享,你沒看錯!
閱讀次數:419410次
8套農村漂亮三間平房圖片,非常適合在農村修建!
閱讀次數:411197次
農村自建房化糞池怎么做?附方案及施工過程
閱讀次數:391783次
農村一層三間平房設計圖,告別土氣養老房,讓人忍不住點贊
閱讀次數:350581次
新農村二層樓房圖片造價12萬,挑一套回家建房吧!
閱讀次數:349126次
