
|
現在大多數在農村建別墅的是八零后,在一代人兄弟姐妹一般少不了。如今父母年邁,回鄉自建房,宅基地也是同村同地,就算分家也不會太遠。為了建造省事,生活方便,可以照看老人,越來越多的兄弟姊妹合建起來,嘗試雙拼別墅,不僅造價上變低了,在設計上也可以相互借鑒。下面是3套雙拼別墅設計圖以及平面戶型圖,經濟實用。 第一款:農村簡單二層半雙拼別墅設計圖,造價20萬左右這款適合大部分的農村宅基地面積,外觀大方漂亮,戶型簡單,合理利用了每一個空間,從外墻到屋頂,哪怕是細節部分也處理的很到位。 占地面積:12.3m*9.04m,112.42平方米左右,單戶面積56平方米左右 建筑層高:二層半(帶閣樓) 建筑高度:9.9米(含屋頂) 設計功能: 一層:客廳、廚房、餐廳、臥室、衛生間 二層:臥室×2、公衛、書房、陽臺
第二款:簡歐式經典三層雙拼別墅設計圖,造價50萬這款是較為經典的三層雙拼別墅設計圖,外觀整潔美觀,單戶占地面積在120平左右適合南方宅基地建設,外墻配色是白和紅顯大氣。內部戶型布局合理,居住生活方便。 占地面積:18.0m*13.5m,240平方米左右,單戶120平左右 建筑層高:三層 建筑高度:13.36米(含屋頂) 設計功能: 一層:玄關、客廳、餐廳、廚房、臥室、衛生間 二層:起居室、臥室×3、衛生間、陽臺 三層:臥室×3、衛生間、露臺
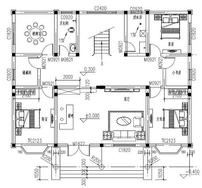
第三款:歐式一門二層雙拼別墅設計圖,造價36萬這款設計滿足了兄弟姊妹方便照顧老人,又有獨立空間的需求。一樓供老人居住和大家庭生活需要,二樓分開的設計保證了自家的私密性,有獨立的生活空間。室內布局分配合理。 開間:14.96米 進深:11.36米 占地面積:180平米 建筑面積:360平米 設計功能: 一層:客廳、父母房、客房x2、棋牌室、小書房、儲藏間(衣帽間)、衛生間、洗衣間 二層(一戶):客廳、主臥(帶衣帽間)、臥室、書房、衛生間
以上就是小編推薦的3款農村雙拼別墅設計圖以及平面戶型圖,希望對建房的你有所幫助,有需要具體圖紙的可以搜索圖紙之家,有詳細的施工圖等你。
圖紙之家-專注農村別墅/自建房設計18年,集合國內200余位經驗豐富的設計師,被評為口碑最好的農村建筑設計公司! |

帶車庫農村二層樓房設計圖,外觀漂亮,精致
占地:154平方米
帶地下車庫的三層別墅設計圖,160平復式戶型
占地:159.03平方米
帶地下室+挑空客廳,農村三層洋樓別墅誰家圖在
占地:97.74平方米
120平帶車庫二層農村別墅施工圖,簡約時尚的外觀
占地:119.13平方米
帶車庫三層自建別墅設計圖紙,客廳中空,外觀洋氣時尚,這款戶
占地:170平方米
110平左右農村復式二層小樓設計圖,外觀非常受歡迎
占地:112平方米
三層雙拼別墅效果圖及戶型設計圖,占地150平米
占地:154.8平方米
新款私人定制四層歐式獨棟住宅別墅設計圖紙,含外觀效果圖
占地:138平方米左右
新農村三層帶露臺自建房設計施工圖,農村自建別墅推薦
占地:112平方米
農村200平一層別墅房屋設計圖,外觀圖片時尚、漂亮
占地:200平方米
農村兄弟合建一層雙拼房別墅圖,對稱設計,工整大方!
占地:170平方米
帶架空層一層農村別墅設計圖,回鄉建房優選,家有豪宅幸福來敲
占地:124.76平方米
占地90平新中式經濟二層小別墅自建房設計圖,僅15萬
占地:89.3平方米
簡歐式三層小別墅設計圖,帶地下室,客廳中空,占地150平米
占地:150平方米
新農村三層豪華歐式別墅,復式高端自建房設計圖紙及效果圖
占地:多種戶型
180平方米新農村三層別墅設計圖紙,效果圖+全套cad施工圖
占地:180平方米
農村兄弟倆雙拼別墅房屋設計圖,外觀質樸
占地:195平方米
適合農村建造的二層房屋設計圖紙及效果圖,帶悶頂層,占地15
占地:150平方米
最新網紅二層別墅,寬敞時尚沉穩大氣,布局實用正好滿足您的需
占地:110平方米
農村一層五間(6間)新農村設計圖方案,含外觀圖片
占地:193.47平方米
推薦:10套新農村自建房設計圖,2026年最新設計
閱讀次數:4825737次
100套鄉村別墅圖片大全,2026年最新設計
閱讀次數:2492203次
6款農村蓋一層平房的設計圖,10萬元就能建起來
閱讀次數:1852637次
這11個一層農村自建房別墅火爆了朋友圈!我最喜歡戶型十!你呢
閱讀次數:750268次
農村6萬元建一層小別墅圖,你敢相信嗎
閱讀次數:567686次
農村5萬塊就能自建房,6套普通房子設計圖分享,你沒看錯!
閱讀次數:419410次
8套農村漂亮三間平房圖片,非常適合在農村修建!
閱讀次數:411197次
農村自建房化糞池怎么做?附方案及施工過程
閱讀次數:391783次
農村一層三間平房設計圖,告別土氣養老房,讓人忍不住點贊
閱讀次數:350581次
新農村二層樓房圖片造價12萬,挑一套回家建房吧!
閱讀次數:349126次
