
|
國家提出發展新農村的政策之后,越來越多的人去農村享受有優美的風光和清新的空氣,其中不少人也選擇在農村建房定居。現在大家的經濟條件好了,建房時不僅注重實用,對外觀造型的要求也更高。下邊給大家推薦7套豪華氣派的新農村二層大別墅,再過10年也不會過時! 第一套
正面效果圖
鳥瞰效果圖
背面效果圖 占地面積:10.5m*16.1m,177平方米左右; 建筑層高:二層; 建筑高度:6.2米(含屋頂); 設計功能: 一層戶型:客廳、餐廳、廚房、衛生間、主臥(帶衛生間)、臥室×2、棋牌室; 二層戶型:客廳上空、休閑廳、主臥(帶衛生間)、臥室x3、衛生間、書房;
一層平面圖
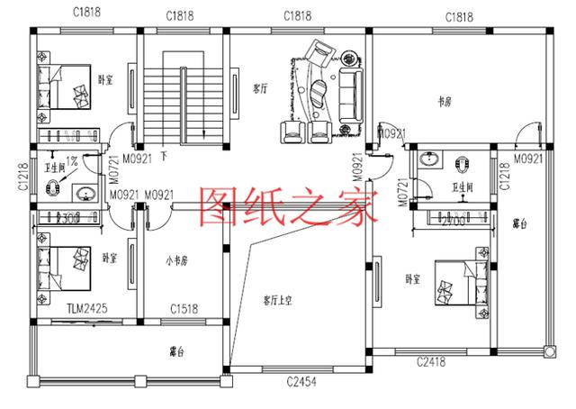
二層平面圖 第二套
正面效果圖
鳥瞰效果圖 背面效果圖 占地面積:17.1m*11.4m,180平方米左右; 建筑層高:二層; 建筑高度:9.3米(含屋頂); 設計功能: 一層戶型:門廳、客廳、餐廳、廚房、衛生間、主臥(帶衛生間)、臥室×2; 二層戶型:客廳上空、客廳、書房、臥室×3、衛生間×2;
一層平面圖
二層平面圖 第三套
正面效果圖
鳥瞰效果圖
背面效果圖 占地面積:15.2m*11.6m,180平方米左右; 建筑層高:二層; 建筑高度:11米(含屋頂); 設計功能: 一層戶型:客廳、餐廳、廚房、衛生間、主臥(帶衛生間)、臥室; 二層戶型:臥室(帶衛生間、衣帽間)×2、臥室(帶衛生間)×2、洗衣房、露臺; 屋頂戶型:露臺;
一層平面圖
二層平面圖
三層平面圖 第四套
正面效果圖
鳥瞰效果圖
背面效果圖 占地面積:17.4m*11.8m,180平方米左右; 建筑層高:二層; 建筑高度:9.8米(含屋頂); 設計功能: 一層戶型:玄關、客廳、餐廳、廚房、衛生間、主臥(帶衛生間)、臥室×2、走廊; 二層戶型:客廳上空、客廳、主臥(帶衛生間)、臥室×2、書房、小書房、露臺×2;
一層平面圖
二層平面圖 第五套
正面效果圖
鳥瞰效果圖
背面效果圖 占地面積:15.2m*15.6m,190平方米左右; 建筑層高:二層; 建筑高度:10.58米(含屋頂); 設計功能: 地下室:車庫、活動室、衛生間; 一層戶型:玄關、客廳、餐廳、廚房、衛生間、主臥(帶衛生間)、臥室; 二層戶型:起居室、主臥(帶衛生間)×2、臥室×2、書房、衛生間、、大露臺;
地下平面圖
一層平面圖
二層平面圖 第六套
正面效果圖
鳥瞰效果圖
背面效果圖 占地面積:16.8m*12.5m,200平方米左右; 建筑層高:二層; 建筑高度:10.7米(含屋頂); 設計功能: 一層戶型:客廳、餐廳、廚房、大餐廳、衛生間、主臥(帶衛生間)、棋牌室、烤火房; 二層戶型:主臥(帶衛生間、書房)、臥室x2、衛生間
一層平面圖
二層平面圖 第七套
正面效果圖
鳥瞰效果圖
背面效果圖 占地面積:20.5m*11.5m,210平方米左右; 建筑層高:二層; 建筑高度:9.6米(含屋頂); 設計功能: 一層戶型:客廳、餐廳、廚房、茶室、老人房×2、衛生間、儲藏間、洗衣間、設備間、車庫; 二層戶型:臥室×4、書房、衛生間、儲藏間、露臺×2;
一層平面圖
二層平面圖 這幾套別墅的設計圖,你最喜歡哪一套? 圖紙之家-專注農村別墅/自建房設計18年,集合國內200余位經驗豐富的設計師,被評為口碑最好的農村建筑設計公司! |

二層門面房自建小樓設計圖紙及效果圖,占地150平
占地:151.83平方米
165平方米農村帶陽光房的二層小別墅設計圖紙帶外觀圖18.16米*9.
占地:166平方米
農村四間二層別墅設計方案圖,外觀精致、時尚
占地:152平方米
農村二層小洋樓設計圖,帶外觀效果圖,外觀新穎,漂亮
占地:130平方米
廚房餐廳在配房的歐式三層農村別墅設計方案,華麗又宜居
占地:177.58平方米
新款農村三層雙拼聯體別墅戶型圖,客廳中空,單戶120平米左右
占地:240平方米
村里蓋房圖紙大廳挑空的三層別墅設計圖,面寬不到10米
占地:122.4平方米
新農村三層房屋住宅設計圖紙大全(含效果圖)
占地:122平方米
大氣的150平方米新中式三層別墅建筑圖及效果圖
占地:150平方米左右
100平左右農村一層平房小洋樓建筑設計圖紙,14米×8米
占地:98平方米
140平中式徽派一層別墅設計圖,一層照樣建這樣漂亮
占地:140平方米
新中式帶露臺30萬左右農村三層別墅,客廳中空
占地:110平方米
150平方米二層別墅設計及效果圖展示下載,17X10米
占地:150平方米
鄉下一層門面二層別墅設計圖紙,帶門面的自建房方案
占地:198.4平方米
農村二層小別墅自建房屋設計圖,客廳中空,占地150平米
占地:150平方米
鄉村高檔四層豪華別墅自建房設計圖,一層不帶餐廳廚房戶型
占地:147平方米
120平方米現代新農村二層自建房設計圖,造型時尚好看
占地:120平方米
8.5×12米四層歐式房屋設計圖紙,占地100平,落地窗中嵌入了雕花
占地:100平方米
新農村二層自建房設計圖帶外觀圖片,自建戶型大全
占地:160平方米
高顏值又實用的一層雙拼鄉村別墅設計圖,舒適度堪比豪宅
占地:217.3平方米
推薦:10套新農村自建房設計圖,2026年最新設計
閱讀次數:4825737次
100套鄉村別墅圖片大全,2026年最新設計
閱讀次數:2492203次
6款農村蓋一層平房的設計圖,10萬元就能建起來
閱讀次數:1852637次
這11個一層農村自建房別墅火爆了朋友圈!我最喜歡戶型十!你呢
閱讀次數:750268次
農村6萬元建一層小別墅圖,你敢相信嗎
閱讀次數:567686次
農村5萬塊就能自建房,6套普通房子設計圖分享,你沒看錯!
閱讀次數:419410次
8套農村漂亮三間平房圖片,非常適合在農村修建!
閱讀次數:411197次
農村自建房化糞池怎么做?附方案及施工過程
閱讀次數:391783次
農村一層三間平房設計圖,告別土氣養老房,讓人忍不住點贊
閱讀次數:350581次
新農村二層樓房圖片造價12萬,挑一套回家建房吧!
閱讀次數:349126次
