
|
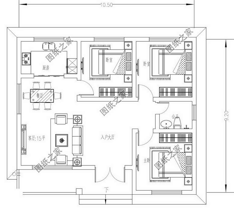
喜愛面積大的自建房別墅,但自家的宅基地有不盡人意,建出來怕顯小氣,丟了面子,難道小土地真的就不能建滿意的別墅了嗎?那可不一定,只要設計好,再小的宅基地都能蓋豪宅。今天小編帶來4款農村90平就能建的一層房子設計圖。 第一款:現代簡約一層自建房效果圖,主體造價8萬開間:10.5m 進深:9.2m 占地面積:91.036平方米左右 戶型:入戶大廳、客廳、臥室x3、廚房、餐廳 這款現代式簡約的農村一層三間平房設計圖,入戶設大客廳,建筑裝飾簡潔,藍色屋頂,白色外墻漆,美觀又大氣。
第二款:平頂自建房圖紙,主體造價7萬開間:10.6m 進深:7.9.m 占地面積:79.478平方米左右 戶型:客廳、廚房、餐廳、臥室x2、衛生間、儲藏間(也可以預留樓梯口,后期加建) 這款平屋頂自建房圖紙,預留樓梯,以后可以加蓋二層,整體配色素凈淡雅。室內布局很實用,兩式兩廳一衛,農村一般的家庭都很適用,樓梯處可以預留后期加建或者做儲藏間。
第三款:現代式一層別墅設計圖,主體造價9萬開間:11.3m 進深:8.3m 占地面積:90平方米 戶型:廚房、臥室、客廳、主臥室、衛生間、雜物間、餐廳 這款非常適合宅基地面積小的,戶型方正,外觀簡潔,線條性強,適合老人養老居住使用。
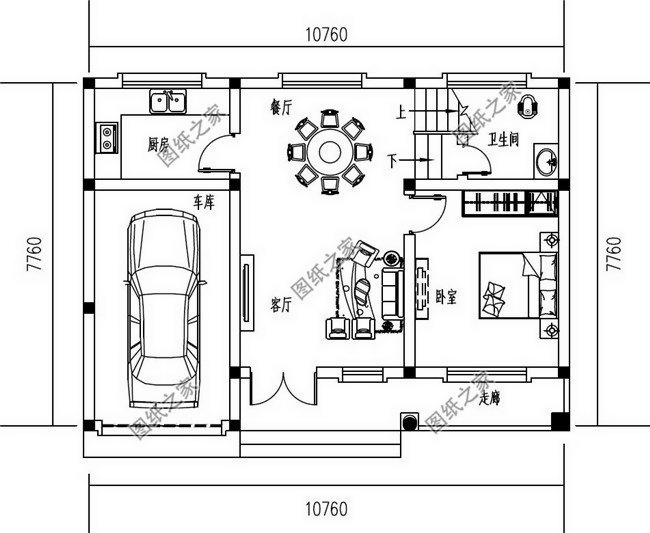
第四款:帶車庫農村一層自建房設計圖,主體造價8萬進深:7.76m 開間:10.76m 占地面積:80平方米左右 一層戶型:走廊、客廳、餐廳、廚房、臥室、衛生間、車庫 閣樓戶型:棋牌室、儲藏間、臥室x2、衛生間 這款式鄉村一層帶閣樓自建別墅設計圖,帶車庫,外觀非常簡潔,屋頂采用的是傳統的坡屋頂,建筑的層次感更分明,舒適感更全面。
以上就是小編推薦適合90平小戶型宅基地建設的一層別墅設計圖和戶型圖,有需要具體施工圖紙的可以搜索圖紙之家查找。 圖紙之家-專注農村別墅/自建房設計18年,集合國內200余位經驗豐富的設計師,被評為口碑最好的農村建筑設計公司! |

新農村自建二層小樓圖,時尚大方,外型精美,室內布局也很贊
占地:137平方米
帶地下室的一層別墅設計圖,農村自建房比較合適
占地:206平方米
農村七字形獨棟一層別墅設計圖,設計感十足
占地:274.51平方米
簡單實用二層自建房子設計圖,主體造價僅17萬
占地:106.387平方米
簡約實用農村自建房戶型圖,美觀經濟又通透,南北通透住得爽!
占地:160.6平方米
復式大客廳帶旋轉樓梯二層別墅設計圖,大廳很闊氣
占地:193平方米左右
二層雙拼別墅外觀效果圖及施工圖,帶露臺,14乘12米
占地:168平方米
豪華歐式三層別墅住宅設計圖紙,占地面積150平方米
占地:150平方米
高端歐式四層別墅房屋施工圖紙及效果圖,圓弧大窗
占地:170平方米
三間三層房子設計圖,高端三層樓房設計圖,三層兩個大露臺
占地:170平方米
兄弟雙拼別墅設計戶型圖及設計方案圖,帶外觀效果圖,外觀好看
占地:185平方米(單棟)
高端三層獨棟歐式別墅效果圖,帶大衛生間,CAD全套施工設計圖
占地:158平方米
預算10萬的簡單二層半別墅房屋設計圖,外觀簡單,造價低
占地:90平方米
后面帶小院的農村房屋設計圖,適合鄉村自建
占地:300平方米
歐式兩層別墅設計圖及歐式效果圖,造價25萬左右
占地:150平方米
農村兩間三層房屋設計圖,含外觀圖片
占地:120平方米
最新140平米三層自建房屋設計圖紙,本戶型帶小院
占地:140平米
小型中式一層三合院別墅設計圖,小宅基地照樣建合院
占地:119.73平方米
經濟實用二層農村自建房設計圖,新中式風格12x11米
占地:114平方米
帶車庫三層自建別墅設計圖紙,客廳中空,外觀洋氣時尚,這款戶
占地:170平方米
推薦:10套新農村自建房設計圖,2026年最新設計
閱讀次數:4825737次
100套鄉村別墅圖片大全,2026年最新設計
閱讀次數:2492203次
6款農村蓋一層平房的設計圖,10萬元就能建起來
閱讀次數:1852637次
這11個一層農村自建房別墅火爆了朋友圈!我最喜歡戶型十!你呢
閱讀次數:750268次
農村6萬元建一層小別墅圖,你敢相信嗎
閱讀次數:567686次
農村5萬塊就能自建房,6套普通房子設計圖分享,你沒看錯!
閱讀次數:419410次
8套農村漂亮三間平房圖片,非常適合在農村修建!
閱讀次數:411197次
農村自建房化糞池怎么做?附方案及施工過程
閱讀次數:391783次
農村一層三間平房設計圖,告別土氣養老房,讓人忍不住點贊
閱讀次數:350581次
新農村二層樓房圖片造價12萬,挑一套回家建房吧!
閱讀次數:349126次
