
|
生活在農村的人才知道農村的好,清新的空氣,高山流水,綠色無污染的蔬菜和家禽,每一天都感覺到生活的簡單平凡之美。那些去城里拼搏過的人,在經受了社會的大熔爐之后,才知道簡單平凡的好。以下小編推薦五款農村新式三層樓設計圖和平面圖。 第一款:現代式三層別墅設計圖,主體造價30萬占地面積:127.912平方米左右 進深:11.56m 開間:12.52m 建筑高度:13.467米(含屋頂) 這款農村三層簡單自建房子設計圖,外觀簡潔大氣,造價經濟,戶型實用,很適合農村自建。
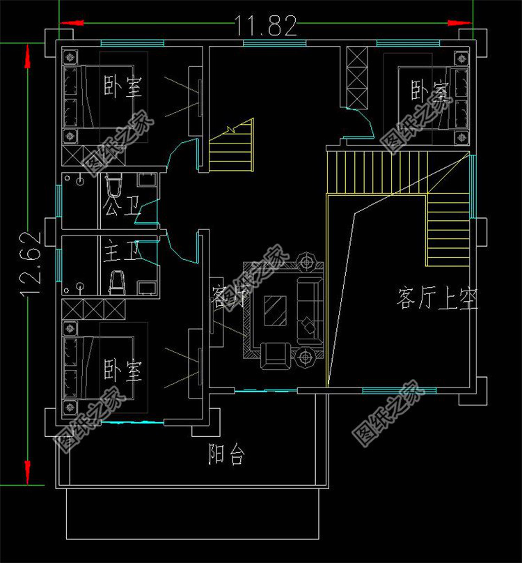
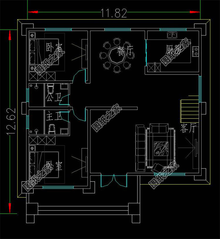
第二款:現代平頂三層別墅,主體造價28萬占地面積:125.142平方米左右 進深:11.82m 開間:12.62m 建筑高度:11.2米(含屋頂) 這款農村三層現代平頂別墅,簡約時尚百看不厭,外觀到布局都令人驚艷!線條干凈利落,別墅通透明朗,大面積的玻璃窗設計,使整體看上去視野開闊又寬敞。
第三款: 現代簡約式三層別墅,主體造價25萬占地面積:106平方米 開間:11.7m 進深:8.8m 建筑高度:12.6米(含屋頂) 這款圖紙是現代簡單歐式三層別墅,外觀精致高雅,內部寬敞自在,適合所有人的戶型。建筑的內部設計主要還是以經濟適用為主的。
第四款:新中式三層別墅設計圖,主體造價28萬占地面積:,101.01平方米左右; 開間:11.3m 進深:8.76m 建筑高度:11.608米(含屋頂) 這款偏徽派風格民居三層農村住宅設計圖,南北方都能建,白墻黛瓦的古雅簡潔。外墻采用中國傳統白色乳膠漆,與灰瓦搭配,更具古典風范,很典型的一個徽式民居,加上了現代玻璃欄桿元素,毫無違和感,更有種時尚的感覺。
第五款:三層歐式別墅效果圖,主體造價32萬占地面積:12m*11.8m,117平方米左右; 建筑層高:三層; 建筑高度:12.09米(含屋頂) 這款房子的整體色調以米白色為主,搭配紅色屋頂,加上棕色的配色,顯得十分高大上。坡屋頂設計,錯落有致,非常耐看。
以上就是小編推薦的5款農村新式三層樓設計圖和戶型圖,有需要的可以搜索圖紙之家進行查找! 圖紙之家-專注農村別墅/自建房設計18年,集合國內200余位經驗豐富的設計師,被評為口碑最好的農村建筑設計公司! |

2026年新款別墅外觀圖,新中式風格,比簡歐大氣,時尚
占地:135平方米
兩戶250平方米農村豪華歐式三層兄弟雙拼別墅設計圖
占地:251平方米
經典農村三層樓房設計圖,10個不同尺寸戶型,各種戶型供您選擇
占地:多種
人氣頗高的三層新中式別墅方案,五種戶型,五種尺寸
占地:120-165平方米
一層4間自建平房別墅及全套戶型圖紙,占地160平左右,簡單實用
占地:162.13平方米
二層精美偏法式風格別墅設計圖,不但顏值高,品質還高
占地:154.17平方米
兩層半20多萬復式農村自建房設計圖,經典不過時戶型
占地:120平方米
三層復式別墅設計圖紙(含效果圖),復式住宅設計圖精選
占地:147.7平方米
小平米四層自建房屋設計圖紙,戶型簡單實用,占地80平方米
占地:80平方米
一層四合院別墅,中式庭院寬綽大氣,這樣的合院養老最合適
占地:396平方米
140平方米兩層別墅CAD設計圖紙及效果圖,13x11米
占地:138平方米
農村二層L戶型農村別墅!設計圖簡約時尚又大氣,住著超舒適
占地:170.55平方米
適合農村建造的二層房屋設計圖紙及效果圖,帶悶頂層,占地15
占地:150平方米
新款240平方米三層雙拼別墅設計圖,歐式兄弟雙拼圖片
占地:240平方米
農村一層平房設計圖及效果圖,一層房屋設計方案推薦
占地:270平方米
230平方米新農村二層自建別墅設計圖紙帶外觀圖,20X11米
占地:227平方米
100平方米實用二層半小別墅設計圖紙(帶閣樓層),住著安逸
占地:100平方米左右
130平方米現代簡約農村兩層樓房施工設計圖紙帶外觀圖
占地:126平方米
簡單大氣二層兄弟雙拼樓房設計圖,外觀簡約
占地:268平方米
130平米徽式古典風格的三層自建房屋別墅設計圖紙,戶型合極佳,
占地:130平米
推薦:10套新農村自建房設計圖,2026年最新設計
閱讀次數:4825737次
100套鄉村別墅圖片大全,2026年最新設計
閱讀次數:2492203次
6款農村蓋一層平房的設計圖,10萬元就能建起來
閱讀次數:1852637次
這11個一層農村自建房別墅火爆了朋友圈!我最喜歡戶型十!你呢
閱讀次數:750268次
農村6萬元建一層小別墅圖,你敢相信嗎
閱讀次數:567686次
農村5萬塊就能自建房,6套普通房子設計圖分享,你沒看錯!
閱讀次數:419410次
8套農村漂亮三間平房圖片,非常適合在農村修建!
閱讀次數:411197次
農村自建房化糞池怎么做?附方案及施工過程
閱讀次數:391783次
農村一層三間平房設計圖,告別土氣養老房,讓人忍不住點贊
閱讀次數:350581次
新農村二層樓房圖片造價12萬,挑一套回家建房吧!
閱讀次數:349126次
