
|
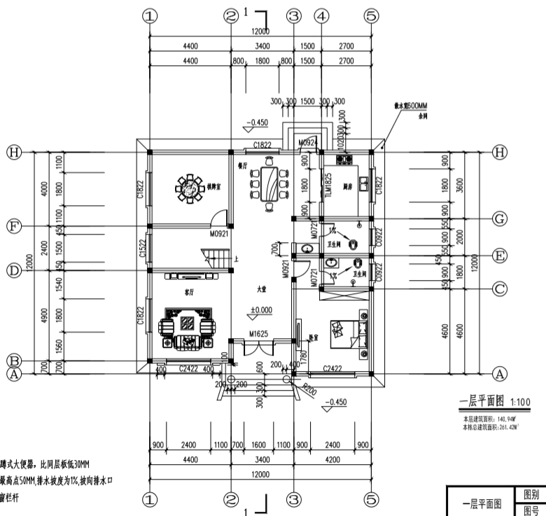
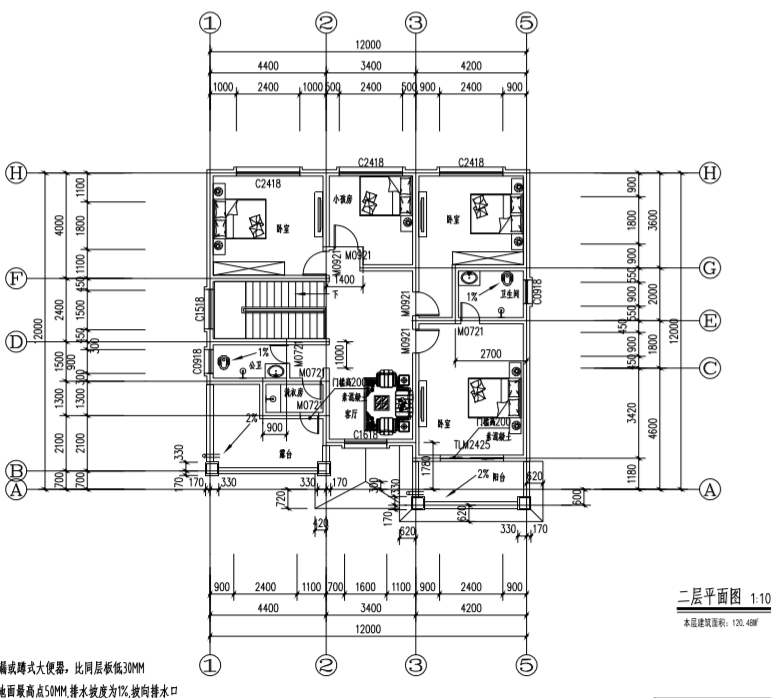
現在農村的生活條件已經變得越來越好了,慢慢的都有錢了,生活變好了以后,就想著建造一棟房子改善一下自己居住環境,那么什么樣的房子好看又不過時呢,今天就給大家推薦五中12×12米戶型方正的農村自建房設計圖紙,各種風格任你選擇,每一種風格在農村都很受歡迎,建議棟這樣的小別墅,就讓其他人羨慕去吧。 第一種:私人別墅設計圖,二層歐式建筑圖紙介紹:私人二層歐式別墅建筑設計圖紙(效果圖+全套別墅設計方案),溫馨大方得體,這款二層農村自建別墅選用大方得體的坡屋頂設計構思,戶型結構簡單大方,四面都可以采光,建筑立面色調簡約大方得體,施工難度并不大,適合農村建造。
占地面積:12m*12.50m,144平方米左右; 建筑層高:二層; 建筑高度:10.2米(含屋頂); 設計功能: 一層戶型結構:玄關、客廳、餐廳、廚房、娛樂房、老人房、衛生間; 二層戶型結構:起居室、主臥室(帶衣帽間)、臥室x3、衛生間、露臺;
第二種:新農村二層樓房圖紙,帶外觀圖圖紙介紹:本設計方案為簡單復式二層別墅設計圖,客廳中空。外觀看上去簡潔,但又很時尚,戶型合理。
占地面積:12.00m*11.7m,140平方米左右; 建筑層高:二層; 建筑高度:8.60米(含屋頂); 設計功能: 一層戶型:門廳、客廳、餐廳、廚房、衛生間、臥室x2、生活陽臺; 二層戶型:起居室、棋牌室、臥室x3、衛生間、陽臺x2;
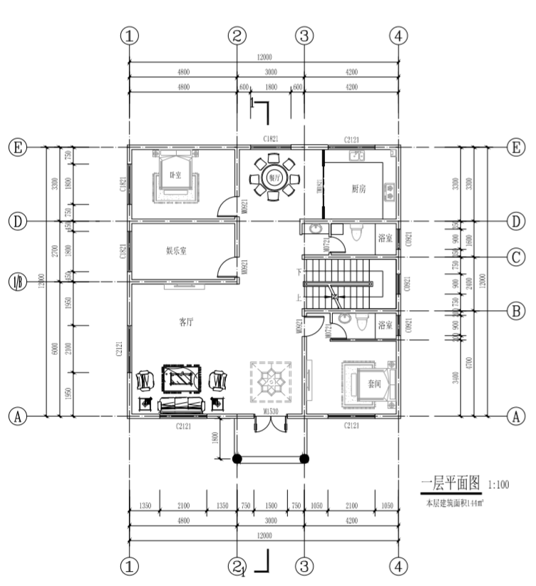
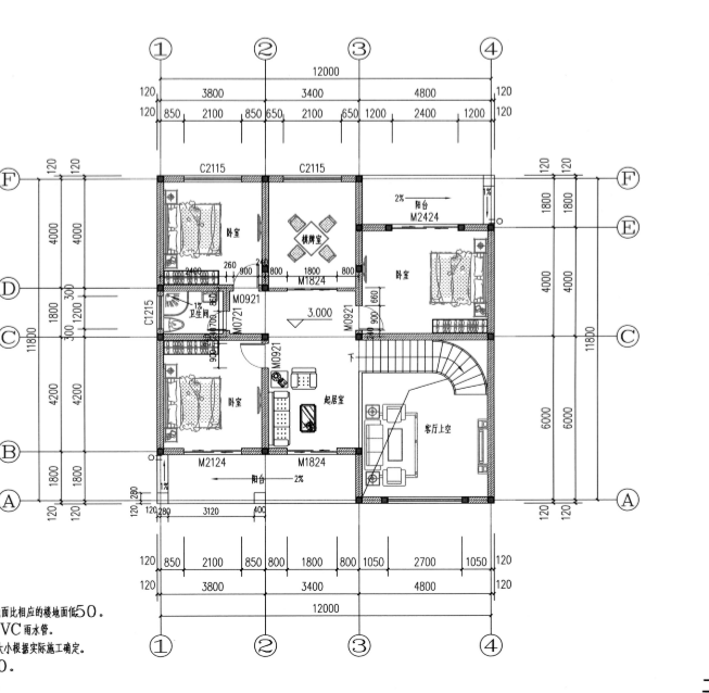
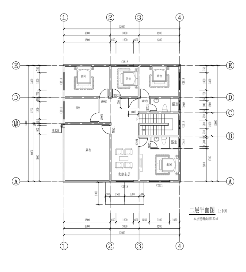
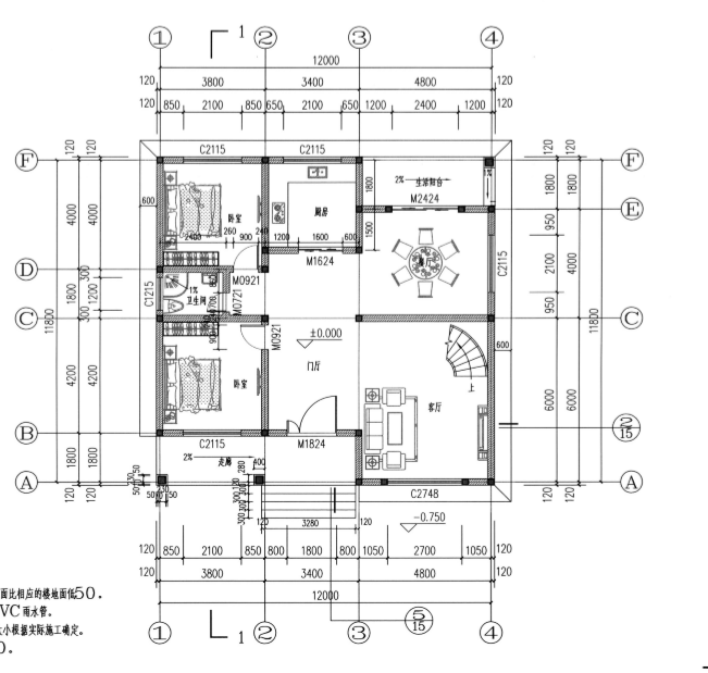
第三種:12×12米二層自建房設計圖圖紙介紹:本戶型是12×12米農村二層自建房設計圖,一共設計了6間臥室,滿足不同人口數量的家庭使用。
占地面積:12.0m*12.0m,144平方米左右; 建筑層高:二層; 建筑高度:9.6米(含屋頂); 設計功能: 一層戶型:客廳、餐廳、廚房、衛生間、主臥(帶衛生間)、臥室、娛樂室; 二層戶型:起居室、主臥(帶衛生間)、臥室x3、衛生間、書房、大露臺;
第四種:農村二層樓房設計圖紙,造價18萬左右圖紙介紹:本戶型農村二層小樓圖紙,造價18萬元左右,漂亮實用。
占地面積:12.0m*12.0m,140平方米左右; 建筑層高:二層; 建筑高度:10.77米(含屋頂); 設計功能: 一層戶型:客廳、餐廳、廚房、衛生間、主臥(帶衛生間)、棋牌室; 二層戶型:客廳、主臥(帶衛生間)、臥室x3、洗衣房、衛生間、陽臺、露臺;
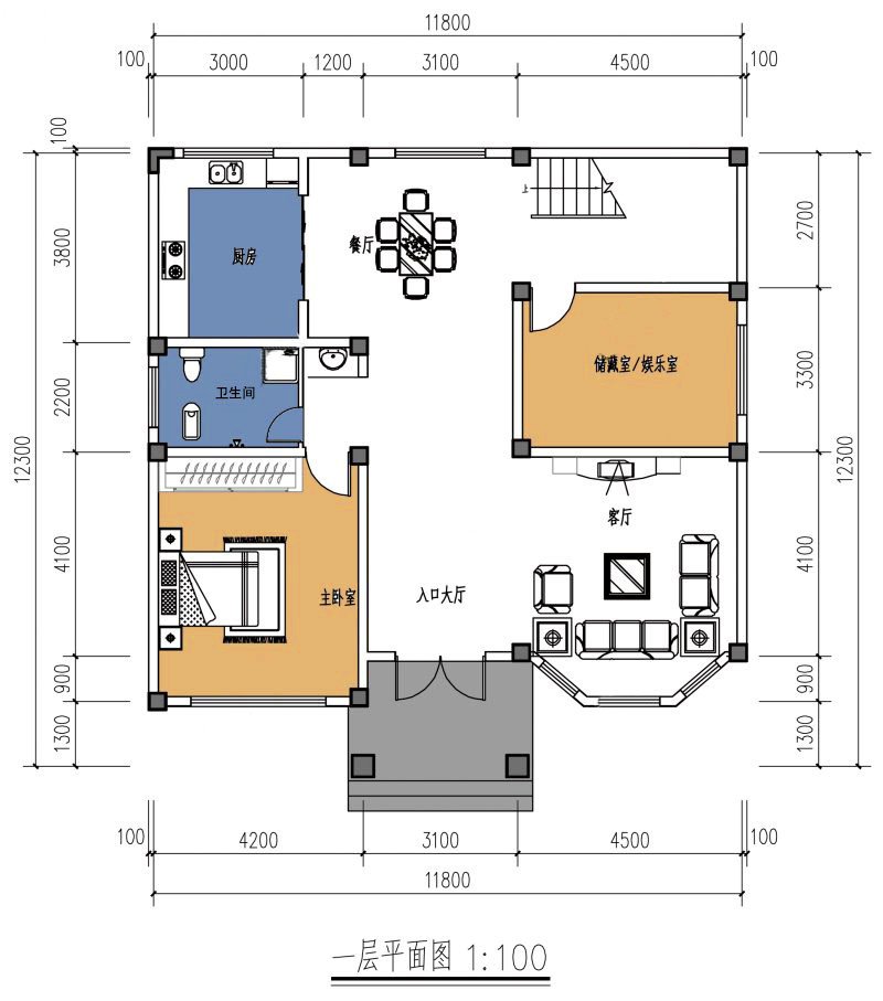
第五種:簡歐二層別墅設計圖,含外觀效果圖圖紙介紹:本戶型面積適中,空間利用率高,戶型合理。
占地面積:11.8m*12.3m,145平方米左右; 建筑層高:二層; 建筑高度:9.87米(含屋頂); 設計功能: 一層別墅戶型:客廳、廚房、餐廳、臥室、衛生間、娛樂室(儲藏間); 二層別墅戶型:客廳、主臥(帶衛生間和衣帽間)、臥室x2、衛生間、活動房(書房)、陽臺;
這幾款農村自建房設計圖紙,占地面積均在12×12米左右,如果你也喜歡這樣的房子,就趕快收藏圖紙吧。
圖紙之家-專注農村別墅/自建房設計18年,集合國內200余位經驗豐富的設計師,被評為口碑最好的農村建筑設計公司! |

農村二層半別墅圖片大全,二層半別墅設計圖推薦
占地:160平方米
140平方米新農村三層房屋設計圖,磚混結構帶地下室
占地:138平方米左右
三層奢華歐式別墅圖片及全套設計圖,帶地下室和車庫
占地:208平方米左右
二層農村別墅新風尚,簡約實用,性價比高,美麗又實惠
占地:126平方米
一層時尚農村自建別墅方案,低至10萬的造價,適合住家養老
占地:131.04平方米
二開間小戶型設計三層農村自建房方案,經濟型適合小宅基地建房
占地:107.02平方米
二層氣質現代小洋樓設計圖,堪比城市別墅,全村最美沒商量
占地:121.07
二層半大客廳復式別墅房屋設計圖,客廳寬闊明亮
占地:125平方米
小戶型三層別墅設計圖,戶型經典,外觀精致、美觀
占地:95平方米
2026二層農村新款別墅新式二層樓房設計圖,非常時尚
占地:多種戶型
90平米三層農村房子設計圖,簡單大氣實用
占地:94.28平方米
堂屋共用的三層雙拼別墅設計圖,總占地面積245平米
占地:245平方米
小面寬大進深三層別墅圖紙設計,戶型非常實用經典
占地:171.39平方米
簡約實用農村自建房戶型圖,美觀經濟又通透,南北通透住得爽!
占地:160.6平方米
兩間二層農村自建房設計圖,面積雖小功能齊全,布局緊湊。
占地:118.75平方米
豪華大氣農村三層別墅圖紙,帶車庫、露臺,占地200平方米左右
占地:207平方米
小戶型農村三層房屋設計圖,占地120平米,布局非常合理,外表典
占地:120平方米
高端大氣三層半別墅客廳挑空設計,豪華農村自建房圖
占地:179.52平方米
中式古風別墅設計圖,一層三合院設計,經濟舒適,時尚與傳統的
占地:275.7平方米
12x13米豪華三層農村別墅設計圖,宅基地上的貴族人生
占地:156平方米
推薦:10套新農村自建房設計圖,2026年最新設計
閱讀次數:4825737次
100套鄉村別墅圖片大全,2026年最新設計
閱讀次數:2492203次
6款農村蓋一層平房的設計圖,10萬元就能建起來
閱讀次數:1852637次
這11個一層農村自建房別墅火爆了朋友圈!我最喜歡戶型十!你呢
閱讀次數:750268次
農村6萬元建一層小別墅圖,你敢相信嗎
閱讀次數:567686次
農村5萬塊就能自建房,6套普通房子設計圖分享,你沒看錯!
閱讀次數:419410次
8套農村漂亮三間平房圖片,非常適合在農村修建!
閱讀次數:411197次
農村自建房化糞池怎么做?附方案及施工過程
閱讀次數:391783次
農村一層三間平房設計圖,告別土氣養老房,讓人忍不住點贊
閱讀次數:350581次
新農村二層樓房圖片造價12萬,挑一套回家建房吧!
閱讀次數:349126次
