
今天小編就推薦3款適合農村自建的三層半房屋圖,外觀時尚大氣,看看有沒有你中意的。 第一款;歐式農村三層半自建房效果圖和戶型圖
效果圖展示
效果圖展示
效果圖展示 圖紙介紹:12x12米帶車庫豪華歐式四層自建別墅房屋別墅,客廳上空,每間臥室帶私衛。別墅外觀設計感十足。富貴之氣迎面而來。低調的配色給人一種穩重大氣之感!坡屋頂設計具有輕巧和空間延伸作用,與露臺配用起來非常有設計感。超大落地窗和多窗戶設計極大的增加了采光度和通風。 占地面積:12.0m*12.0m,140平方米 建筑層高:四層 建筑高度:16.2米(含屋頂) 設計功能: 一層戶型: 客廳,廚房,餐廳,公衛,車庫,臥室(帶衛生間)
戶型圖展示 二層戶型:客廳上空,客廳,公衛,臥室(帶衛生間)X3
戶型圖展示 三層戶型:臥室(帶衛生間)X3,陽臺,健身房,書房,起居室,公衛
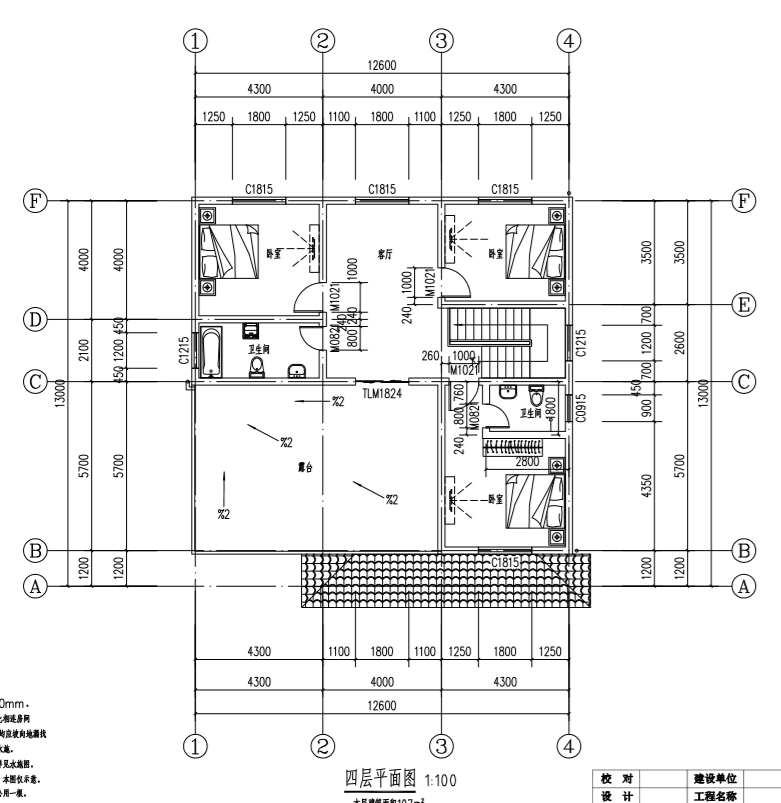
戶型圖展示 四層戶型:露臺,陽臺,書房,公衛,起居室,臥室(帶衛生間)X3
戶型圖展示 第二款:三層半復式農村別墅設計圖以及戶型圖
效果圖展示
效果圖展示
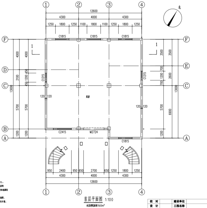
效果圖展示 圖紙介紹:這款三層半別墅設計方案,外部旋轉樓梯和一層設計為該方案亮點,一層可以自定義功能,可以當做庫房或相當于地下室功能。二、三、四層為居住使用,客廳,寬大的落地窗,戶型布局合理,功能齊全。 占地面積:12.6m*13.0m,160平方米左右 建筑層高:四層(三層半) 建筑高度:14.6米(含屋頂) 設計功能: 一層戶型展示:庫房(可根據自己需求自行隔斷,自定義功能)
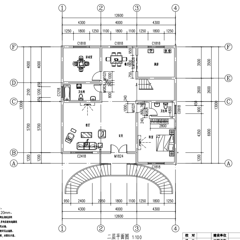
戶型圖展示 二層戶型展示:玄關、客廳、廚房、餐廳、棋牌室、主臥(帶衛生間)、衛生間
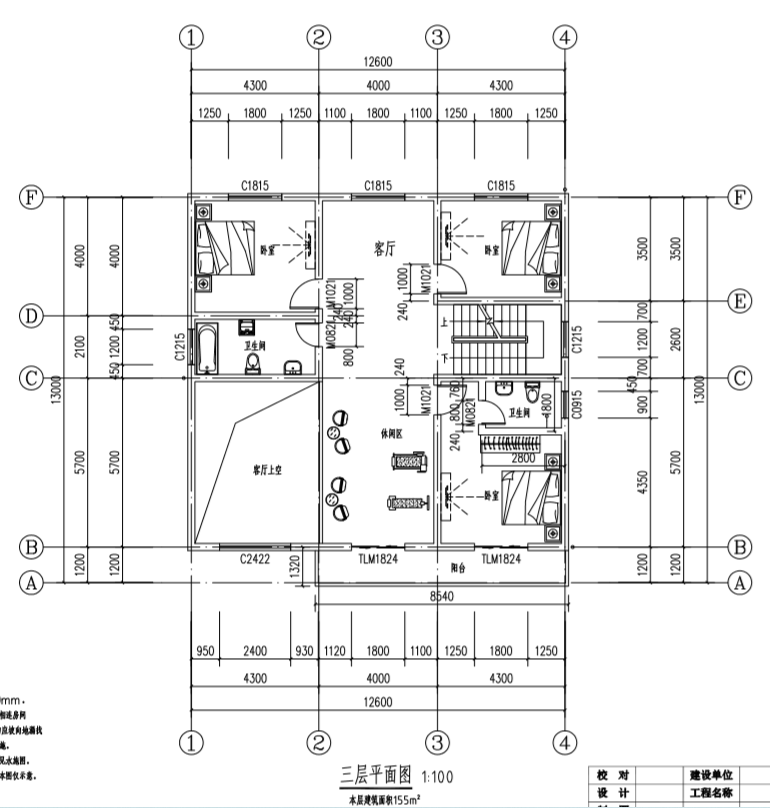
戶型圖展示 三層戶型展示:客廳上空、客廳、休閑區、主臥(帶衛生間)、臥室x2、衛生間、陽臺
戶型圖展示 四層戶型展示:客廳、主臥(帶衛生間)、臥室x2、衛生間、大露臺
戶型圖展示 第三款:平屋頂三層半農村自建別墅效果圖
效果圖展示
效果圖展示
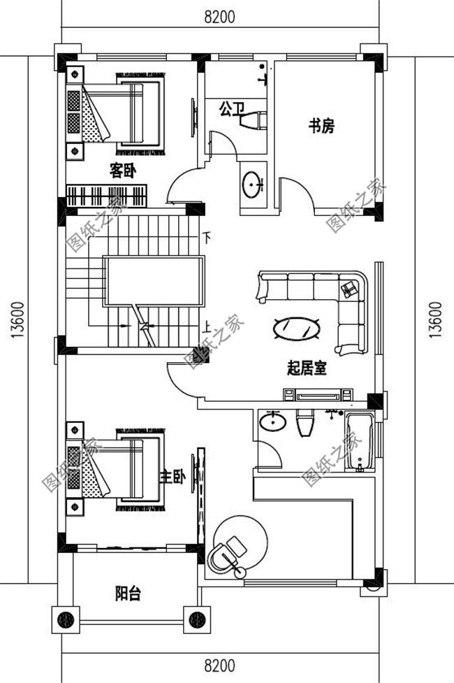
效果圖展示 圖紙介紹:這款平頂三層半樓房設計圖,大型落地窗搭配超大露臺涼亭!整體外觀看上去那是相當的豪華氣派。屋頂邊緣橘紅色的琉璃瓦鋪蓋,主墻外墻面采用米黃色真石漆、淺咖色面磚、褐色大理石瓷磚來裝飾,還有浮雕元素和歐式元素。入戶門處設有玄關,從門口不能直接看到屋內事物,隱私性比較好。二至三層布局:臥室帶衛生間和衣帽間,空間很大又具有單獨的實用空間,并且直通陽臺。大面積的室外休閑空間,足夠滿足日常生活。 占地面積:8.2m*13.6m,112平方米 建筑層高:四層 建筑高度:15.3米(含屋頂) 設計功能: 一層戶型: 玄關,客廳,廚房,餐廳,儲藏室,主臥,公衛
戶型圖展示 二層戶型:主臥(帶衛生間+陽臺+衣帽間),起居室,客臥,公衛,書房
戶型圖展示 三層戶型:主臥(帶衛生間+陽臺+衣帽間),起居室,客臥,公衛,書房
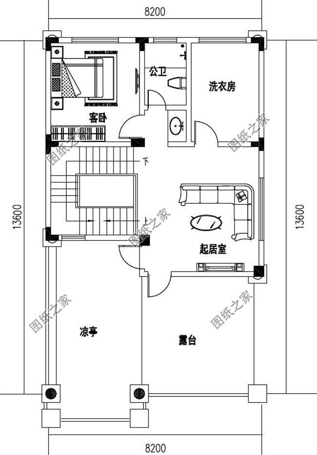
戶型圖展示 四層戶型:涼亭,露臺,起居室,客臥,公衛,洗衣房
戶型圖展示 建房是一生之中的大事,在選圖時一定要慎重再慎重呀!以上就是小編推薦的適合南方農村自建的三層半房屋圖以及戶型圖,有你喜歡的嗎?評論區告訴我! 圖紙之家-專注農村別墅/自建房設計18年,集合國內200余位經驗豐富的設計師,被評為口碑最好的農村建筑設計公司! |

95平米二層別墅必蓋戶型圖,造型洋氣,布局接地氣,趕緊回村建
占地:95.38平方米
新農村三層房屋設計圖紙大全,新農村住宅圖紙
占地:108平方米
最新140平米三層自建房屋設計圖紙,本戶型帶小院
占地:140平米
農村現代三層建房子設計圖及圖片,平屋頂的設計
占地:150平方米
帶車庫的三層房屋方案設計圖,帶堂屋全套圖紙
占地:163.8平方米
自建三層小洋樓設計圖紙,含效果圖,帶車庫
占地:121平方米
帶開放式車庫的二層別墅!配土灶、室外樓梯,新穎還顯品味
占地:127.2平方米
135平鄉村三層復式樓房設計圖,自建房推薦
占地:135平方米
農村最好看18萬左右兩層小樓圖,外觀、造型簡潔大方
占地:120平方米
一層平屋頂自建房圖,簡單而舒適,既省錢不說還不愁沒地曬糧食
占地:106平方米
三層現代簡約農村雙拼小別墅圖,好看精致,開間17米
占地:187平方米
別致美觀的簡歐二層別墅房屋設計圖,含外觀效果圖
占地:145平方米
110平方米二層自建小別墅設計CAD施工圖紙帶效果圖,12x13米
占地:110平方米
12x13米豪華三層農村別墅設計圖,宅基地上的貴族人生
占地:156平方米
新農村140平米樓房圖四層獨棟別墅設計圖,簡歐外觀風格設計
占地:141平方米
三層新農村小別墅設計圖紙,占地120平米,客廳中空,帶大露臺
占地:120平方米
兩層農村自建二層樓設計圖紙,面寬12米左右
占地:131.2平方米
農村二層住宅樓房設計圖紙,全套方案(施工圖+效果圖)
占地:113平方米
90平-100平小戶型一層三間平房農村別墅設計圖方案戶型
占地:多戶型可選
農村一層養老別墅設計圖,兩個戶型方案可選
占地:多種戶型
推薦:10套新農村自建房設計圖,2026年最新設計
閱讀次數:4825737次
100套鄉村別墅圖片大全,2026年最新設計
閱讀次數:2492203次
6款農村蓋一層平房的設計圖,10萬元就能建起來
閱讀次數:1852637次
這11個一層農村自建房別墅火爆了朋友圈!我最喜歡戶型十!你呢
閱讀次數:750268次
農村6萬元建一層小別墅圖,你敢相信嗎
閱讀次數:567686次
農村5萬塊就能自建房,6套普通房子設計圖分享,你沒看錯!
閱讀次數:419410次
8套農村漂亮三間平房圖片,非常適合在農村修建!
閱讀次數:411197次
農村自建房化糞池怎么做?附方案及施工過程
閱讀次數:391783次
農村一層三間平房設計圖,告別土氣養老房,讓人忍不住點贊
閱讀次數:350581次
新農村二層樓房圖片造價12萬,挑一套回家建房吧!
閱讀次數:349126次
