
第一套:現代二層樓房設計圖,造價僅25萬,風格獨特圖紙介紹:這款設計圖紙外觀新潮獨特,風格簡約大氣,配色也非常的溫暖,線條簡單,讓人非常喜歡,這樣的房子在農村簡直太好看,跟城里的花園洋房有的一拼。 占地面積:13.44m*12.3m,150平方米左右; 建筑層高:二層; 建筑高度:8.9米(含屋頂); 設計功能: 一層戶型:客廳、休閑茶區、衛生間、臥室、棋牌室、室外涼亭、車庫; 二層戶型:客廳上空、主臥(帶衣帽間)、臥室x2、衛生間、露臺;
二層別墅設計外觀圖展示
二層別墅設計戶型圖展示 第二套:農村現代風兩層小別墅,外觀超級好看圖紙介紹:這款戶型外觀超級好看,小清新,華麗高大,住進這么美的房子里,不就實現了別墅夢了嗎? 占地面積:A戶型 13.8m*12.0m,135平方米左右; 建筑層高:二層; 建筑高度:9.74米(含屋頂); 設計功能: 一層戶型:客廳、餐廳、廚房、臥室×2、衛生間、洗衣區; 二層戶型:起居室,臥室×3、棋牌室、衛生間、書房、露臺、陽臺;
別墅外觀圖展示
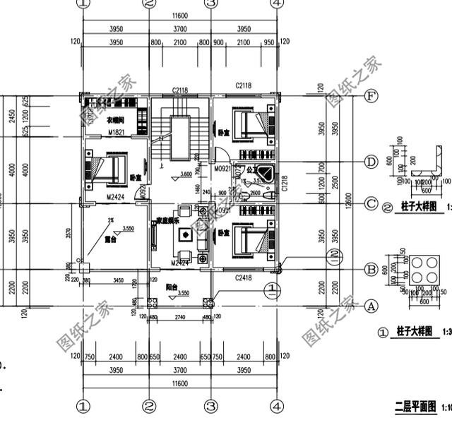
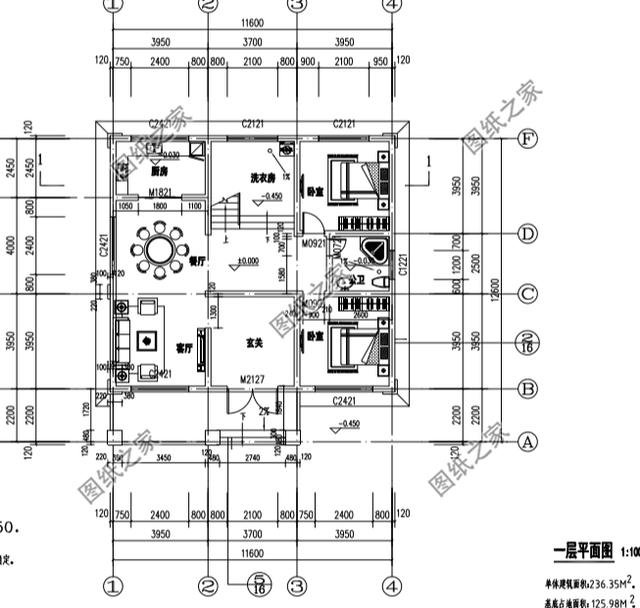
別墅戶型圖展示 第三套:二層小別墅設計圖,歐式風格,含全套建筑設計圖紙圖紙介紹:這款戶型造型精致華美,外墻采用的是非常經典的暖色調,看上去很溫馨,非常適合農村自建。房子雖然占地面積不是很大但是功能很齊全,內部布局很合理,空間利用率高。 占地面積:11.60m*12.60m,146平方米左右; 建筑層高:二層; 建筑高度:9米左右(含屋頂); 設計功能: 一層戶型:門廳、玄關、客廳、餐廳、廚房 、臥室x2、衛生間、洗衣房; 二層戶型:家庭娛樂廳、臥室(帶衣帽間)、臥室x2、衛生間、陽臺、露臺;
別墅效果圖展示
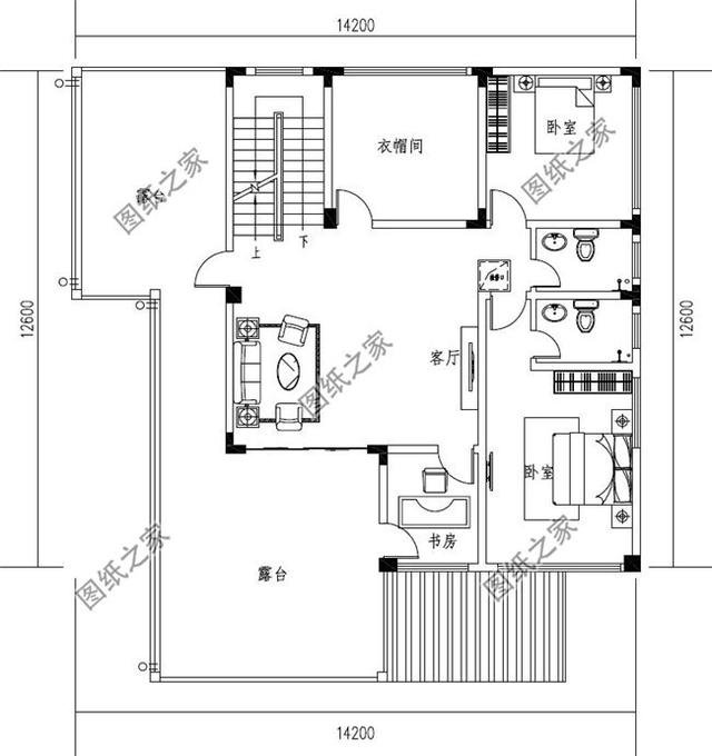
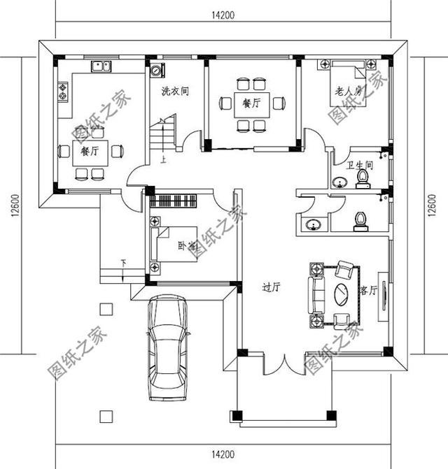
別墅平面圖展示 第四套:農村現代二層別墅設計圖,帶外觀效果圖,占地145平方米左右圖紙介紹:這款別墅經濟實用,而且帶車庫,占地145平方米左右,主體造價30萬內,功能布局合理,空間利用率高,適合大部分農村建房。 占地面積:14.2m*12.6m,145平方米左右; 建筑層高:二層; 建筑高度:9.95米(含屋頂); 設計功能: 一層戶型:過廳、客廳、廚房、餐廳、洗衣間、老人房、臥室、衛生間x2、車庫; 二層戶型:客廳、書房、臥室(帶衛生間)、臥室、衣帽間、衛生間、露臺;
別墅外觀效果圖展示
別墅平面圖展示 這四套2020年新款二層別墅圖有沒有驚艷到你呢?最喜歡哪一套,趕快下方留言告訴小編吧。 圖紙之家-專注農村別墅/自建房設計18年,集合國內200余位經驗豐富的設計師,被評為口碑最好的農村建筑設計公司! |

占地70平米一層小戶型別墅設計圖,功能齊全造價低,耐看實用
占地:70.19平方米
獨棟別墅設計戶型圖帶外觀效果圖,雙向樓梯設計
占地:155平方米
新農村二層客廳挑高樓房設計圖,外觀歐式風格
占地:178平方米
150平歐式別墅房屋設計圖,外觀精美、氣派
占地:150平方米
精致簡歐一層別墅設計圖,經典大氣百看不厭
占地:139.57平方米
現代風格三拼別墅設計圖紙,三兄弟回村自建房戶型
占地:324平方米
150平米二層鄉村小別墅圖,戶型合理,外觀清新淡雅
占地:150平方米
二層自建房屋設計圖,帶小院,帶地下室,外觀現代、時尚,內部
占地:200平米
130平方米別墅設計圖紙(含外觀效果圖,)三層別墅設計方案
占地:135平方米
新式帶挑空客廳三層鄉村別墅設計圖,占地170平左右
占地:170平方米
新農村兩層半小洋樓房設計圖,預算33萬左右
占地:多種戶型
20萬農村二層小洋樓設計圖,帶鍋爐房,漂亮簡單實用
占地:165平方米
新款中式二層四合院住宅設計圖,農村自建帶露臺設計
占地:223平方米
農村五開間大平層設計圖,主體15萬就能建。
占地:182.43平方米
漂亮時尚二層樓房設計圖紙,經濟實用,戶型通透
占地:150平方米
面寬不到8米的農村二層半別墅建筑圖紙及效果圖
占地:96平方米左右
高顏值又實用的一層雙拼鄉村別墅設計圖,舒適度堪比豪宅
占地:217.3平方米
實用型二層別墅設計方案,占地120平米簡單大方最耐看
占地:120平方米
農村13萬元二層小樓圖,簡單易建,造價低
占地:110平方米
165平方米農村帶陽光房的二層小別墅設計圖紙帶外觀圖18.16米*9.
占地:166平方米
推薦:10套新農村自建房設計圖,2026年最新設計
閱讀次數:4825737次
100套鄉村別墅圖片大全,2026年最新設計
閱讀次數:2492203次
6款農村蓋一層平房的設計圖,10萬元就能建起來
閱讀次數:1852637次
這11個一層農村自建房別墅火爆了朋友圈!我最喜歡戶型十!你呢
閱讀次數:750268次
農村6萬元建一層小別墅圖,你敢相信嗎
閱讀次數:567686次
農村5萬塊就能自建房,6套普通房子設計圖分享,你沒看錯!
閱讀次數:419410次
8套農村漂亮三間平房圖片,非常適合在農村修建!
閱讀次數:411197次
農村自建房化糞池怎么做?附方案及施工過程
閱讀次數:391783次
農村一層三間平房設計圖,告別土氣養老房,讓人忍不住點贊
閱讀次數:350581次
新農村二層樓房圖片造價12萬,挑一套回家建房吧!
閱讀次數:349126次
