
|
我們都經常會聽到一個人對另一個人作出這樣的評價,第一眼看上去很好看,但是看多了就會覺得其實也很一般,這種就屬于那種不耐看的類型;其實不只是人,房子也是這樣,很多房子的戶型看上去第一眼可能會給人一種很驚艷的感覺,但是多看幾次,也就那樣。所以在我們挑選別墅戶型的時候,一定要選一款好看又耐看的戶型,這樣房子不易過時。今天就給大家推薦五套四層超豪華別墅外觀圖,絕對讓你看了就喜歡,尤其是家庭人口多的趕緊安排上啦。 第一款:新農村四層獨棟別墅設計圖,豪華時尚圖紙介紹:這款四層復式別墅設計圖,設計外觀豪華時尚,設計師是針對農村建房審美而設計,非常的奢華和實用,每一層都有充足的活動區域。
占地面積:12.3m*11.60m,143平方米左右; 建筑層高:四層; 建筑高度:16.1米(含屋頂); 設計功能: 一層戶型展示:客廳、小客廳、廚房、餐廳、老人房(帶衛生間)、衛生間; 二層戶型展示:客廳上空、茶座、主臥(套衛、書房、衣帽間)、次臥(帶套衛)、陽臺; 三層戶型展示:茶座、主臥(套衛)、次臥(帶套衛)×2、陽臺、書房; 四層戶型展示:健身房、影音室、洗衣房、陽光房、小露臺;
第二款:農村自建房四層別墅設計圖,客廳中空,主體造價60萬左右圖紙介紹:這款戶型客廳中空,有茶室、書房和娛樂室,功能非常齊全,氣派的讓人羨慕。廚房還有后門,很符合農村的生活習慣,最有亮點的是它的樓梯從旋轉樓梯完成直角樓梯的切換,洋氣又節省空間。
占地面積:13.50m*16.3m,170平方米左右; 建筑層高:四層; 建筑高度:16.6米(含屋頂); 設計功能: 一層戶型展示:客廳、廚房、餐廳、茶室、臥室、衛生間; 二層戶型展示:客廳上空、客廳、臥室(帶衛生間、衣帽間)、臥室×2、公衛; 三層戶型展示:娛樂室、臥室(帶衛生間、衣帽間)、臥室×3、公衛、陽臺、露臺; 四層戶型展示:棋牌室、書房、涼亭、臥室×2、露臺;
第三款:農村四層樓房設計圖,造價40-45萬左右圖紙介紹:這款戶型主臥配有陽臺和衣帽間還有衛生間,功能非常多;還有陽光房,可以站在高處觀景,非常享受的居住體驗。
占地面積:10.40m*12.8m,126平方米左右; 建筑層高:四層; 建筑高度:16.5米(含屋頂); 設計功能: 一層戶型展示:客廳、餐廳、廚房、臥室(帶衛生間)、公衛; 二層戶型展示:休息廳、主臥(帶衣帽間和衛生間)、臥室(帶衛生間)、臥室、公衛、陽臺; 三層戶型展示:休息廳、臥室(帶衛生間、書房)、臥室(帶衛生間)、臥室、公衛; 四層戶型展示:KTV、儲藏室、露臺、公衛×2、;陽光房;
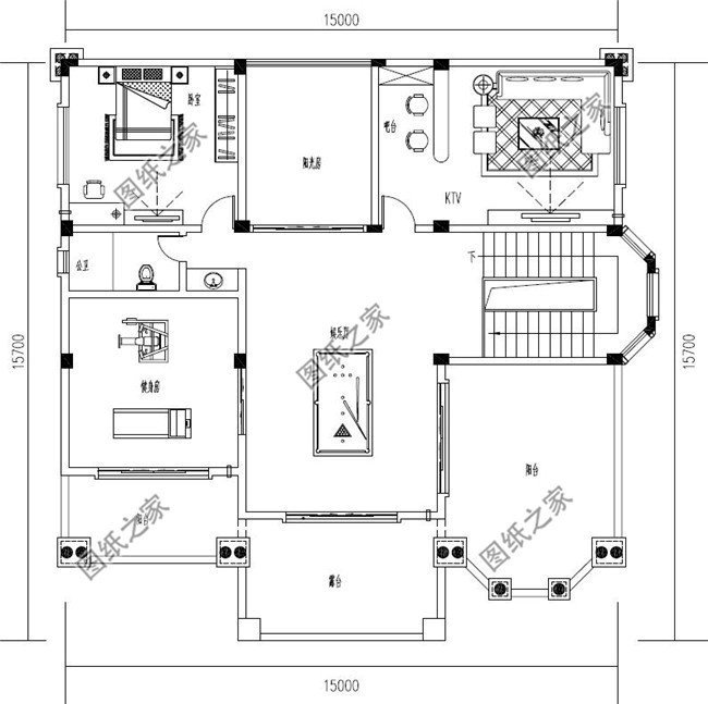
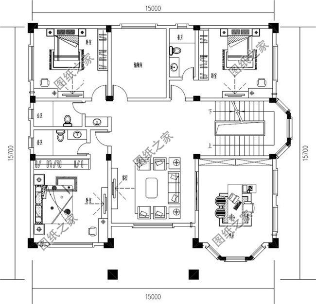
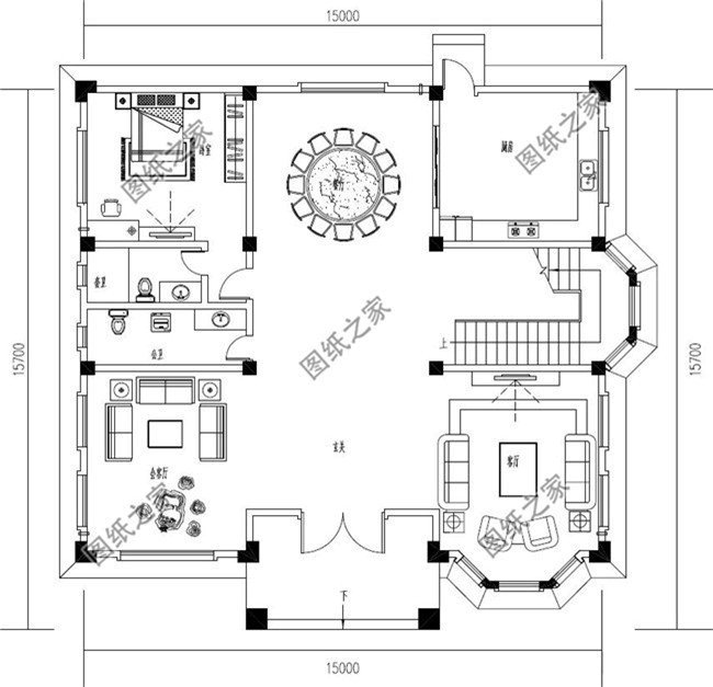
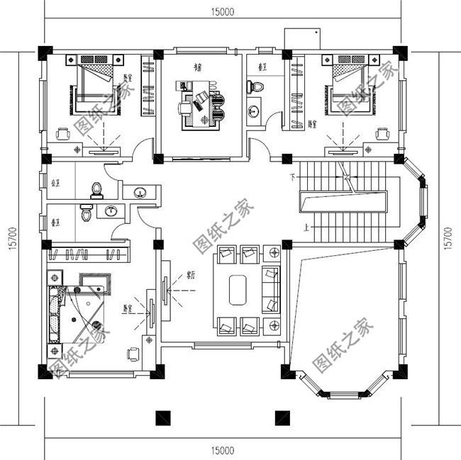
第四款:農村新款四層復式別墅設計圖,外觀清新別致圖紙介紹:這款戶型外觀清新別致,擁有經典的歐式外觀,整體細節精致。最亮眼的就是他的別墅門柱設計,直通三層,到了晚上室內亮燈的時候絕對是整個鎮上最耀眼的一棟。
占地面積:15m*15.7m,207平方米左右; 建筑層高:四層; 建筑高度:16.48米(含屋頂); 設計功能: 一層戶型:玄關、客廳、會客廳、廚房、餐廳、臥室(帶衣帽間)、衛生間; 二層戶型:客廳上空、客廳、書房、臥室(帶衛生間)x2、臥室、衛生間; 三層戶型:客廳、書房、儲物間、臥室(帶衛生間)x2、臥室、衛生間; 四層戶型:娛樂廳、KTV、健身房、陽光房、臥室、衛生間、陽臺、露臺;
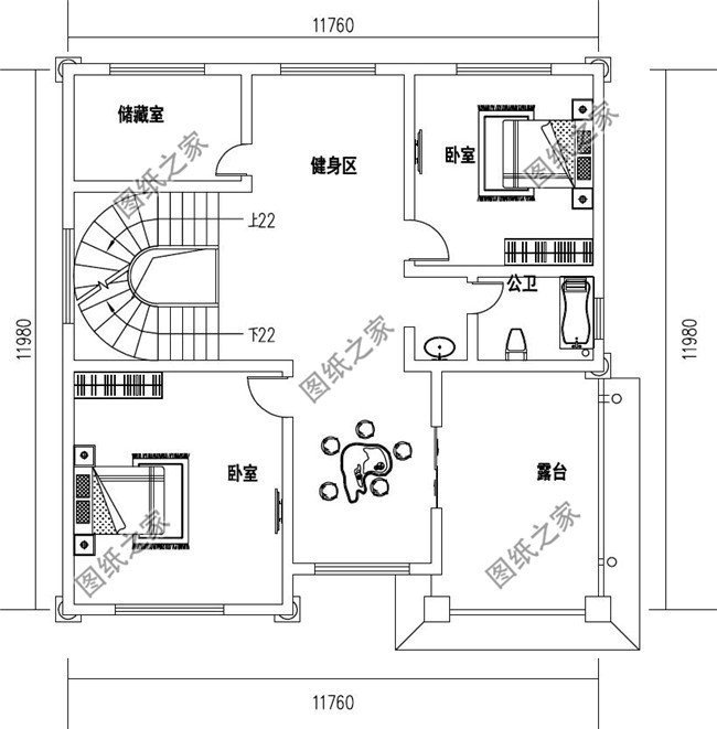
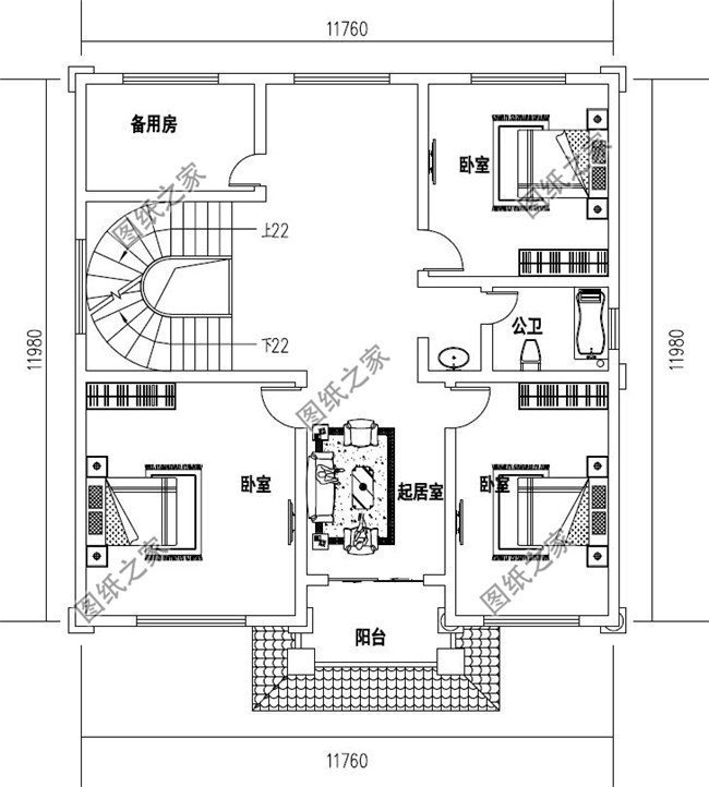
第五款:農村四層樓房設計圖,復式客廳旋轉樓梯,主體造價38萬左右圖紙介紹:這款戶型外觀大氣,簡歐風格,非常干凈簡潔,大落地窗浮雕設計,增添大氣感;室內有中空客廳、健身區以及休閑區,非常符合農村建房標準。
占地面積:11.76m*11.98m,143平方米左右; 建筑層高:四層; 建筑高度:16.59米(含屋頂); 設計功能: 一層戶型:客廳、廚房、餐廳、臥室、儲藏室、衛生間; 二層戶型:客廳上空、起居室、休閑區、備用房、臥室x2、衛生間、陽臺; 三層戶型:起居室、備用房、臥室x3、衛生間、陽臺; 四層戶型:臥室x2、休閑區、儲藏室、健身區、衛生間、露臺;
這五套超豪華四層別墅外觀圖有沒有豪到你呢?蓋一棟這樣的房子簡直就是全村最耀眼的啊,喜歡哪一棟趕快留言告訴小編。
圖紙之家-專注農村別墅/自建房設計18年,集合國內200余位經驗豐富的設計師,被評為口碑最好的農村建筑設計公司! |

2026最美三層別墅設計圖紙及效果圖,十佳最美農村別墅
占地:151平方米
時尚創意型二層小別墅設計圖,占地面積110平方米,外觀清新典雅
占地:110平方米
四間兩層農村別墅戶型圖,外觀時尚色調搭配和諧,占地超200平米
占地:212.95平方米
實用三層新農村住宅設計圖,鄉村別墅設計圖(含外觀效果圖)
占地:102.34平方米
新農村三層別墅設計圖紙及效果圖,全套cad建筑圖
占地:119平方米
180平方米新農村自建二層小別墅設計圖及效果圖,15X13米
占地:183平方米
110平米一層小別墅設計方案,布局四室兩廳一廚兩衛
占地:110.5平方米
方正對稱二層農村自建別墅施工圖,經濟實用舒適大氣
占地:129.6平方米
帶架空層的兩層別墅設計圖,通透又明亮,建在農村絕對有面子
占地:106.79平方米
農村兩間兩層樓房設計圖,造價15萬左右,獨立的廚房設計,干凈
占地:95平方米
90平方米農村二層房屋設計圖紙(施工圖+效果圖)
占地:90平方米
鄉村一層平房設計圖,面寬13米平面圖及造型圖
占地:170平方米
農村三層歐式別墅豪宅戶型圖設計方案,復式中空客廳+旋轉樓梯
占地:134.84平方米
12x10米農村建房圖紙,客廳中空,讓你后半輩子在稱贊聲中度過
占地:120平方米
新中式三層雙拼別墅設計圖,外觀圖片美觀、大氣
占地:176平方米
超實用的農村一層別墅設計圖,經濟實惠養老自住都不錯,
占地:128.35平方米
歐式二層別墅設計圖,漂亮實用性價比還高,13米乘10米
占地:130平方米
鄉村二層別墅設計圖,含外觀效果圖,設計師推薦
占地:140平方米
小占地三層現代時尚風別墅設計圖,平屋頂占地不足100平
占地:98.35平方米
110平方米農村三層自建房設計圖紙帶外觀圖
占地:110平方米
推薦:10套新農村自建房設計圖,2026年最新設計
閱讀次數:4825737次
100套鄉村別墅圖片大全,2026年最新設計
閱讀次數:2492203次
6款農村蓋一層平房的設計圖,10萬元就能建起來
閱讀次數:1852637次
這11個一層農村自建房別墅火爆了朋友圈!我最喜歡戶型十!你呢
閱讀次數:750268次
農村6萬元建一層小別墅圖,你敢相信嗎
閱讀次數:567686次
農村5萬塊就能自建房,6套普通房子設計圖分享,你沒看錯!
閱讀次數:419410次
8套農村漂亮三間平房圖片,非常適合在農村修建!
閱讀次數:411197次
農村自建房化糞池怎么做?附方案及施工過程
閱讀次數:391783次
農村一層三間平房設計圖,告別土氣養老房,讓人忍不住點贊
閱讀次數:350581次
新農村二層樓房圖片造價12萬,挑一套回家建房吧!
閱讀次數:349126次
