
|
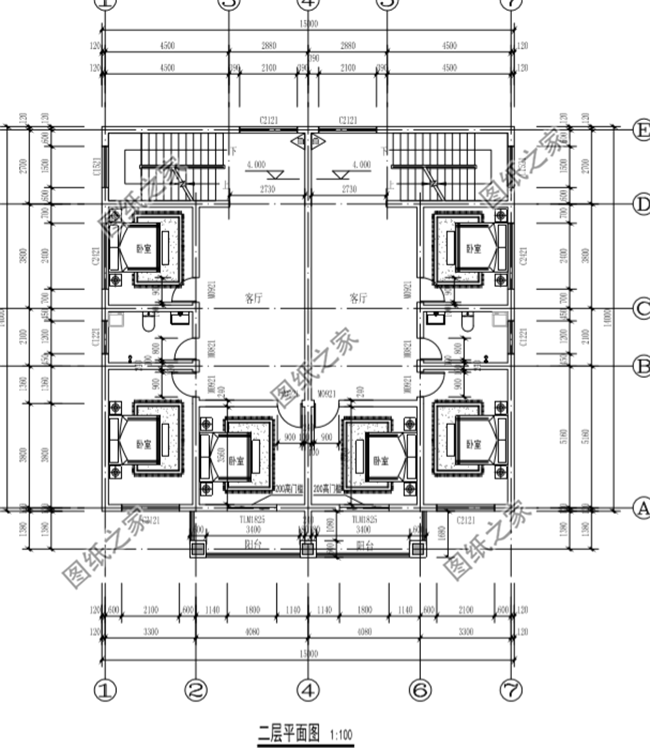
很多農村家庭基本上都是兩個兒子,雖然說養兒防老,但是兩個兒子結婚也成了一筆麻煩事。光是房子,就需要非常大的花銷,再加上有的人家宅基地就一塊,給誰都不好,那怎么辦呢?其實建一棟雙拼別墅倒是一個不錯的選擇,兩個兄弟住在一起,生活上也有了幫襯。今天小編就給大家介紹四款兄弟雙拼四間三層別墅設計圖,宅基地小沒關系,這幾款總有適合你的。 方案一:兄弟雙拼四間三層別墅設計圖,主體造價40萬左右,占地210平米圖紙介紹:本戶型占地210平米,主體造價40萬左右,兄弟兩個一起建雙拼別墅可以節約很多不必要的花銷,也更加團結,父母見了也開心。
房屋基本信息介紹: 占地面積:15.0m*14.0m,210平方米左右,單戶105平方米左右; 建筑層高:三層; 建筑高度:11.7米(含屋頂); 設計功能: 一 層:客廳、餐廳、廚房、臥室、衛生間、儲藏間; 二 層:客廳、臥室x3、衛生間、陽臺; 三 層:客廳、臥室x2、衛生間、陽臺、大露臺;
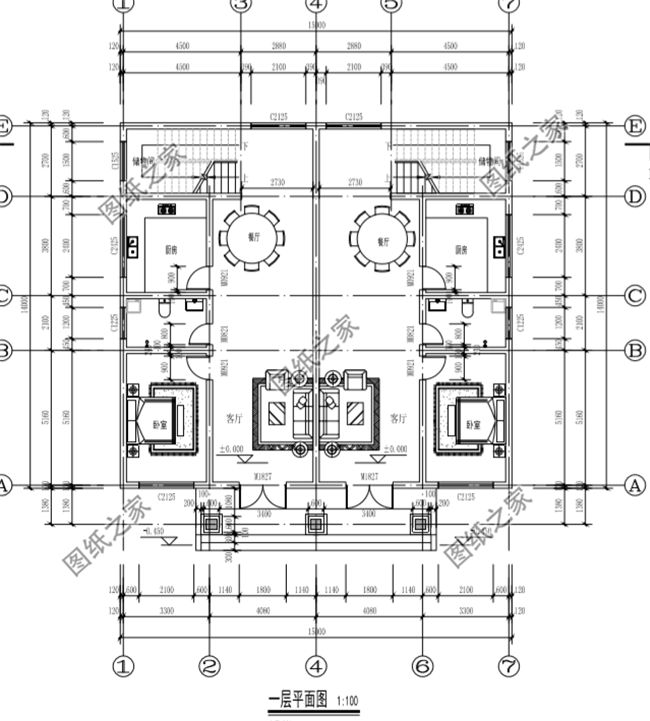
方案二:三層兄弟雙拼別墅設計圖,14×12米自建房戶型圖圖紙介紹:本戶型設有陽臺,露臺,空間利用率極高;造型美觀,建筑整體為歐式風格建筑,一共三層,空間大,內部設計布局也非常合理。
房屋基本信息介紹: 占地面積:14m*12.2m,154平方米左右,單戶77平左右; 建筑層高:三層; 建筑高度:12米(含屋頂); 設計功能: 一層:入口玄關、客廳、餐廳、廚房、臥室、衛生間; 二層:客廳、臥室x4、衛生間、露臺、陽臺; 三層:臥室、衛生間、露臺;
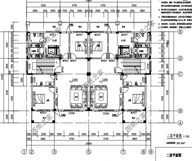
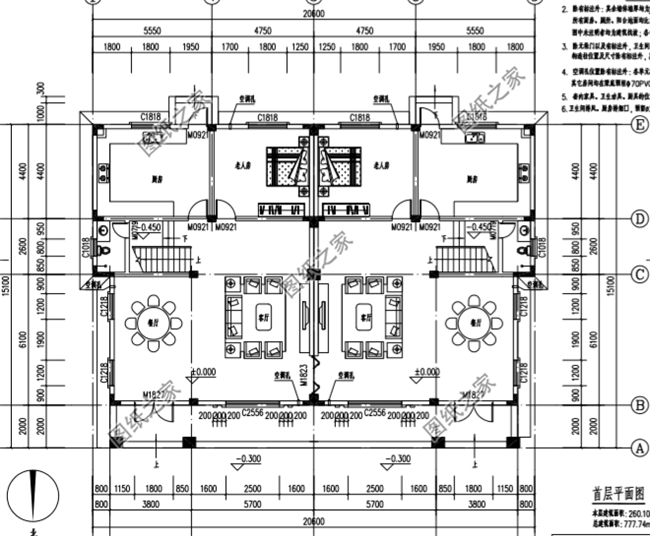
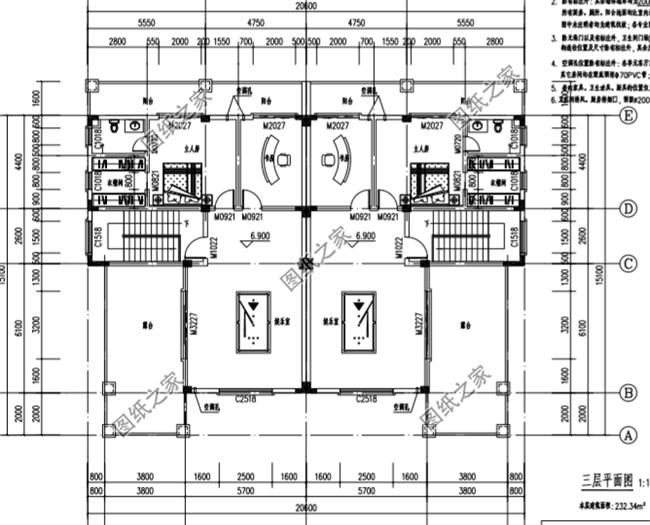
方案三:兄弟雙拼四間三層別墅設計圖,農村自建戶型方案圖圖紙介紹:本戶型占地260平方米,外觀顏色搭配低調,簡單大氣;三層有獨立書房、娛樂室和大露臺。
房屋基本信息介紹: 占地面積:20.6m*15.1m,260平方米左右,單戶130平左右; 建筑層高:三層; 建筑高度:13.09米(含屋頂); 設計功能: 一層:客廳、餐廳、廚房、老人房、衛生間; 二層:客廳、臥室(帶衣帽間、衛生間)、臥室×2、衛生間、陽臺; 三層:臥室(帶衣帽間、衛生間)、書房、娛樂區、衛生間、大露臺;
方案四:三層兄弟雙拼別墅設計圖,堂屋共用,倆兄弟就這樣建圖紙介紹:本戶型堂屋是兩家共用的,二層每戶都有三間臥室,室外還有走廊和陽臺,滿足日常晾曬需求;三層每戶有兩間臥室,室外有共有大露臺,非常方便。
房屋基本信息介紹: 占地面積:18.76m*10.26m,187.033平方米左右,單戶93.52平左右; 建筑層高:三層; 建筑高度:12.051米(含屋頂); 設計功能: 一層:堂屋、客廳、餐廳、廚房、臥室、洗漱臺; 二層:起居室、臥室x3、衛生間、陽臺; 三層:臥室x2、衛生間、露臺x3;
以上4套都是雙拼戶型,款款美觀大氣,兄弟倆合建一棟雙拼別墅,把感情維系到老,你覺得如何?喜歡哪一款快快留言告訴小編吧。
圖紙之家-專注農村別墅/自建房設計18年,集合國內200余位經驗豐富的設計師,被評為口碑最好的農村建筑設計公司! |

帶車庫三間復式三層樓房設計圖,外觀精致、大方
占地:150平方米
120平方房子設計圖帶效果圖,農村自建房戶型推薦
占地:120平方米
帶車位的鄉村二層別墅建筑結構設計圖,全套施工圖140平
占地:139.85平方米
仿古中式三合院設計圖紙,帶堂屋,適合農村自建
占地:173平方米
爆款120平米三層農村別墅房屋設計圖,室內布局功能齊全,色彩搭
占地:120平方米
好看精致的三層自建房別墅設計圖,開間12米進深12米左右
占地:125.73平方米
二層半別墅設計圖,占地150平米,帶露臺,地中海風格,內部布局
占地:150平方米
小開間三層新中式小別墅設計圖,外觀圖優雅大氣,讓人心動!
占地:103.18平方米
2026最新款50萬左右農村三層別墅設計圖,客廳中空
占地:160平方米
新中式三層別墅,旋轉樓梯+挑空客廳,高級感拉滿
占地:125平方米
帶架空層的農村二層別墅設計方案,造型大氣漂亮
占地:176平方米
造價25萬農村二層小別墅設計圖,外觀效果圖美觀、精致
占地:165平方米
農村10萬元一層小別墅設計圖紙,戶型實用又合理
占地:130平方米
占地130平三層現代別墅設計圖方案,帶電梯和地下室設計
占地:134.75平方米
兩層中式三合院別墅設計圖紙,堂屋套臥全都有,蓋一棟面子十足
占地:181.93平方米
10套農村經典二層樓房設計圖紙,多戶型,多尺寸,總有一款適合
占地:多種
新農村二層歐式別墅設計圖,外觀漂亮,主體18萬起建
占地:115.2平方米
經典小戶型新農村房屋住宅設計圖,10萬左右
占地:80平方米
10米×12米30萬以內農村建房三層豪華歐式別墅圖,處處顯品味
占地:120平方米
新農村兄弟合建三層雙拼房屋設計方案圖,開間18米有全套圖紙
占地:237.21平方米
推薦:10套新農村自建房設計圖,2026年最新設計
閱讀次數:4825737次
100套鄉村別墅圖片大全,2026年最新設計
閱讀次數:2492203次
6款農村蓋一層平房的設計圖,10萬元就能建起來
閱讀次數:1852637次
這11個一層農村自建房別墅火爆了朋友圈!我最喜歡戶型十!你呢
閱讀次數:750268次
農村6萬元建一層小別墅圖,你敢相信嗎
閱讀次數:567686次
農村5萬塊就能自建房,6套普通房子設計圖分享,你沒看錯!
閱讀次數:419410次
8套農村漂亮三間平房圖片,非常適合在農村修建!
閱讀次數:411197次
農村自建房化糞池怎么做?附方案及施工過程
閱讀次數:391783次
農村一層三間平房設計圖,告別土氣養老房,讓人忍不住點贊
閱讀次數:350581次
新農村二層樓房圖片造價12萬,挑一套回家建房吧!
閱讀次數:349126次
