
|
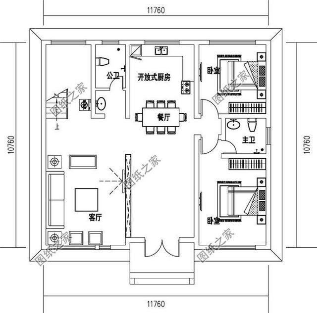
每個人心中都夢想著擁有一個幸福溫馨的小窩,這里載滿生活中的點點滴滴,家是一個幸福美麗的港灣。想到在農村建房,就要考慮家里人口、宅基地大小以及父母養老三個大的問題。父母養老房,一層就已經足夠。但時不時兒女回來,可能就沒地方住了。 今天為大家介紹的一層和二層平頂自建房設計圖,正是基于此所打造出來的,戶型布局夠簡單,既可以成為養老房,讓父母居住,也可以后期加建。一切按照家人的意愿來布置。 第一款:一層鄉村別墅設計圖,造價僅7萬![]() 平屋頂自建房圖紙,墻體采用大面積的米白色外墻磚搭配黃色文化石,以及藍色屋面瓦,整體配色素凈淡雅。建筑周邊有綠植點綴,大大提升了空間品質,為業主打造出了自然舒適的生活環境。 占地面積:10.6m*7.9.m,79.478平方米左右 建筑層高:一層 建筑高度:6.17米(含屋頂) 設計戶型:客廳、廚房、餐廳、臥室x2、衛生間、儲藏間(也可以預留樓梯口,后期加建) ![]() 第二款:新農村一層簡單自建別墅設計圖紙,造價10萬![]() ![]() ![]() 這款一層別墅設計圖占地130平方米左右,外觀配色清新亮麗,以橘黃色系為主。門前有走廊,方便日常生活,室內布局實用且合理,有四間臥室,親戚來串門也不怕沒有地方住了,別墅造價經濟,施工簡單,非常適合農村建造。 占地面積:12.8m*10m 建筑層高:一層 建筑高度:4.8米(含屋頂) 設計戶型:客廳、餐廳、廚房、主臥(帶衛生間)、臥室x3、衛生間 ![]() 第三款:現代時尚二層別墅效果圖,造價15萬![]() ![]() ![]() 這款現代風格的別墅設計,新型材料的運用,幾何形狀的設計,藝術裝飾的設計,別墅的上上下下無不充斥著現代、時尚的感覺,整體外立面的設計語言非常簡潔,除了筆直的白墻就是各種形狀的窗戶。內部戶型十分合理,由于是平屋頂設計,屋頂的使用范圍很廣,為日常生活提供了便利。 占地面積:11.76m*10.76m,130平方米左右 建筑層高:二層 建筑高度:10米(含屋頂) 設計功能: 一層戶型:客廳、廚房、餐廳、臥室(帶衛生間)、臥室、衛生間 二層戶型:客廳上空、起居室、臥室(帶衛生間)、臥室、衣帽間儲物間、衛生間 ![]() ![]() 第四款:農村簡單現代風兩層四間自建房設計圖,造價18萬![]() 平屋頂別墅設計戶型圖,簡單又實用,洋氣得不行!暖色外墻,屋檐處用紅色的琉璃瓦裝飾,清新雅致。門口的玄關很好地避免了開門見山,客廳與餐廳相連 面積非常的大,整體功能分區較為明確,公共區域較大,貼合農村生活;二層作為起居空間使用,起居室與樓梯間相對,臥室通過起居室相連為一個整體。臥室均有極好采光面;采用平屋頂設計,為了騰出空間做屋頂的大露臺,可以做屋頂花園,還能觀賞美景,晾曬東西,實用性比較高。 占地面積:15.76m*13.26m,192平方米左右 建筑層高:二層 建筑高度:11.125米(含屋頂) 設計功能: 一層戶型:客廳、活動室、廚房、餐廳、臥室(帶衛生間)、臥室x2、衛生間 二層戶型:起居室、書房、臥室(帶衣帽間、衛生間)、臥室x3、衛生間、陽臺x2 ![]() ![]() 有沒有你喜歡的設計圖?可以告訴我哦!建房選圖是很重要的,建好后不滿意的話,勞民又傷財。關注我帶你看更多自建房設計圖。
圖紙之家-專注農村別墅/自建房設計18年,集合國內200余位經驗豐富的設計師,被評為口碑最好的農村建筑設計公司! |

面寬10米左右的三層農村別墅設計案例,低調又奢華
占地:120平方米
二層自建房子最新款設計圖,平屋頂簡約經濟,美觀不失大方。
占地:115.64平方米
最火現代風三層半別墅設計圖,時尚簡約寬敞舒適
占地:169平方米
南方新農村三層別墅設計圖紙,含效果圖,帶車庫
占地:120平方米
100平方米二層中式小別墅設計圖紙級效果圖片
占地:99平方米
160平方米左右二層自建別墅設計圖,對稱設計,23萬建好
占地:157平方米左右
帶大套間新農村二層別墅自建房設計圖紙帶效果圖
占地:185平方米
帶地下室三層豪華大氣新農村房屋設計圖,占地150平米左右
占地:150平方米
農村建房兄弟雙拼兩層住宅設計圖,單戶150平米左右
占地:300平方米
三層獨棟別墅設計圖紙帶效果圖,全套施工方案(建筑圖+結構圖
占地:144平方米
農村一層四開間自建別墅,美麗住宅如詩如畫里15米乘10米
占地:142平方米
130平氣派美觀的二層別墅房屋設計圖,含效果圖
占地:130平方米
新中式復式三層別墅設計圖紙,最美的新中式別墅
占地:130平方米
進深9米的農村自建一層養老房戶型方案,三室二廳兩衛
占地:133.2平方米
一層帶地下室雙拼別墅設計圖,理想鄉村生活的標配
占地:416平方米
新徽派農村三層小別墅設計圖,白墻黛瓦中式風,12米乘11米
占地:115.46平方米
三層新農村自建小型別墅設計圖及效果圖,三間三層樓房戶型
占地:114平方米
新農村兩層帶露臺自建房設計圖,造價30萬內
占地:170平方米
新農村自建三層樓房設計圖紙,外觀簡單大方
占地:137平方米
三層農村自建別墅設計圖紙及效果圖,占地110平米,外觀精致又大
占地:110平方米
推薦:10套新農村自建房設計圖,2026年最新設計
閱讀次數:4825737次
100套鄉村別墅圖片大全,2026年最新設計
閱讀次數:2492203次
6款農村蓋一層平房的設計圖,10萬元就能建起來
閱讀次數:1852637次
這11個一層農村自建房別墅火爆了朋友圈!我最喜歡戶型十!你呢
閱讀次數:750268次
農村6萬元建一層小別墅圖,你敢相信嗎
閱讀次數:567686次
農村5萬塊就能自建房,6套普通房子設計圖分享,你沒看錯!
閱讀次數:419410次
8套農村漂亮三間平房圖片,非常適合在農村修建!
閱讀次數:411197次
農村自建房化糞池怎么做?附方案及施工過程
閱讀次數:391783次
農村一層三間平房設計圖,告別土氣養老房,讓人忍不住點贊
閱讀次數:350581次
新農村二層樓房圖片造價12萬,挑一套回家建房吧!
閱讀次數:349126次
