
別墅圖紙一:120平一層簡單農村別墅設計圖
![]() 別墅效果圖
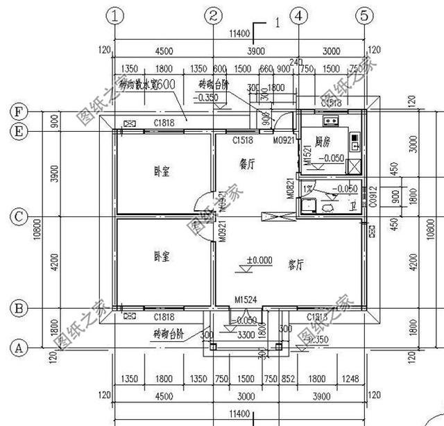
圖紙介紹:本戶型為120平一層簡單農村別墅設計圖,造價8萬到12萬,經濟、實用,建造比較容易,外觀雖然簡單,但比較漂亮,戶型2廳1廚1衛2室,滿足一般家庭居住。 占地面積:11.4m*10.8m,120平方米左右; 建筑層高:一層; 建筑高度:5.5米(含屋頂); 設計功能: 一層設計:客廳、餐廳、廚房、衛生間、臥室x2; ![]() 別墅戶型圖
別墅圖紙二:農村三室二廳一層小平房設計圖,簡單實用型
![]() 別墅效果圖
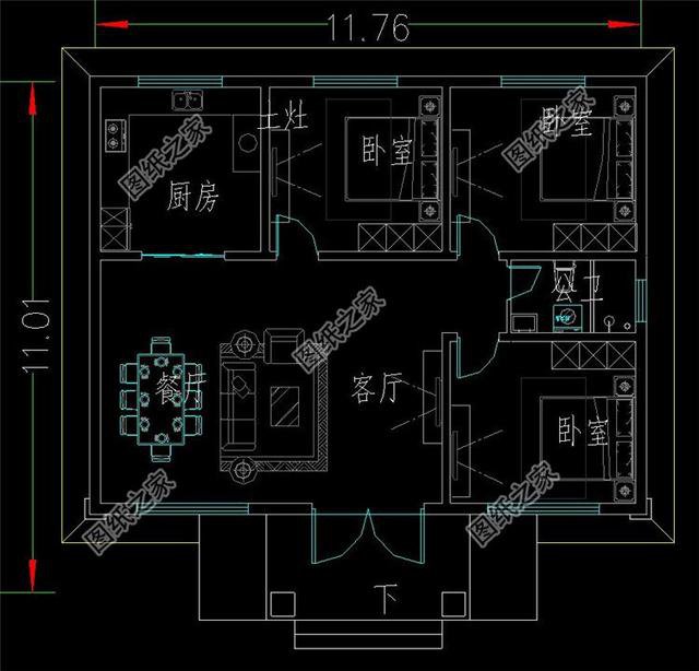
圖紙介紹:農村三室兩廳一層小別墅平房設計圖,外觀簡約,戶型方案實用,可比肩城市別墅,簡單、舒適又省錢!室內布局很簡單,就是常見的客廳餐廳+客房的配備,作為養老房是最合適不過的了,冬天的時候可以自己安裝暖氣,這樣的話家里的老人再也不用擔心老寒腿的問題!簡單的設計歷久彌新,這樣的房子才最適合我們農村人自建生活! 占地面積:11.76m*11.01m,113.4平方米; 建筑層高:一層; 建筑高度:6.583米(含屋頂); 設計功能: 一層戶型:客廳、廚房、餐廳、臥室x3、衛生間; ![]() 別墅戶型圖
別墅圖紙三:四開間一層半別墅設計圖,帶閣樓設計的戶型方案
![]() 別墅效果圖
圖紙介紹:農村四開間一層半別墅設計圖及效果圖片,帶閣樓設計的戶型方案,年輕人專屬,高顏值低造價,不后悔系列,外觀獨樹一幟,辨識度超高,錯落有致的坡屋頂碰撞出不一樣的火花,古樸與時尚有機結合,閣樓弧窗的設計畫龍點睛,兼具實用性與美觀度 占地面積:16.96m*11.96m,190.7平方米; 建筑層高:一層; 建筑高度:7.6米(含屋頂); 設計功能: 一層戶型:玄關、客廳、廚房、餐廳、臥室(帶衛生間)、臥室x2、衛生間、洗衣房; 閣樓戶型:臥室x3、衛生間、雜物間(可自由安排)x4; ![]() ![]() 別墅戶型圖
別墅圖紙四:中式一層仿古自建平房設計圖,灰墻青瓦,外觀古香古色
![]() 別墅效果圖
圖紙介紹:農村中式一層仿古自建房子設計圖,灰墻青瓦,占地160多平米,外觀中式韻味十足,古典古韻,三間臥室的設計,還帶雜物間,不管從哪個角度看,這棟房子都屬于很舒適的類型;除去居室空間外,剩余最大的面積就是客廳了,相信生活在這樣一棟房子里,定會讓人感到無比舒心! 占地面積:15.6m*10.8m,168.48平方米左右; 建筑層高:一層; 建筑高度:6.63米(含屋頂); 設計功能: 一層戶型:客廳、廚房、餐廳、臥室x3、衛生間、雜物間(地下酒窖); ![]() 別墅戶型圖
以上就是農村普通一層平房圖,喜歡哪款,歡迎下方留言。
圖紙之家-專注農村別墅/自建房設計18年,集合國內200余位經驗豐富的設計師,被評為口碑最好的農村建筑設計公司! |

雙拼小別墅設計圖紙(含效果圖),二層別墅設計方案精選
占地:130平方米
高端大氣三層半別墅客廳挑空設計,豪華農村自建房圖
占地:179.52平方米
2款帶露臺農村別墅設計圖二層精選,造價超值性價比
占地:多戶型可選
簡單大氣農村兄弟三層雙拼別墅住宅設計圖,13X8米
占地:110平方米左右
驚艷全村的三層別墅設計圖,12×16米美觀大氣布局超合理
占地:179.8平方米
小面寬大進深三層別墅圖紙設計,戶型非常實用經典
占地:171.39平方米
鄉村典型自建房中式二層四合院別墅設計圖,左右對稱設計
占地:430平方米
二層樓房圖片及施工圖紙,占地160平米左右,帶車庫
占地:160平方米
獨棟經濟型二層小別墅房屋設計圖,含全套施工圖效果圖
占地:多種戶型
新農村140平米樓房圖四層獨棟別墅設計圖,簡歐外觀風格設計
占地:141平方米
110平方米新農村三層房屋設計圖紙,含效果圖,帶車庫
占地:113平方米
農村一層平房別墅設計圖,18米乘9米,實實在在的好戶型
占地:162平方米
110平房子設計圖,經典的農村自建房屋設計圖
占地:110平方米
農村小別墅設計圖二層,占地不大顏值高,最適合農村建造。
占地:108.66平方米
造價便宜的二層雙拼別墅設計圖,造型簡約大氣,進深10米
占地:SP23059
2026年最新款四間二層別墅設計圖,15米乘13米
占地:171.01平方米
經濟型實用歐式一層小樓房別墅平房設計圖,11X10米
占地:103平方米
經典實用的新農村三層房屋設計圖紙,推薦自建使用
占地:165平方米
適合農村建的二層別墅設計圖,簡約美觀,讓人心動不已
占地:153平方米
新農村三層豪華歐式別墅,復式高端自建房設計圖紙及效果圖
占地:多種戶型
推薦:10套新農村自建房設計圖,2026年最新設計
閱讀次數:4825737次
100套鄉村別墅圖片大全,2026年最新設計
閱讀次數:2492203次
6款農村蓋一層平房的設計圖,10萬元就能建起來
閱讀次數:1852637次
這11個一層農村自建房別墅火爆了朋友圈!我最喜歡戶型十!你呢
閱讀次數:750268次
農村6萬元建一層小別墅圖,你敢相信嗎
閱讀次數:567686次
農村5萬塊就能自建房,6套普通房子設計圖分享,你沒看錯!
閱讀次數:419410次
8套農村漂亮三間平房圖片,非常適合在農村修建!
閱讀次數:411197次
農村自建房化糞池怎么做?附方案及施工過程
閱讀次數:391783次
農村一層三間平房設計圖,告別土氣養老房,讓人忍不住點贊
閱讀次數:350581次
新農村二層樓房圖片造價12萬,挑一套回家建房吧!
閱讀次數:349126次
