
|
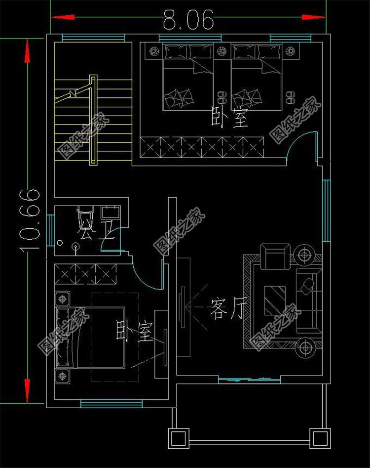
春風潤萬物,鼙鼓催征程。隨著生活水平的提高,咱們農村對居住條件和居住環境又有了新的需求,普通的小房子已經滿足不了我們對品質生活的追求。如今,各式各樣的小別墅如雨后春筍般在鄉村拔起而起!今天分享三款新出品的三層樓帶陽臺,快來看看! 第一款:農村三層兩開間小面寬別墅設計圖,95平方米小戶型![]() 別墅外觀為歐式風格,外墻面裝飾用到黃色涂料,底部用到了咖啡色面磚,屋面處用藍色的瓦片鋪裝。迎面是一面隔斷墻,端正的堂屋對傳統農村百姓來說是必不可少的設計,是農村神龕和祖先神位的供放場所,餐廳與客廳之間無隔斷,空間更顯寬敞,超大的客廳社交區,上方做挑高設計。三樓南向的大露臺為室外休閑提供更多可能,放上一組戶外沙發,栽花種草、飼魚喝茶,好不愜意! 占地面積:8.25m*11.47m,94.61平方米左右; 建筑層高:三層; 建筑高度:12.448米(含屋頂); 設計功能: 一層戶型:堂屋、神位、客廳、餐廳、廚房、衛生間; 二層戶型:客廳挑空、小客廳、臥室(帶衛生間)、臥室、衛生間、陽臺; 三層戶型:臥室(帶書房、衣帽間、衛生間)、臥室(帶衛生間)、洗衣房、露臺 ![]() ![]() ![]() 第二款:占地90來平新農村自建房三層房屋設計圖,簡潔干練![]() 不錯的別墅方案,粉色與白色涂料墻體,沒有繁冗的裝飾。房間尺度設計適宜,空間利用率高,采用多窗設計,增加了室內的采光效果,營造出高品質的居住環境。又使用陽臺和柱相搭配,使這棟別墅美觀又吸睛。屋頂、露臺的高低變化勾勒出錯落有致的建筑形態,入戶堂屋,與餐廳之間有墻體隔開,防止開門見山;餐廳廚房相鄰,就餐方便。 占地面積:8.06m*10.66m,87.32平方米左右; 建筑層高:三層; 建筑高度:12.627米(含屋頂); 設計功能: 一層戶型:客廳(堂屋)、神龕、餐廳、廚房、臥室、衛生間; 二層戶型:客廳、臥室x2、衛生間、陽臺; 三層戶型:臥室x2、衛生間、露臺(帶涼亭); ![]() ![]() ![]() 第三款:帶電梯的三層歐式別墅設計圖,豪華大氣![]() 建一棟賺足面子門廊設計氣派體面,巍峨的方形廊柱由下及上過渡為雙圓柱設計,精致又靈動。兩側唯美多窗設計,增加了采光面積,室內采光通風俱佳。別墅細節處精雕細琢,正面雕花石刻提升建筑主體的美觀度。入戶佛龕墻的設計方便家中供奉祭祀,符合家中老人的傳統生活習慣。同時還能起到隔斷作用,避免入門即見餐廳。三樓雙露臺設計可以根據使用的功能區分開來,一個用作家中晾曬,一個用作室外休閑。別墅里設置了電梯,方便老人孩子等行動不方便的家庭成員各部分層次分明,精致到位。 ![]() ![]() ![]() 以上就是小編推薦的農村三層別墅,有喜歡的記得收藏!
圖紙之家-專注農村別墅/自建房設計18年,集合國內200余位經驗豐富的設計師,被評為口碑最好的農村建筑設計公司! |

農村16萬一層平房小院設計圖,左右對稱布局好,南北方都能建
占地:195.9平方米
四層簡單新農村房屋設計圖紙,造價低,適合農村自建
占地:多種戶型
私人別墅房屋cad施工設計圖,造型精致、美觀
占地:105平方米
農村簡易二層樓設計圖,外觀簡單漂亮,經典時尚
占地:140平方米
開間4米多的農村三層別墅設計圖,一開間三層自建房
占地:66.65平方米
100來平復式旋轉樓梯二層簡歐別墅設計圖,戶型實用
占地:101.523平方米
160平方米左右二層自建別墅設計圖,對稱設計,23萬建好
占地:157平方米左右
經典一層帶閣樓三合院別墅設計圖,18米乘9.5米
占地:118.63平方米
50萬農村自建三間三層別墅設計圖,占地130平米左右
占地:135平方米
農村大戶型中式二層四合院別墅設計圖含外觀效果圖,戶型經典、
占地:464平方米
大氣的150平方米新中式三層別墅建筑圖及效果圖
占地:150平方米左右
田園風格別墅設計圖及外觀圖片,樓中樓結構
占地:140平方米
現代風格三拼別墅設計圖紙,三兄弟回村自建房戶型
占地:324平方米
適合兄弟自建的二層雙拼別墅設計方案,帶效果圖
占地:180平方米
客廳中空三層復式別墅房屋設計圖,帶外觀效果圖
占地:145平方米
農村2026新式好看又簡單的二層樓房設計圖,外形美觀,家用足夠
占地:200平方米
帶地下室三層別墅設計圖紙(含外觀效果圖),別墅設計方案
占地:134平方米
140平三層別墅房屋設計圖,含外觀圖片,外觀現代時尚
占地:143平方米
農村帶地下室二層半自建房屋設計圖,樓中樓設計,歐式風格
占地:140平方米
高端三層豪宅別墅設計方案圖,帶地下室,過悠然愜意生活
占地:127.06平方米
推薦:10套新農村自建房設計圖,2026年最新設計
閱讀次數:4825737次
100套鄉村別墅圖片大全,2026年最新設計
閱讀次數:2492203次
6款農村蓋一層平房的設計圖,10萬元就能建起來
閱讀次數:1852637次
這11個一層農村自建房別墅火爆了朋友圈!我最喜歡戶型十!你呢
閱讀次數:750268次
農村6萬元建一層小別墅圖,你敢相信嗎
閱讀次數:567686次
農村5萬塊就能自建房,6套普通房子設計圖分享,你沒看錯!
閱讀次數:419410次
8套農村漂亮三間平房圖片,非常適合在農村修建!
閱讀次數:411197次
農村自建房化糞池怎么做?附方案及施工過程
閱讀次數:391783次
農村一層三間平房設計圖,告別土氣養老房,讓人忍不住點贊
閱讀次數:350581次
新農村二層樓房圖片造價12萬,挑一套回家建房吧!
閱讀次數:349126次
