
|
復式的房子從室內來看,可以增加室內空間,讓室內的光線更好,而且還能夠提高房子的氣質,讓室內看起來更加時尚大方,所以這也就是很多朋友喜歡建復式房子的根本原因。應廣大朋友需求,今天小編就給大家帶來了三款二層半復式別墅設計圖,建一棟這樣的復式別墅,那你在村里算是站起來了,趕快收藏圖紙吧。
方案一:兩層半復式農村自建房設計圖,經典不過時的戶型
圖紙介紹:這款戶型簡直就是理想生活的標配,占地120平方米,客廳中空,帶超大露臺。 ![]() ![]() ![]() 占地面積:11.0m*12.0m,一層占地125平方米左右; 建筑層高:三層; 建筑高度:12.68米(含屋頂); 設計功能: 一 層:客廳、廚房、餐廳、臥室(衛生間)、臥室、衛生間; 二 層:客廳上空、小客廳、臥室(帶書房)、臥室(帶衛生間)、臥室、衛生間、陽臺、露臺; 三 層:健身房、臥室(帶衛生間)、臥室、衛生間、大露臺; ![]() ![]() ![]() 方案二:二層半別墅設計圖紙,復式挑空自建房,占地122平方米左右
圖紙介紹:這款戶型外觀超贊布局實用,大露臺觀景視野極佳左右兩側的落地窗大氣優雅,用拱形的窗頭裝飾,帶有一股典雅和浪漫的氣息。添加了采光通風以外,也更顯時尚。 ![]() 占地面積:11.16m*10.76m,122.679平方米左右; 建筑層高:三層; 建筑高度:12.631米(含屋頂); 設計功能: 一層戶型:客廳、廚房、餐廳、臥室x2、衛生間; 二層戶型:客廳上空、小客廳、休閑區、臥室x3、陽臺; 三層戶型:小客廳、書房、休閑區、臥室x2、衛生間、露臺; ![]() ![]() ![]() 方案三:新農村復式兩層半樓房設計圖,帶大露臺,簡單又實用
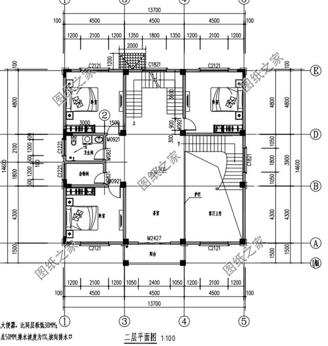
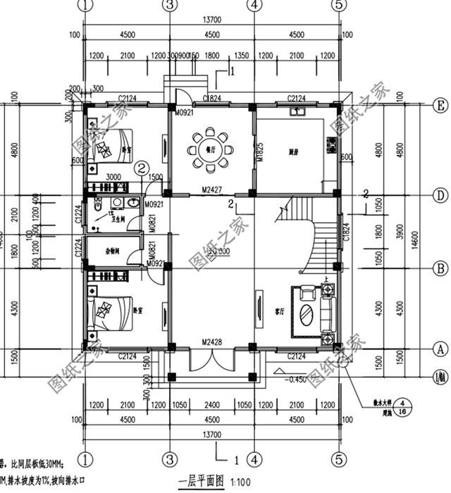
圖紙介紹:這款戶型簡單經濟實用大氣,共有8間臥室,大家庭的住戶可以考慮一下啦;二樓有陽臺,三樓還有大露臺和涼亭,可以供休閑娛樂。 ![]() ![]() ![]() 占地面積:13.7m*14.6m,一層占地190平方米左右; 建筑層高:三層; 建筑高度:13.1米(含屋頂); 設計功能: 一 層:客廳、廚房、餐廳、臥室×2、衛生間、雜物間; 二 層:客廳上空、茶室、臥室×3、衛生間、雜物間、陽臺; 三 層:臥室×3、衛生間、雜物間、大露臺、涼亭; ![]() ![]() ![]() 有沒有你喜歡的設計,可以評論告訴我哦!關注我帶你看更多自建房設計圖。
圖紙之家-專注農村別墅/自建房設計18年,集合國內200余位經驗豐富的設計師,被評為口碑最好的農村建筑設計公司! |

新農村自建三層樓房設計圖紙,外觀簡單大方
占地:137平方米
左右對稱的歐式高端三層別墅設計圖,外觀氣派、豪華
占地:200平方米
超好看的現代簡約別墅設計圖,占地100平米,城里一套房都不換
占地:102.21平方米
2026新款農村四層別墅設計圖紙戶型圖,帶挑空客廳
占地:150平方米
10X13米新款歐式三層別墅樓房設計圖,外觀清新明亮
占地:140平方米
一層半復式帶閣樓別墅設計圖,含外觀圖片
占地:150平方米
經典小戶型二層新農村房屋設計圖紙,客廳中空,造價20萬
占地:94平方米
高端三層新中式農村別墅設計圖,仿合院布局,外觀霸氣
占地:133.64平方米
外觀高檔大氣的三層別墅房屋設計圖,高端別墅設計展示
占地:147平方米
帶架空層的三層農村別墅設計火了!雨季不怕返潮
占地:147.15平方米
最漂亮的一層平房圖片及設計圖,造價18萬左右,結構簡單易于施
占地:186平方米
80平方米新農村三層房屋設計圖,新農村住宅圖紙精選
占地:80平方米
140平方米新農村復式自建房子,三層別墅建筑圖紙及效果圖
占地:138平方米
三層歐式豪華別墅設計方案,全套圖紙+效果圖
占地:168平方米
豪華三層歐式風格別墅圖紙設計,挑空客廳大面寬大戶型
占地:225.72平方米
二層美式自建別墅設計圖,全套施工圖+外觀效果圖
占地:145平方米
130平方米農村兩層別墅圖紙及效果圖12X11米
占地:133平方米
現代別墅設計圖紙帶效果圖,85平、100平、145平三個戶型方案
占地:多種戶型
二層復式雙拼別墅設計圖(客廳中空),含外觀效果圖
占地:195平方米
新農村帶陽臺三層樓房圖紙,占地180平米左右,豪華大氣
占地:180平方米
推薦:10套新農村自建房設計圖,2026年最新設計
閱讀次數:4825737次
100套鄉村別墅圖片大全,2026年最新設計
閱讀次數:2492203次
6款農村蓋一層平房的設計圖,10萬元就能建起來
閱讀次數:1852637次
這11個一層農村自建房別墅火爆了朋友圈!我最喜歡戶型十!你呢
閱讀次數:750268次
農村6萬元建一層小別墅圖,你敢相信嗎
閱讀次數:567686次
農村5萬塊就能自建房,6套普通房子設計圖分享,你沒看錯!
閱讀次數:419410次
8套農村漂亮三間平房圖片,非常適合在農村修建!
閱讀次數:411197次
農村自建房化糞池怎么做?附方案及施工過程
閱讀次數:391783次
農村一層三間平房設計圖,告別土氣養老房,讓人忍不住點贊
閱讀次數:350581次
新農村二層樓房圖片造價12萬,挑一套回家建房吧!
閱讀次數:349126次
