
戶型一:農村四層樓房設計圖及外觀效果圖
![]() 圖紙介紹:農村四層樓房外觀效果圖及全套設計圖,室內通透,多陽臺設計,這是一棟室內臥室數量多、室外休閑陽臺也多的四層別墅戶型,簡歐式的外觀風格設計,外墻面主要用米色面磚、少量褐色面磚搭配浮雕來裝飾,搭配藍色琉璃瓦,時尚簡約,入戶門處用到一個小臺階,樓層高且造型美,顯得非常氣派。 占地面積:12.6m*14.4m,163.84平方米左右; 建筑層高:四層; 建筑高度:17.238米(含屋頂); 設計功能: 一層戶型:堂屋\客廳、廚房、餐廳、儲藏間、臥室(帶衛生間)x2、衛生間; 二層戶型:客廳、臥室(帶衛生間)x2、臥室x2、衛生間、陽臺x2; 三層戶型:客廳、臥室(帶衛生間)x2、臥室x2、衛生間、陽臺x2; 四層戶型:客廳、臥室x4、衛生間、露臺x4; ![]() ![]() ![]() ![]() 戶型二:鄉村四層別墅樓設計圖,二三層復式挑空客廳
![]() 圖紙介紹:鄉村高端四層別墅樓設計圖,二三層復式挑空戶型,布局合理舒適,造型經典大氣!這款別墅風格為歐式別墅,大門處配兩根方形的羅馬柱,外墻面裝飾材料很簡單,白色真石漆,還有一些構件,配大窗加強采光性和氣派性。 建筑層高:四層; 建筑高度:163.975米(含屋頂); 設計功能: 一層戶型:土灶房、臥室、衛生間、車庫; 二層戶型:客廳、廚房、餐廳、臥室(帶衛生間)、臥室、衛生間、陽臺; 三層戶型:客廳上空、客廳、臥室(帶衛生間)、臥室x2、衛生間、陽臺; 四層戶型:客廳、娛樂區、臥室(帶衛生間)、臥室x2、衛生間、露臺; ![]() ![]() ![]() ![]() 戶型三:小面寬的農村簡單四層平屋頂別墅設計圖,農村自建房首選
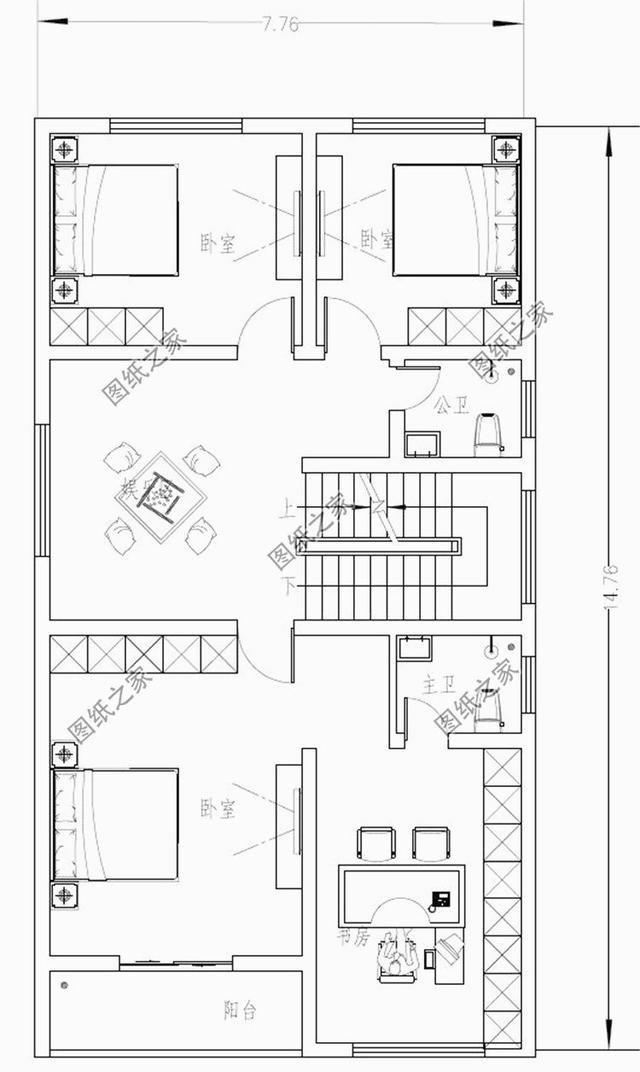
![]() 圖紙介紹:小面寬的農村簡單四層2間平屋頂別墅設計圖,農村自建房首選。別墅整體風格為簡約現代風,配色古樸淡雅,白色的涂料為主,灰色涂料和灰色面磚點綴,底部采用橙色的涂料,還有大面積的玻璃落地窗,極大的裝點并美化了別墅。 占地面積:7.76m*14.76m,109.29平方米左右; 建筑層高:四層; 建筑高度:13.8米(含屋頂); 設計功能: 一層戶型:客廳、廚房、餐廳、臥室x2、衛生間; 二層戶型:娛樂區、臥室(帶書房、衛生間)、臥室x2、衛生間、陽臺; 三層戶型:娛樂區、臥室(帶書房、衛生間)、臥室x2、衛生間、陽臺; 四層戶型:娛樂區、臥室x2、衛生間、露臺、水池; ![]() ![]() ![]() ![]() 以上就是農村四層自建房效果圖,不僅住的舒適,蓋起來毫不遜色,高端大氣上檔次,一定有你喜歡的。喜歡哪款,歡迎下方留言。
圖紙之家-專注農村別墅/自建房設計18年,集合國內200余位經驗豐富的設計師,被評為口碑最好的農村建筑設計公司! |

12×11米兩層農村建房圖紙,農村建房最佳戶型,簡單的風格
占地:140平方米
帶地下室三層新農村房屋設計圖紙,外觀效果大氣
占地:220平方米
農村一層中式三合院別墅設計圖紙,外觀漂亮極了
占地:195平方米
農村平屋頂三層現代風別墅戶型圖,簡約實用經濟顏值高
占地:111.9平方米
時尚大方的農村二層自建房屋設計圖紙,占地120平米左右
占地:120平米
新農村全套四層別墅設計圖紙占地面積:190平方米造價預算:42萬
占地:190平方米
農村18萬元二層小樓圖,占地120平面,戶型緊湊合理
占地:120平方米
中式古風別墅設計圖,一層三合院設計,經濟舒適,時尚與傳統的
占地:275.7平方米
占地70平米一層小戶型別墅設計圖,功能齊全造價低,耐看實用
占地:70.19平方米
現代風格建房圖紙二層別墅設計方案,外觀百看不厭
占地:多戶型可選
160平方農村三層別墅CAD設計圖紙,含外觀圖片效果圖
占地:156平方米
一層中式三合院別墅設計圖,白墻黛瓦引領潮流
占地:177.94平方米
140平方米新農村復式自建房子,三層別墅建筑圖紙及效果圖
占地:138平方米
180平高端歐式三層別墅圖紙設計,大戶型復式客廳
占地:182.016
農村三層私人住宅設計圖紙及效果圖,帶車庫,帶露臺
占地:150平方米
鄉村一層帶閣樓歐式小別墅,“L”型七字設計戶型
占地:194.218平方米
二層美式自建別墅設計圖,全套施工圖+外觀效果圖
占地:145平方米
120平方米農村四層別墅設計圖,含全套施工圖
占地:120平方米
一層中式四合院別墅設計方案圖,含外觀效果圖
占地:360平方米含院子
鄉下一層自建養老平房戶型圖及全套圖紙,占地面積200左右
占地:200平方米
推薦:10套新農村自建房設計圖,2026年最新設計
閱讀次數:4825737次
100套鄉村別墅圖片大全,2026年最新設計
閱讀次數:2492203次
6款農村蓋一層平房的設計圖,10萬元就能建起來
閱讀次數:1852637次
這11個一層農村自建房別墅火爆了朋友圈!我最喜歡戶型十!你呢
閱讀次數:750268次
農村6萬元建一層小別墅圖,你敢相信嗎
閱讀次數:567686次
農村5萬塊就能自建房,6套普通房子設計圖分享,你沒看錯!
閱讀次數:419410次
8套農村漂亮三間平房圖片,非常適合在農村修建!
閱讀次數:411197次
農村自建房化糞池怎么做?附方案及施工過程
閱讀次數:391783次
農村一層三間平房設計圖,告別土氣養老房,讓人忍不住點贊
閱讀次數:350581次
新農村二層樓房圖片造價12萬,挑一套回家建房吧!
閱讀次數:349126次
