
|
都說農村別墅看福清,福清的農村別墅是出了名的豪華,家家戶戶都是五六層形式,十幾層的也不再話下,但是幾乎都是空殼子,毫無家的溫馨可言。農村建房還是看廣東,注重實用性和美觀性。一家人十幾次也住不完,打掃起來也是個問題,還是蓋小2層最實用。 下面天晨別墅家園帶來3套“L”型別墅,主房+附房+院子超接地氣! 01款
長大后這樣的戶型已經落后幾乎都沒有了,隨著近幾年的復古風興起逐漸有人蓋起來,仿佛這樣的房型能讓讓我們穿越到小時候。
可以算是一層,上面半層閣樓,可用可不用,依據自身的經濟條件選擇。
外面加上一個院子,讓原本零散的房主主體變成一個整體,加強戶型的整體美。 平面圖:總設有 5臥室、1餐廳、1廚房、4衛生間、1書房、1神臺、1客廳、1車庫。
一層占地面積268.43平米(不含內院),二層占地面積為179.29平米。 000000000
02款重慶熊先生的定制設計的別墅,色調比較低調,沉穩不張揚的個性化設計。
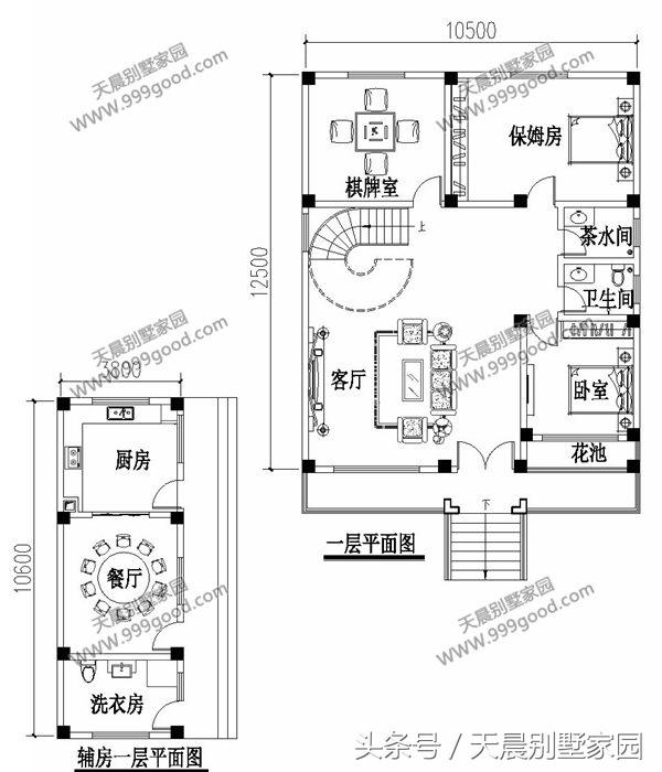
開間16.8,進深11米,占地面積241平米,總的建筑面積為 441平米。
平面圖 獨立的雙車庫,有院子設計,總的建筑設有8臥室、1餐廳、1廚房、7衛生間、2娛樂室、2客廳、1堂屋、1書房、1衣帽間、1雜物間。
03款同樣是一款有院子的2層別墅,現代風格,全程用的是玻璃的圍欄。
主房+附房設計,入戶有臺階,保證室內干凈整潔的居住環境。
平面圖 廚房+餐廳+洗衣房共同構成了別墅獨立的就餐環境,現代風格的整體設計,廚房上面是露臺設計更大氣更方便。 總的建筑情況有:4臥室、1餐廳、1廚房、1客廳、3衛生間、1保姆房、1茶水間、1棋牌室、1洗衣房
圖紙之家-專注農村別墅/自建房設計18年,集合國內200余位經驗豐富的設計師,被評為口碑最好的農村建筑設計公司! |

小戶型現代新農村三層房屋設計建筑圖及效果圖
占地:108平方米
小面寬大進深三層別墅圖紙設計,戶型非常實用經典
占地:171.39平方米
農村二層帶車庫四合院別墅設計圖,新中式外觀圖片,戶型實用方
占地:247平方米
農村三層復式樓房住宅設計圖,私人別墅設計
占地:165平方米
簡單實用新農村三層住宅房屋設計圖,時尚大氣,低調
占地:140平方米
農村三層兄弟雙拼別墅設計圖及效果圖片,14X12米自建戶型
占地:154平方米
經典三層雙拼樓房設計圖,經典外觀,經典戶型
占地:225平方米
四層自建別墅設計圖,有車庫帶露臺,時尚大氣給你一個五星級的
占地:152.51平方米
120平方米農村四層別墅施工設計圖紙及效果圖
占地:120平方米
占地180平方米二層鄉村小洋樓設計戶型圖及圖紙,外觀華麗
占地:180平方米
帶地下室的一層別墅設計圖,農村自建房比較合適
占地:206平方米
14米乘10米農村二層別墅新款,外觀對稱設計,經久耐看!
占地:140平方米
175平大客廳三層別墅房屋設計圖,含外觀造型現代,美觀
占地:175平方米
自建三層小洋樓設計圖紙,含效果圖,帶車庫
占地:121平方米
2026新款二層別墅房屋設計圖,帶外觀圖片
占地:138平方米
帶堂屋設計一層5間平房新農村自建別墅效果圖全套施工圖
占地:198.41平方米
農村三層雙拼別墅設計圖,兄弟建房開間20米,單戶80平方
占地:160平方米
開間8米的小戶型二層別墅設計圖,2開間占地不到60平
占地:56平方米左右
村里蓋房圖紙大廳挑空的三層別墅設計圖,面寬不到10米
占地:122.4平方米
中式四合院農村自建房設計圖,白墻黛瓦,四水歸堂
占地:137.72平方米
推薦:10套新農村自建房設計圖,2026年最新設計
閱讀次數:4825737次
100套鄉村別墅圖片大全,2026年最新設計
閱讀次數:2492203次
6款農村蓋一層平房的設計圖,10萬元就能建起來
閱讀次數:1852637次
這11個一層農村自建房別墅火爆了朋友圈!我最喜歡戶型十!你呢
閱讀次數:750268次
農村6萬元建一層小別墅圖,你敢相信嗎
閱讀次數:567686次
農村5萬塊就能自建房,6套普通房子設計圖分享,你沒看錯!
閱讀次數:419410次
8套農村漂亮三間平房圖片,非常適合在農村修建!
閱讀次數:411197次
農村自建房化糞池怎么做?附方案及施工過程
閱讀次數:391783次
農村一層三間平房設計圖,告別土氣養老房,讓人忍不住點贊
閱讀次數:350581次
新農村二層樓房圖片造價12萬,挑一套回家建房吧!
閱讀次數:349126次
