
|
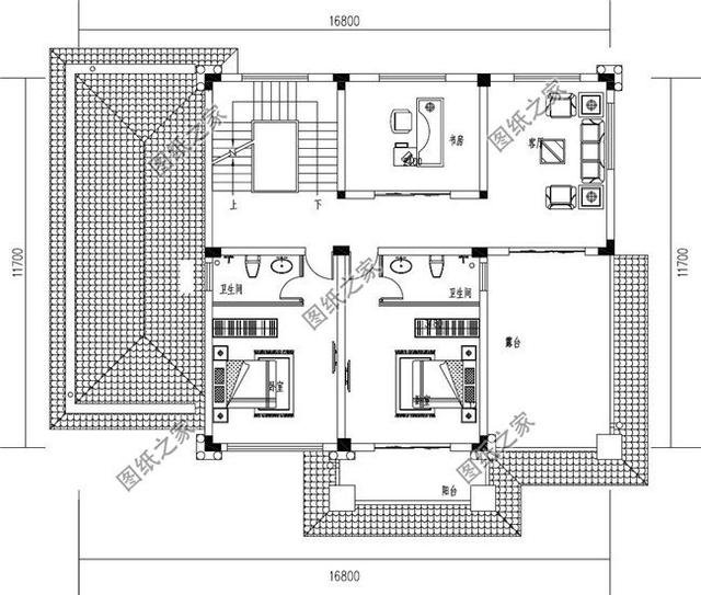
現如今,新農村建設如火如荼的進行著,農村生活水平大大提升,基礎設施逐漸完善,大多數農村人都開上了小汽車,住上了別墅,在農村一棟別墅,被提到的時候,總會帶著羨慕和夸贊的語氣。不用羨慕別人了,今天小編就分享三套四間的三層別墅設計圖以及戶型圖,看著就是氣派。 第一款:新中式風格三層別墅設計圖以及戶型圖![]() 這款三層別墅設計圖紙,恢弘大氣,這才是中國鄉村該住的房子!占地方正,灰藍色的房頂配上白、灰色真石漆與灰色面磚的外墻更顯別墅的典雅大氣。在燈光的映襯下越看越喜歡。別墅多窗戶的設計采光通透,外型線條簡潔明朗,配色溫暖,現代與元素完美融合,給人一種溫馨舒適家的感覺。入戶一個客廳鋪面而來滿滿的人氣,兩個臥室大小適中,主臥帶獨衛,餐廳廚房在左側,潔污分區。二層是起居空間,四個臥室溫馨舒適,陽臺方便晾曬也加強了采光。三層也是起居空間,四個臥室,一個生活露臺,景色優美,觀景最佳。 占地面積:14m*11.5m,151平方米左右 建筑高度:12.375米(含屋頂) 功能: 一層戶型:客廳、開放式洗衣房、雜物房、廚房、餐廳、臥室x2、臥室(帶衛生間)、衛生間 二層戶型:客廳、臥室、臥室(帶衣帽間)x3、衛生間x2、陽臺 三層戶型:臥室x3、臥室(帶書房)、衛生間x2、露臺、陽臺x2 ![]() ![]() ![]() 第二款:豪華歐式三層別墅設計圖,外觀錯落有致
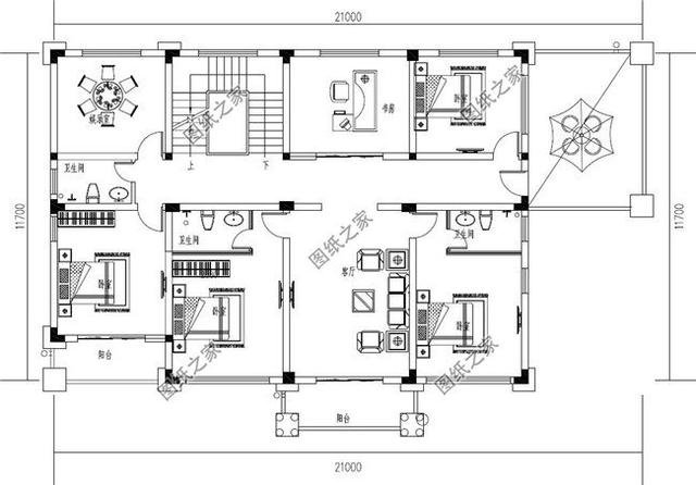
![]() ![]() ![]() 這款大戶型三層別墅設計圖紙,典型的歐式風格,采用的是框架結構,外墻用統一的黃色真石漆噴飾,用顏色統一來顯現出別墅的大氣之勢。別墅的造型多有突起和參差不齊的設計,是為了能更好的展現別墅的結構和層次,使別墅看上去凹凸有致,形體有質感。 占地面積:21m*11.7m,227平方米左右 建筑高度:13.175米(含屋頂) 設計: 一層戶型:客廳、餐廳x2、廚房、娛樂室、臥室(帶衛生間)x2、衛生間 二層戶型:客廳、臥室x2、臥室(帶衛生間)x2、書房、娛樂室、衛生間、露臺 三層戶型:客廳、臥室(帶衛生間)x2、書房、陽臺、露臺 ![]() ![]() ![]()
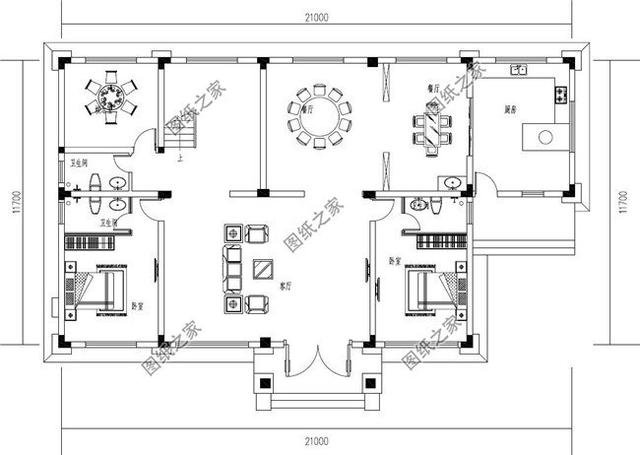
第三款:新中式三層別墅設計圖以及戶型圖![]() 這款獨棟三層新別墅設計圖,自建房戶型方案,適合農村自建!一層采用東西動靜分區設計,西側設計餐廚、客廳,布局通透,面積開闊,動線流暢;東側部分設計為兩間臥室+兩個衛生間,方便日常起居使用;二樓為家人的休息空間,布置了三間臥室,家中成員都能擁有自己的私享空間。中部走廊鏈接西側開放式茶室與客廳和陽臺,三樓以娛樂待客功能為主,設置棋牌室、影音室,大大提升室內休閑功能,同時東側的兩間臥室,可供親朋好友臨時居住。南向大露臺為家中晾曬提供了場地,也可以作為室外休閑區域加以使用。 占地面積:13.1m*16.5m,201.25平方米左右 建筑高度:13.151米(含屋頂) 功能: 一層戶型:客廳、土灶間、洗衣房、廚房、餐廳、臥室(帶衛生間)、臥室、衛生間 二層戶型:客廳上空、客廳、茶室、臥室(帶衛生間)x2、臥室、衛生間、陽臺 三層戶型:客廳、棋牌室、影音室、臥室(帶衛生間)x2、露臺x2 ![]() ![]() ![]() 以上就是小編介紹的四間三層別墅設計圖以及戶型圖,看看你有沒有喜歡的?趕緊收藏吧!本文由圖紙之家原創,歡迎關注,帶你一起長知識!
圖紙之家-專注農村別墅/自建房設計18年,集合國內200余位經驗豐富的設計師,被評為口碑最好的農村建筑設計公司! |

高端大氣四層復式別墅房屋設計圖,含外觀效果圖
占地:270平方米
100平方建房子設計圖及效果圖,簡單實用的戶型設計
占地:97.3平方米
中國最美建筑四合院設計圖紙及效果圖,顏值爆棚
占地:152平方米左右
新中式三層歐式別墅設計圖,盡顯貴族風范,占地135平
占地:134.37平方米
農村三層15萬自建房圖,小戶型別墅設計方案圖
占地:60平方米
最新農村20萬元二層半別墅設計圖,占地僅110多平
占地:110平方米
農村一層中式別墅設計圖,經典大氣,布局舒適,面寬20米
占地:192.92平方米
20萬左右普通農村房子設計圖,二層簡約小別墅
占地:140平方米
農村三間三層半別墅設計圖,舒適寬敞時尚經濟,居住生活方便舒
占地:168.29平方米
豪華農村帶露臺三層樓房別墅設計圖紙,占地200平方米左右
占地:200平方米
240平農村二層自建別墅設計圖紙,帶你體驗家的溫馨
占地:240平方米
120平米簡單實用型農村小別墅設計圖,二層屋頂為全露臺,小開間
占地:120平方米
115平旋轉樓梯三層復式別墅房屋設計圖,含外觀效果圖
占地:115平方米
經典三層雙拼樓房設計圖,經典外觀,經典戶型
占地:225平方米
經典小戶型新農村房屋住宅設計圖,10萬左右
占地:80平方米
漂亮實用的新農村二層小樓圖,造價20萬左右,超大景觀露臺
占地:130平方米
15×12米一層農村寶藏戶型,適合養老房,看完鄰居直接要圖紙!
占地:180平方米
7字型一層半農村別墅設計圖,美觀舒適,買了別墅的都會羨慕你
占地:229.14平方米
120平方米新農村四層房屋設計圖紙和效果圖
占地:120平方米
經典美式風100平米二層小別墅設計方案,鄉村建房首選
占地:100.17平方米
推薦:10套新農村自建房設計圖,2026年最新設計
閱讀次數:4825737次
100套鄉村別墅圖片大全,2026年最新設計
閱讀次數:2492203次
6款農村蓋一層平房的設計圖,10萬元就能建起來
閱讀次數:1852637次
這11個一層農村自建房別墅火爆了朋友圈!我最喜歡戶型十!你呢
閱讀次數:750268次
農村6萬元建一層小別墅圖,你敢相信嗎
閱讀次數:567686次
農村5萬塊就能自建房,6套普通房子設計圖分享,你沒看錯!
閱讀次數:419410次
8套農村漂亮三間平房圖片,非常適合在農村修建!
閱讀次數:411197次
農村自建房化糞池怎么做?附方案及施工過程
閱讀次數:391783次
農村一層三間平房設計圖,告別土氣養老房,讓人忍不住點贊
閱讀次數:350581次
新農村二層樓房圖片造價12萬,挑一套回家建房吧!
閱讀次數:349126次
