
|
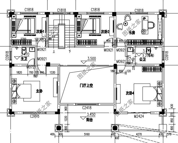
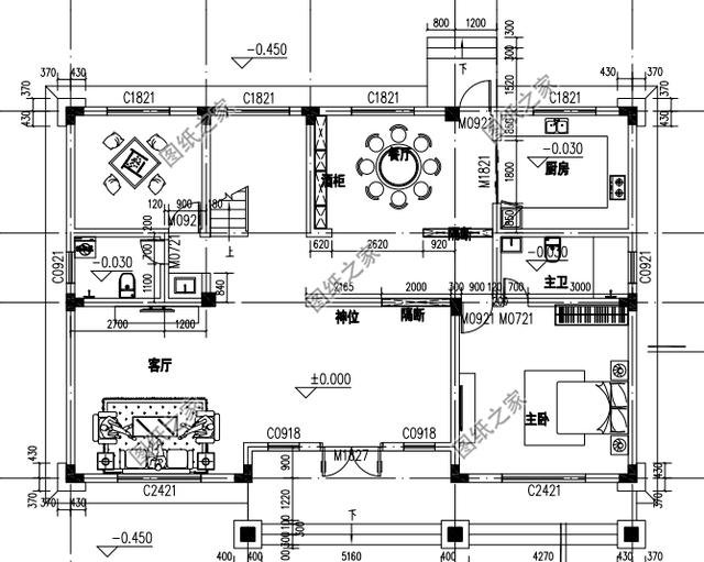
戶型一:180多平二層現代風格自建房屋設計圖紙帶外觀圖![]() 圖紙介紹: 180多平方米現代風格二層別墅,簡約時尚。建筑門窗采用現代元素裝飾,線條形狀讓門窗極有特色。露臺選用現代的金屬護欄。戶型格局有傳統戶型的部分功能,當家里人多有客人朋友做客時,可以在一層客廳再擺上一桌;二層主要為休息空間,兩個南向的大臥室都有獨立使用的露臺。 占地面積:18.3m*11.3m,187平方米; 建筑層高:二層; 建筑高度:9.4米(含屋頂); 設計功能: 一層戶型:臥室X4,餐廳,廚房,客廳,更衣室,衛生間,洗澡間; 二層戶型:休息室(或棋牌室),書房,臥室X4,更衣室,露臺X2,客廳,陽臺,衛生間,洗澡間 ; ![]() ![]() 戶型二:170平方米農村二層小別墅設計圖及效果圖![]() 圖紙介紹:170平方米歐式二層自建別墅設計圖 ,這款別墅外觀簡單大氣,卻一點也不會讓人覺得單調乏味,黃色的墻磚配上羅馬柱的點綴,反而給人一種出乎意料的端莊與優雅。紅色坡屋頂線條流暢,搭配黃色邊線,色彩搭配合理。二層提供了兩個大陽臺,增加活動空間。 占地面積:16.2m*10.6m,170平方米; 建筑層高:二層; 建筑高度:10米(含屋頂); 設計功能: 一層戶型:棋牌室,客廳,神位,酒柜,餐廳,廚房,衛生間,主臥(帶衛生間); 二層戶型: 次臥X3,書房,公衛,主臥(帶主衛),門廳上空,陽臺X2; ![]() ![]() 戶型三:別墅美觀的簡歐二層別墅房屋設計圖,含外觀效果圖![]() 圖紙介紹:本戶型為別致美觀的簡歐二層別墅房屋設計圖,含外觀效果圖,面積適中,空間利用率高,戶型合理,二層主臥帶衣帽間和衛生間。 占地面積:11.8m*12.3m,145平方米左右; 建筑層高:二層; 建筑高度:9.87米(含屋頂); 設計功能: 一層別墅戶型:客廳、廚房、餐廳、臥室、衛生間、娛樂室(儲藏間); 二層別墅戶型:客廳、主臥(帶衛生間和衣帽間)、臥室x2、衛生間、活動房(書房)、陽臺; ![]() ![]() 以上就是農村二層自建房設計圖紙,樓房面積大,家庭人口多的可以這樣建,喜歡哪款,歡迎留言告訴小編。
圖紙之家-專注農村別墅/自建房設計18年,集合國內200余位經驗豐富的設計師,被評為口碑最好的農村建筑設計公司! |

農村15萬元二層小樓設計圖,15萬農村兩層小別墅圖片
占地:120平方米
最漂亮的一層平房圖片及設計圖,造價18萬左右,結構簡單易于施
占地:186平方米
建一棟就成了村里的門面擔當!三層歐式別墅,左右對稱太氣派
占地:173.67平方米
經典簡約三層農村自建房設計圖,功能實用簡單大氣,比城里鴿子
占地:144平方米
二層農村自建小別墅設計圖,歐式風格,占地160平方米
占地:160平方米
高端大氣的農村四層樓房別墅設計圖,戶型真不錯,占地130多平
占地:135.31平方米
田園風格別墅設計圖紙及效果圖,三層鄉村小別墅設計方案
占地:166.4平方米
170平米自建三層房屋別墅設計圖紙及效果圖
占地:170平米
150平方米農村二層房屋建筑設計圖,15.2x9.4米
占地:148平方米
倆兄弟蓋房子的雙拼設計圖,小宅基地設計方案
占地:151.91平方米
農村18萬元二層小樓圖,占地120平面,戶型緊湊合理
占地:120平方米
預算30萬三層樓房設計圖含效果圖,戶型經典
占地:125平方米
145平方米新農村二層別墅設計效果圖及施工圖,12.6米x11.4米
占地:147平方米
客廳中空復式二層別墅設計圖,歐式風格外觀
占地:180平方米
160平方米農村三層別墅CAD設計圖紙及效果圖,13.7x12.6米
占地:160平方米
三層帶地下室+旋轉樓梯別墅設計圖紙,復式挑空客廳
占地:多種戶型
農村一層獨棟別墅設計圖,帶閣樓,設計感十足
占地:250平方米
230平米歐式帶地下室三層自建別墅設計施工圖紙及效果圖
占地:230平米
兩層農村自建二層樓設計圖紙,面寬12米左右
占地:131.2平方米
適合7字型宅基地蓋的一層別墅,中式風格設計
占地:163平方米
推薦:10套新農村自建房設計圖,2026年最新設計
閱讀次數:4825737次
100套鄉村別墅圖片大全,2026年最新設計
閱讀次數:2492203次
6款農村蓋一層平房的設計圖,10萬元就能建起來
閱讀次數:1852637次
這11個一層農村自建房別墅火爆了朋友圈!我最喜歡戶型十!你呢
閱讀次數:750268次
農村6萬元建一層小別墅圖,你敢相信嗎
閱讀次數:567686次
農村5萬塊就能自建房,6套普通房子設計圖分享,你沒看錯!
閱讀次數:419410次
8套農村漂亮三間平房圖片,非常適合在農村修建!
閱讀次數:411197次
農村自建房化糞池怎么做?附方案及施工過程
閱讀次數:391783次
農村一層三間平房設計圖,告別土氣養老房,讓人忍不住點贊
閱讀次數:350581次
新農村二層樓房圖片造價12萬,挑一套回家建房吧!
閱讀次數:349126次
