
|
別墅圖紙一:新農村一層平屋頂簡單自建房別墅設計圖紙,全套設計圖
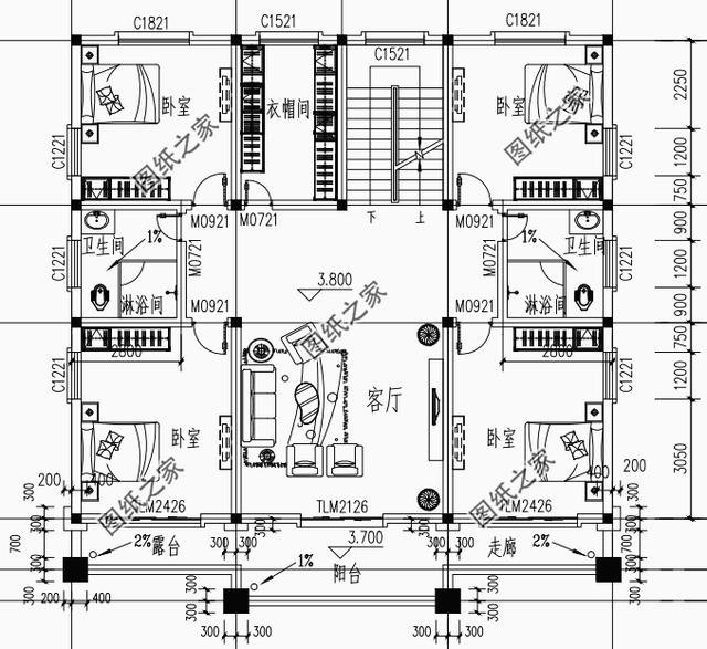
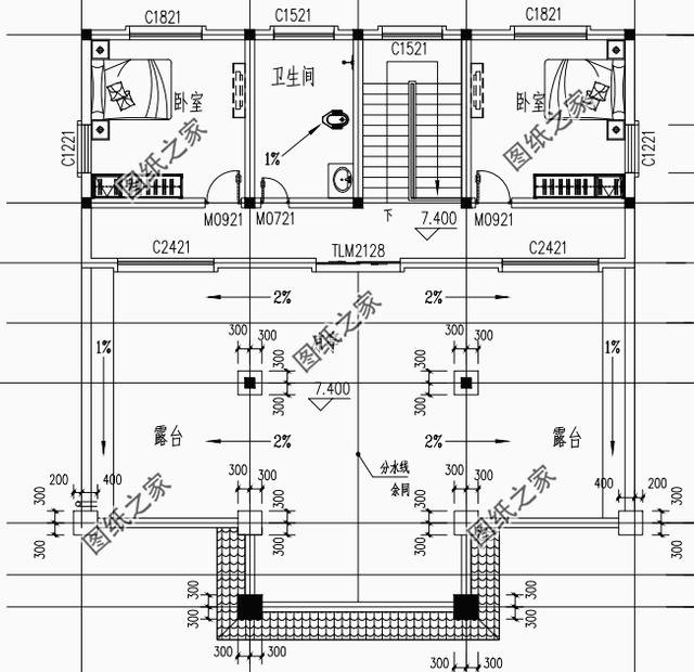
![]() 圖紙介紹:新農村一層簡單自建別墅全套設計圖紙,平屋頂設計,這款一層別墅設計圖占地130平方米左右,門前有走廊,方便日常生活,室內布局實用且合理,親戚來串門也不怕沒有地方住了,別墅造價經濟,施工簡單,非常適合農村建造。 占地面積:12.8m*10m,130平方米左右; 建筑層高:一層; 建筑高度:4.8米(含屋頂); 設計功能: 一層戶型:客廳、餐廳、廚房、主臥(帶衛生間)、臥室x3、衛生間; ![]() 別墅圖紙二:普通簡單的平屋頂二層房子設計圖
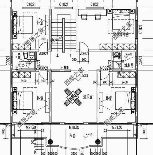
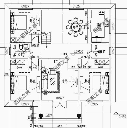
![]() 圖紙介紹:農村平屋頂房子設計圖,外觀普通簡單,建 占地面積:12.6m*11.6m,151.04平方米左右; 建筑層高:二層; 建筑高度:11.3米(含屋頂); 設計功能: 一層戶型:客廳、廚房、餐廳、臥室x3、衛生間、儲藏室; 二層戶型:臥室兼書房、娛樂室、臥室x3、衛生間、洗衣房、陽臺; ![]() ![]() 別墅圖紙三:農村三層小洋樓設計圖紙,兩層半別墅帶屋頂花園
![]() 圖紙介紹:農村三層小洋樓設計圖紙,兩層半別墅帶屋頂花園自建房,平屋頂設計,簡歐風格,室內的采光和通風非常好,通透的室內給主人一個舒適的居住空間。屋面挑出外墻,防止雨水滲透腐蝕外墻,屋頂設計美觀,層次分明,非常適合農村家庭建造。 占地面積:13.8m*14.3m,170平方米左右; 建筑層高:三層; 建筑高度:11.7米(含屋頂); 設計功能: 一層戶型:門廳、走廊、客廳、廚房、餐廳、儲藏間、臥室x2、衛生間; 二層戶型:客廳、臥室x4、衣帽間、衛生間x2、陽臺、露臺; 三層戶型:臥室x2、衛生間、涼亭、露臺; ![]() ![]() ![]() 以上就是農村別墅平屋頂設計圖,屋頂可以曬曬糧食,夏天還可以到屋頂睡覺,開個爬梯,喜歡哪款,歡迎下方留言。
圖紙之家-專注農村別墅/自建房設計18年,集合國內200余位經驗豐富的設計師,被評為口碑最好的農村建筑設計公司! |

新農村四合院別墅圖片及戶型方案圖,全套圖紙可施工
占地:154平方米左右
一層中式仿古三合院設計圖,實用又大氣,百年不過時
占地:366.67平方米
現代三層農村民房設計圖及圖片,外觀高端、大氣
占地:196平方米
美式二層別墅設計圖,含外觀效果圖,造型精美
占地:144平方米
現代簡約時尚二層帶超大露臺農村別墅戶型,既可以休閑又可晾曬
占地:100.06平方米
農村200平一層別墅房屋設計圖,外觀圖片時尚、漂亮
占地:200平方米
130平米新農村自建房屋施工建筑圖紙及效果圖
占地:132平米
農村二層中式小三合院別墅全套設計圖,民族特色風格
占地:122平方米
新中式三層豪華大氣三層別墅自建房屋設計圖,帶地下室,土豪專
占地:194平方米
四層自建別墅設計圖,有車庫帶露臺,時尚大氣給你一個五星級的
占地:152.51平方米
10套農村經典二層樓房設計圖紙,多戶型,多尺寸,總有一款適合
占地:多種
簡單現代平屋頂兩層四間自建樓房設計圖紙施工方案,簡潔又實用
占地:192平方米
美式風格鄉村兩層小別墅自建房設計圖,外觀圖好看
占地:150平方米
高端歐式四層別墅房屋施工圖紙及效果圖,圓弧大窗
占地:170平方米
面寬20米農村自建房設計圖一層設計圖,五開間養老戶型
占地:194平方米
異形宅基地二層農村別墅設計圖,現代風時尚又大氣
占地:242.03平方米
160平方米現代新農村四合院兩層別墅施工圖紙及效果圖
占地:157平方米
110平左右農村復式二層小樓設計圖,外觀非常受歡迎
占地:112平方米
新農村二層帶露臺經濟型小別墅設計圖紙,含外觀效果圖
占地:120平方米
農村120平方房子設計圖,三層房屋設計圖精選
占地:120平方米
推薦:10套新農村自建房設計圖,2026年最新設計
閱讀次數:4825737次
100套鄉村別墅圖片大全,2026年最新設計
閱讀次數:2492203次
6款農村蓋一層平房的設計圖,10萬元就能建起來
閱讀次數:1852637次
這11個一層農村自建房別墅火爆了朋友圈!我最喜歡戶型十!你呢
閱讀次數:750268次
農村6萬元建一層小別墅圖,你敢相信嗎
閱讀次數:567686次
農村5萬塊就能自建房,6套普通房子設計圖分享,你沒看錯!
閱讀次數:419410次
8套農村漂亮三間平房圖片,非常適合在農村修建!
閱讀次數:411197次
農村自建房化糞池怎么做?附方案及施工過程
閱讀次數:391783次
農村一層三間平房設計圖,告別土氣養老房,讓人忍不住點贊
閱讀次數:350581次
新農村二層樓房圖片造價12萬,挑一套回家建房吧!
閱讀次數:349126次
