圖紙介紹:本戶型為美式二層別墅設計圖,含外觀效果圖,造型精美,外墻配色耐看,12x12正正方方地基尺寸,符合中國人的喜好,客廳中空設計,寬敞、明亮,戶型布局緊湊,空間利用率高。
占地面積:12.0m*12.0m,144平方米左右;
建筑層高:二層;
建筑高度:8.2米(含屋頂);
設計功能:
一層房屋戶型:客廳、廚房、餐廳、臥室x2、衛生間、書房;
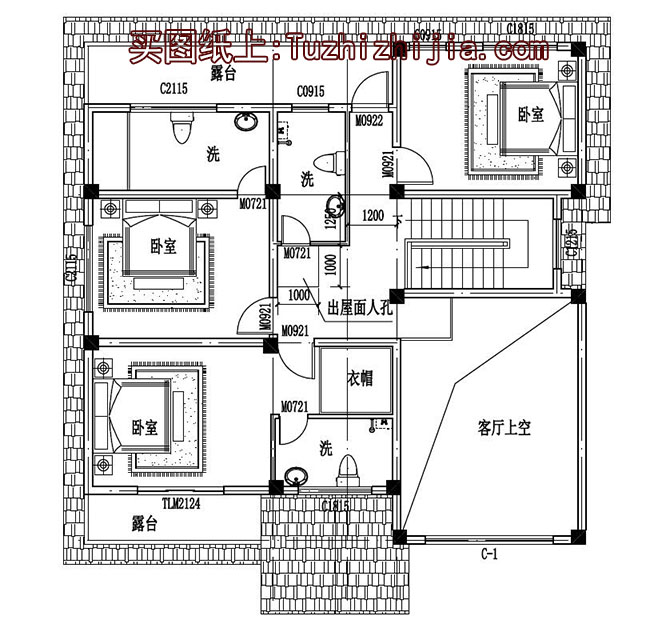
二層房屋戶型:客廳上空、主臥(帶衛生間、帶書房)、臥室(帶衛生間)、臥室、露臺x2;
圖紙目錄:
建 筑 圖:建筑施工總說明、建筑構造設計說明、一層平面圖、二層平面圖、屋頂平面圖、正立面圖、背立面圖、左立面圖、右立面圖、1-1剖面圖、門斗大樣圖、樓梯大樣圖、節點大樣圖、門窗表等;
結 構 圖:結構設計總說明、結構常用大樣圖、基礎平面布置圖、一層頂梁結構平面圖、一層頂板結構平面圖、坡屋頂梁結構平面圖、坡屋頂板結構平面圖、樓梯配筋大樣圖等;
給排水圖:給排水設計總說明、一層給排水平面圖、二層給排水平面圖、屋頂給排水平面圖、衛生間給排水詳圖、給排水系統圖等;
電 氣 圖:電氣設計說明、設備材料表、等電位聯結做法、配電系統圖、一層照明平面圖、二層照明平面圖、一層插座平面圖、二層插座平面圖、一層弱電平面圖、二層弱電平面圖、基礎接地平面圖、屋頂防雷平面圖等;
全套圖紙+高清效果圖,拿到即可施工!

































































































