
|
別墅圖紙一:二層復式小別墅設計圖,樓中樓結構,外觀漂亮,簡單
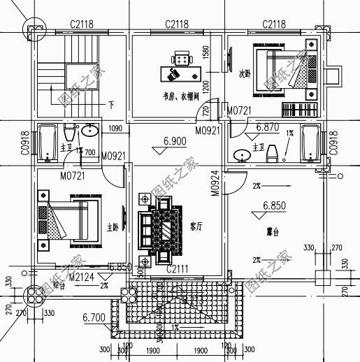
![]() 圖紙介紹:本戶型為二層復式別墅設計方案,樓中樓結構,客廳中空,帶屋頂花園,空間利用極高。本戶型戶型合理,采光通風良好;別墅外觀美觀大氣,富有現代氣息,占地面積133平方米,建筑面積238平方米。 占地面積:11.04m*11.34m,120平方米左右; 建筑層高:二層; 建筑高度:9.20米(含屋頂); 設計功能: 一層別墅戶型:客廳(中空)、臥室x2、廚房、餐廳、衛生間、倉庫 二層別墅戶型:臥室x3、衛生間、陽臺、屋頂花園 ![]() ![]() 別墅圖紙二:2020兩層半農村自建房圖,簡歐風格,美觀大氣
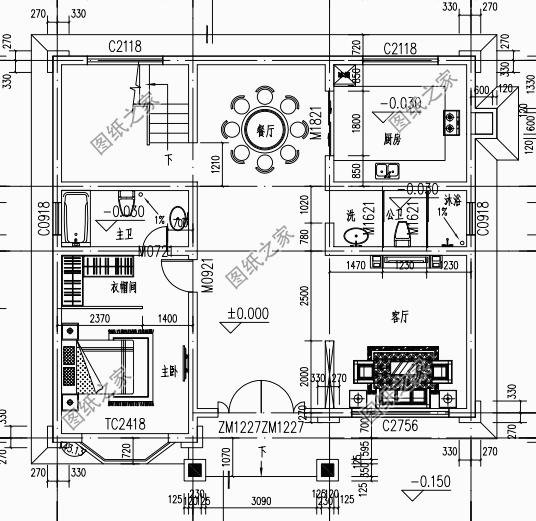
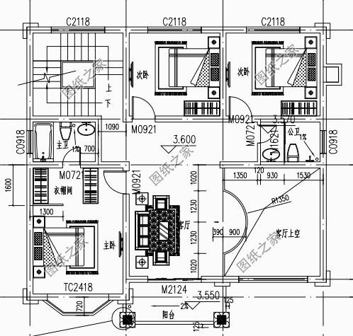
![]() 圖紙介紹:2019兩層半農村自建房設計圖,簡歐風格,美觀大氣大露臺很實用。農村建房,要求不僅外觀要美,更要求室內布局要實用。蓋房子是為了給自己和家人一個溫馨舒適的生活環境。這款別墅占地面積不大,布局實用舒適,外觀大氣漂亮,是多少人夢想的家的樣子。 占地面積:11.5m*10.5m,一層占地120平方米左右; 建筑層高:三層; 建筑高度:12.8米(含屋頂); 設計功能: 一 層:客廳、廚房、餐廳、臥室(帶衛生間、衣帽間)、衛生間、洗衣房; 二 層:客廳上空、客廳、臥室(帶衣帽間、衛生間)、臥室x2、衛生間、陽臺; 三 層:客廳、臥室(帶衛生間)、臥室(帶書房、衛生間)、大露臺、陽臺; ![]() ![]() ![]() 別墅圖紙三:四層簡單新農村房屋設計圖紙,適合農村自建
![]() 圖紙介紹:四層簡單新農村房屋設計圖紙,適合農村自建,相當大氣,帶坡屋頂農村別墅,大落地窗,簡約清新,別墅外墻采用真石漆裝飾,簡潔大方。羅馬柱和一些細部構建,突顯房子的雄偉和莊重。 占地面積:16.50m*11.30m,165平方米左右; 建筑層高:四層; 建筑高度:16.76米(含屋頂); 設計功能: 一層戶型:客廳、神位、后廳、餐廳、廚房、臥室、衛生間、臥室(帶衛生間)、化糞池; 二層戶型:客廳、餐廳、廚房、臥室(帶衛生間)x2、臥室、衛生間、露臺、陽臺; 三層戶型:客廳、餐廳、廚房、臥室(帶衛生間)x2、臥室、衛生間、陽臺; 四層戶型:客廳、餐廳、廚房、臥室(帶衛生間)、臥室、衛生間、露臺; ![]() ![]() ![]() ![]() 以上就是120平自建房設計圖紙,外觀簡單漂亮,便于施工,適合農村建房,喜歡哪款,歡迎下方留言。
圖紙之家-專注農村別墅/自建房設計18年,集合國內200余位經驗豐富的設計師,被評為口碑最好的農村建筑設計公司! |

占地130平三層現代別墅設計圖方案,帶電梯和地下室設計
占地:134.75平方米
農村一層四間平房設計圖方案,含外觀圖片,預算10萬
占地:190平方米
農村40萬房子圖片外觀設計效果圖,帶地下室,外觀時尚大氣
占地:110平方米
230平方米豪華歐式二層別墅CAD設計圖紙帶外觀效果圖,21.6×15米
占地:236平方米
一層農村三合院平房設計圖,可以倆兄弟或和父母兒女一起住
占地:202.79平方米
適合7字型宅基地蓋的一層別墅,中式風格設計
占地:163平方米
新中式風格二層住宅設計圖,農村自建房不土氣
占地:144.5平方米
帶陽光房的二層簡歐別墅圖紙,戶型經典實用
占地:147.2平方米
豪華雙拼三層別墅設計圖,在農村建一棟,將是最靚的風景!
占地:186.85平方米
門廳共用二層歐式兄弟雙拼別墅圖片及施工圖
占地:340平方米
三層復式別墅設計圖紙(含效果圖),復式住宅設計圖精選
占地:147.7平方米
二層自建房子最新款設計圖,平屋頂簡約經濟,美觀不失大方。
占地:115.64平方米
110平方米新農村實用現代的二層建筑設計圖紙帶外觀圖11X10米
占地:110平方米
左右對稱的歐式高端三層別墅設計圖,外觀氣派、豪華
占地:200平方米
300平大戶型豪華三層別墅設計圖,帶總統套房
占地:300平方米
農村三層樓房設計圖及圖片,客廳挑空,優化室內采光
占地:140平方米
140-150平方米新農村別墅設計圖紙,帶外觀效果圖,復式戶型
占地:146平方米
20萬農村自建三層別墅設計圖,外觀美觀,戶型實用
占地:105平方米
巴洛克風格農村二層別墅設計圖(偏法式),對稱式設計,太講究
占地:210.25平方米
帶商鋪挑高的三層別墅房屋設計圖,商鋪挑高,層高比較高
占地:118平方米
推薦:10套新農村自建房設計圖,2026年最新設計
閱讀次數:4825737次
100套鄉村別墅圖片大全,2026年最新設計
閱讀次數:2492203次
6款農村蓋一層平房的設計圖,10萬元就能建起來
閱讀次數:1852637次
這11個一層農村自建房別墅火爆了朋友圈!我最喜歡戶型十!你呢
閱讀次數:750268次
農村6萬元建一層小別墅圖,你敢相信嗎
閱讀次數:567686次
農村5萬塊就能自建房,6套普通房子設計圖分享,你沒看錯!
閱讀次數:419410次
8套農村漂亮三間平房圖片,非常適合在農村修建!
閱讀次數:411197次
農村自建房化糞池怎么做?附方案及施工過程
閱讀次數:391783次
農村一層三間平房設計圖,告別土氣養老房,讓人忍不住點贊
閱讀次數:350581次
新農村二層樓房圖片造價12萬,挑一套回家建房吧!
閱讀次數:349126次
