
|
眾所周知的,我國北方地區冬天氣溫異常寒冷,在農村像大白菜這類的就非常需要一個地窖用來儲存,以免凍壞。而北方的冬天雪也特別厚,平頂房在北方不利于掃雪,會給生活帶來一定的麻煩。 今天房墅中心為北方的朋友帶來一款兩層簡歐別墅,一起來欣賞下吧~
房子基本信息: 開間:25米 進深:11米 建筑面積:511平方米 結構:磚混結構 土建造價:80萬
房子整體為簡歐風格,由于北方天氣比較干冷,所以墻面砌的比較厚,整體看上去一種厚實感。房子一層外墻裝飾采用文化石,防臟耐用,二層采用真石漆與木質建材混搭,簡約又不是氣質。
在北方,冬天雪異常厚,屋頂采用斜頂設計,非常有利于除雪,而在外觀上一些折線的行走與室內相對應,不僅能突出建筑的特點,還能讓造型多樣化。
房子正面效果圖,正面運用大量木質材料裝飾,給這簡約的裝飾上平添了一份氣質,給人視覺上空間層次感強,讓室內室外界限分明。
房子側面效果圖,側面幾根粗壯的承重柱給人一種安全感,仿佛能撐起一片天。二樓側面的小陽臺,讓主臥的人有休閑的空間。
房子側面效果圖,側面的露臺與兩個房間相連,露臺木質闌珊與綠植小盆栽,使得房間也靜謐自然起來;開闊的室外空間打造一個休閑娛樂的場所,豐富使用功能,同時讓建筑的造型也十分美麗。
房子夜景效果圖,室內室外一些多功能夜光燈的搭配下,讓整棟房子璀璨奪目,異常的漂亮。 平面圖欣賞:
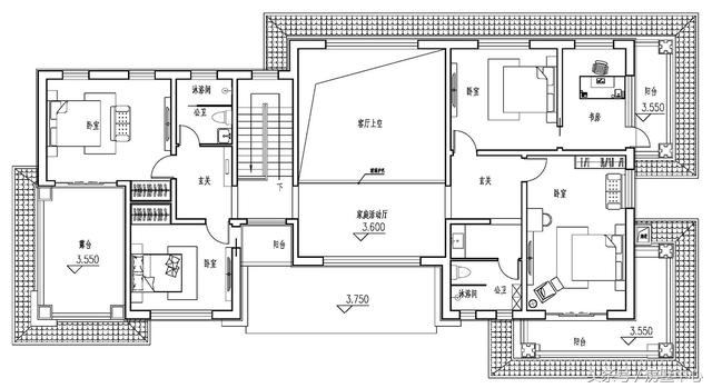
負一層平面圖 房子的地下室平面圖,主要作為酒窖與儲藏室使用,地下室的保溫效果比較好,有利于冬天的北方儲存一些蔬菜,并且設有一個扶梯直接上一樓。
一層平面圖 一層平面圖,入戶設立一避風閣,避免了客廳直接與戶外連接,避風閣也能起到進門的更衣櫥使用;客廳采用挑空設計,本就面積大的客廳,挑空設計讓客廳視覺空間更大。禪室位于西側,戶主是一位信佛的人。廚房的設計為現代廚房和鍋爐房兩種形式,即使家里有老人也方便使用。
二層平面圖 二層平面圖,二層主要作為起居功能使用,每一間臥室的設立都能保證充足的通風與采光,而且東西兩間臥室與陽臺連接,享受最好的居住環境。二層中間家庭活動廳可以作為家人飯后的活動空間,活躍家庭氣氛。
南立面圖
北立面圖
東立面圖
西立面圖 這棟兩層簡歐別墅的設計,無論從外觀還是室內設計都非常適合北方居住,帶酒窖、土灶、鍋爐房,居住使用功能非常齊全。 圖紙之家-專注農村別墅/自建房設計18年,集合國內200余位經驗豐富的設計師,被評為口碑最好的農村建筑設計公司! |

180平方現代風三層別墅設計圖,經典大氣,百看不厭
占地:180.48平方米
新農村三層自建房屋設計圖,含外觀圖片
占地:136平方米
30萬農村小別墅設計圖片,30萬別墅設計戶型推薦
占地:130平方米
農村建房兄弟雙拼三層,經典的歐式風格,大氣的外觀
占地:250平方米
170平方米新農村現代樓中樓三層別墅設計施工圖紙及效果圖
占地:170平方米
奢華歐式二層樓房設計圖,入戶設有玄關,一層大窗設計
占地:190平方米
新農村自建三層樓房設計圖紙,外觀簡單大方
占地:137平方米
農村二層住宅樓圖紙及效果圖,帶地下室,戶型好
占地:220平方米
農村小戶型三層復式樓房設計圖,100平左右
占地:100平方米
帶閣樓兩層半雙拼別墅房屋設計圖,帶外觀效果圖
占地:240平方米
三層新農村自建房屋設計圖紙,占地120平米左右
占地:120平方米
100平二層精致小別墅房屋設計圖,外觀精致、漂亮
占地:100平方米
占地180平方米二層農村新款樓房別墅設計圖,外觀漂亮
占地:180平方米
14米乘10米農村二層別墅新款,外觀對稱設計,經久耐看!
占地:140平方米
村里蓋房圖紙大廳挑空的三層別墅設計圖,面寬不到10米
占地:122.4平方米
320平方米高端農村帶車庫四合院別墅設計圖,徽派韻味十足
占地:320.89平方米
最接農村地氣的二層農村小別墅,造價30萬左右,經濟實用
占地:170平方米
最美二層樓別墅圖片大全及全套建筑設計圖紙,20萬左右
占地:140平方米
廚房在前,簡約歐式二層農村自建別墅設計圖,戶型個性
占地:143.69平方米
美式田園二層別墅設計方案圖,全套設計圖+效果圖
占地:235平方米
推薦:10套新農村自建房設計圖,2026年最新設計
閱讀次數:4825737次
100套鄉村別墅圖片大全,2026年最新設計
閱讀次數:2492203次
6款農村蓋一層平房的設計圖,10萬元就能建起來
閱讀次數:1852637次
這11個一層農村自建房別墅火爆了朋友圈!我最喜歡戶型十!你呢
閱讀次數:750268次
農村6萬元建一層小別墅圖,你敢相信嗎
閱讀次數:567686次
農村5萬塊就能自建房,6套普通房子設計圖分享,你沒看錯!
閱讀次數:419410次
8套農村漂亮三間平房圖片,非常適合在農村修建!
閱讀次數:411197次
農村自建房化糞池怎么做?附方案及施工過程
閱讀次數:391783次
農村一層三間平房設計圖,告別土氣養老房,讓人忍不住點贊
閱讀次數:350581次
新農村二層樓房圖片造價12萬,挑一套回家建房吧!
閱讀次數:349126次
