
|
有很多人跟我說家里早就準備建房了,但是一直找不到滿意的戶型設計圖。所以一直拖到現在,才找到我讓給大家介紹幾款好看的三層半別墅設計圖。所以,今天就給大家推薦三款2020農村新款別墅圖三層半設計,保證讓你的家人看了都心動,喜歡的話收藏圖紙,爭取明年住上新房。
方案一:簡單實用農村三層半別墅自建房設計圖,占地95平方米
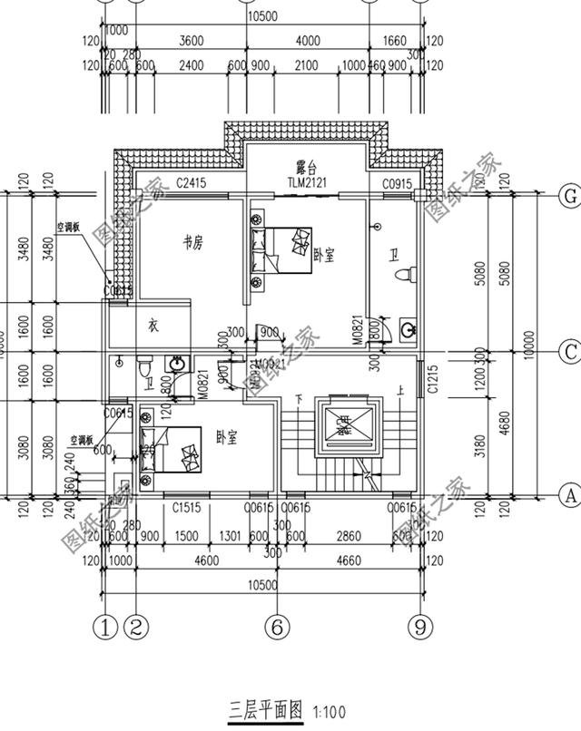
圖紙介紹:本戶型占地95平米,帶電梯,二層以上設置房間都為套間,大 占地面積:9.5m*10.0m,95平方米左右; 建筑層高:四層; 建筑高度:12.7米(含屋頂); 設計功能: 一層戶型展示:客廳、餐廳、廚房、衛生間、電梯; 二層戶型展示:臥室(帶衛生間、衣帽間、露臺)、臥室(帶衛生間)、臥室(帶衣帽間)、衛生間; 三層戶型展示:臥室(帶書房、衣帽間、露臺、衛生間)、臥室(帶衛生間); 四層戶型展示:多功能室、衛生間、大露臺; ![]() ![]() ![]() ![]() ![]() 方案二:農村三層半別墅自建房設計效果圖,占地90平方米左右
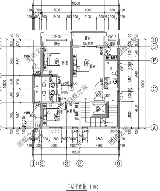
圖紙介紹:這款別墅戶型占地90平方米左右,造價低,外觀溫馨。一層餐廳與廚房相連,干凈衛生;客廳寬敞,可供家人放松休息。二層設有3間臥室,大小合理;陽臺和客廳相連,光線充足;三層臥室設置充裕;四層大露臺寬敞,可以打造成空中花園、露臺燒烤等。 占地面積:9.35m*10.62m,92.17平方米左右; 建筑層高:四層; 建筑高度:15.836米(含屋頂); 設計功能: 一層戶型:客廳、廚房、餐廳、茶室、臥室、衛生間; 二層戶型:客廳、臥室(帶衛生間)、臥室x2、衛生間、陽臺; 三層戶型:臥室(帶衛生間)、臥室x3、衛生間、陽臺; 四層戶型:健身房、多功能區、衛生間、露臺、陽臺; ![]() ![]() ![]() ![]() ![]() 方案三:高端大氣農村三層半別墅設計圖,挑空客廳
圖紙介紹:這款別墅客廳挑空設計,外觀造型經典沉穩大氣,高亮霸氣的歐式羅馬柱完全撐起了房子的豪華高度,厚重簡約,讓整棟建筑威嚴莊重自帶氣場。別墅整體采用對稱設計,再搭配上經典沉穩的外觀造型與厚重簡約的立柱設計,整棟建筑威嚴莊重自帶氣場。 占地面積:12.84m*13.44m,179.52平方米左右; 建筑層高:四層; 建筑高度:15.14米(含屋頂); 設計功能: 一層戶型:門廳、休閑區、客廳、廚房、餐廳、臥室、衛生間; 二層戶型:客廳上空、書房、臥室(帶衛生間)、臥室、衛生間、陽臺; 三層戶型:客廳、臥室(帶衛生間)、臥室(帶衣帽間、衛生間)、臥室、衛生間、陽臺x3; 四層戶型:運動室、臥室、衛生間、露臺; ![]() ![]() ![]() ![]() ![]()
相信各位看完之后會和我一樣心動,這么好看實用的設計圖不收藏還等什么呢? 圖紙之家-專注農村別墅/自建房設計18年,集合國內200余位經驗豐富的設計師,被評為口碑最好的農村建筑設計公司! |

鄉村兄弟小戶型雙拼一層房屋設計圖,雙拼別墅格局精煉,實用性
占地:160平方米
陽臺封閉的簡約實用二層別墅設計圖,15x12.8米
占地:165平方米
歐式新農村自建三層建筑施工設計圖紙及效果圖大全
占地:106平方米
新農村三層豪華歐式別墅,復式高端自建房設計圖紙及效果圖
占地:多種戶型
歐式三層豪宅樓設計圖紙及外觀效果圖,占地180平左右
占地:177.82平方米
歐式二層5大間別墅設計圖,新穎獨特的外觀,面寬20米
占地:180.14平方米
農村三層樓房設計圖紙及效果圖,經典自建圖紙
占地:201平方米
農村二層帶車庫四合院別墅設計圖,新中式外觀圖片,戶型實用方
占地:247平方米
140平方米歐式三層別墅建筑設計圖紙,復式結構
占地:140平方米
新農村簡歐三層樓房圖片自建3層別墅施工設計圖及效果圖
占地:126平方米
二層自建房子最新款設計圖,平屋頂簡約經濟,美觀不失大方。
占地:115.64平方米
帶車庫新農村二層四間別墅設計效果圖帶全套建筑施工圖,217平方
占地:217.21平方米
農村三層復式樓房住宅設計圖,私人別墅設計
占地:165平方米
豪華新中式兩層半農村別墅設計圖,繁華之外,心之所向
占地:290.4平方米
16米乘12米農村二層別墅設計圖,布局舒適寬敞、客廳挑空
占地:188.18平方米
偏徽派風格民居三層農村住宅設計圖,白墻黛瓦的古雅簡潔
占地:101.01平方米
歐式三層農村別墅設計圖,占地130平方米自建房,低調又奢華鄉村
占地:129.8平方米
230平方米豪華歐式二層別墅CAD設計圖紙帶外觀效果圖,21.6×15米
占地:236平方米
鄉村最美三層別墅設計圖自建房戶型,外觀圖精致漂亮
占地:134平方米
農村二層半別墅設計圖,簡單實用,造價低
占地:140平方米
推薦:10套新農村自建房設計圖,2026年最新設計
閱讀次數:4825737次
100套鄉村別墅圖片大全,2026年最新設計
閱讀次數:2492203次
6款農村蓋一層平房的設計圖,10萬元就能建起來
閱讀次數:1852637次
這11個一層農村自建房別墅火爆了朋友圈!我最喜歡戶型十!你呢
閱讀次數:750268次
農村6萬元建一層小別墅圖,你敢相信嗎
閱讀次數:567686次
農村5萬塊就能自建房,6套普通房子設計圖分享,你沒看錯!
閱讀次數:419410次
8套農村漂亮三間平房圖片,非常適合在農村修建!
閱讀次數:411197次
農村自建房化糞池怎么做?附方案及施工過程
閱讀次數:391783次
農村一層三間平房設計圖,告別土氣養老房,讓人忍不住點贊
閱讀次數:350581次
新農村二層樓房圖片造價12萬,挑一套回家建房吧!
閱讀次數:349126次
