
|
對于一般家庭來說,蓋房子建兩層就夠了。一層太矮,太不起眼,三層又太高,如果家里人少的話多余的房間也是浪費,所以二層剛剛好。房子豪不豪華不重要,住著舒適就好。今天給大家推薦三款農村普通樓房二層設計圖,簡單實用,戶型方正,非常受農村人歡迎的三款背書,主體造價也低,在農村建在適合不過了。
款式一:新中式農村二層樓房設計圖,占地150平米,簡單大氣又時尚
![]() ![]() 圖紙介紹:本戶型簡單大氣又時尚,住在其中可以給您不一樣的感覺。室內布局設計非常合理,空間利用率高;多采光窗增強室內采光和通風。 ![]() ![]() 占地面積:13.7m*12.1m,150平方米左右; 建筑層高:二層; 建筑高度:10.5米(含屋頂); 設計功能: 一層戶型:客廳、餐廳、廚房、臥室×2、衛生間; 二層戶型:客廳、臥室×4、娛樂室、衛生間、陽臺;
款式二:農村簡單實用二層自建樓房設計圖,占地136平米左右
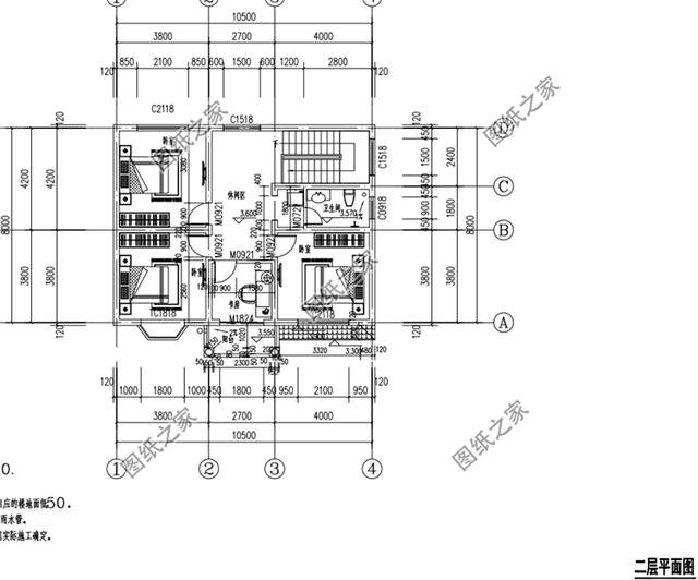
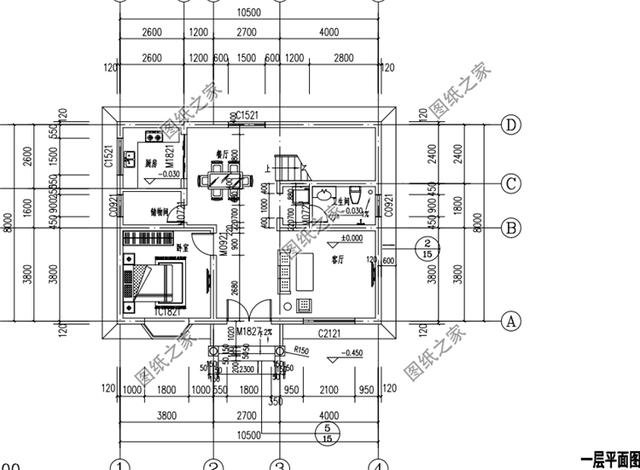
![]() 圖紙介紹:本戶型簡單實用,占地140平方米左右,整體歐式風格,但是外觀簡潔干凈利落;入戶就是堂屋,在農村堂屋肯定是需要的,方便放置神位;二樓主要是休息區,有四個臥室,足夠滿足一般家庭居住,南側還有小客廳向外延伸有陽臺,可以晾曬衣服。 ![]() ![]() 占地面積:12.72m*10.26m,136.08平方米左右; 建筑層高:二層; 建筑高度:10.777米(含屋頂); 設計功能: 一層戶型:堂屋、客廳、廚房、餐廳、儲藏間、臥室x2、衛生間; 二層戶型:小客廳、臥室x4、衛生間、陽臺;
款式三:農村造價15萬二層小樓設計圖,造價經濟,簡潔好看
![]() ![]() 圖紙介紹:這款別墅占地90平米,造價15萬左右,一共四間臥室,雖然戶型面積不大,但是很實用,空間利用率高。外觀看上去簡潔大方。 ![]() ![]() 占地面積:10.5m*8.0m,88平方米左右; 建筑層高:二層; 建筑高度:9.6米(含屋頂); 設計功能: 一層戶型:客廳、餐廳、廚房、衛生間、臥室、儲藏間; 二層戶型:臥室×3、衛生間、書房、陽臺; 你們喜歡哪一款呢?可以先收藏圖紙,等著建房的時候用。
圖紙之家-專注農村別墅/自建房設計18年,集合國內200余位經驗豐富的設計師,被評為口碑最好的農村建筑設計公司! |

320平方米高端農村帶車庫四合院別墅設計圖,徽派韻味十足
占地:320.89平方米
130平氣派美觀的二層別墅房屋設計圖,含效果圖
占地:130平方米
小戶型經濟型三層雙拼小別墅施工設計圖紙,單戶100平內
占地:150平方米
鄉下一層自建養老平房戶型圖及全套圖紙,占地面積200左右
占地:200平方米
新中式別墅一層自建房設計,戶型實用緊湊
占地:170.54平方米
農村一層中式三合院別墅設計圖紙,外觀漂亮極了
占地:195平方米
農村二層別墅優選設計圖,戶型小巧精致,顏值與實用并存!
占地:95.25平方米
二層農村自建四合院設計圖,中式外觀古樸有質感200-300平方米
占地:270平方米左右
11X10米三層別墅農村自建房設計圖,復式挑空客廳
占地:119.08平方米
160平小開間大進深農村三層別墅設計圖紙
占地:158.73平方米
最新農村20萬元二層半別墅設計圖,占地僅110多平
占地:110平方米
現代別墅設計圖紙帶效果圖,85平、100平、145平三個戶型方案
占地:多種戶型
獨立餐廳廚房,平屋頂現代風格三層別墅設計圖
占地:159.02平方米
120平方米新農村房屋設計圖紙,新中式效果圖,3層住宅設計方案
占地:120平方米
帶架空層車庫/地下室自建一層別墅設計圖,隔潮又能儲物
占地:91.32平方米
簡單漂亮實用的三層自建房設計圖,帶露臺,占地170平方米
占地:170平方米
造價65萬左右的三層歐式別墅房屋設計施工CAD圖紙及效果圖
占地:178平方米
一層新中式三合院設計,建好城里大平層都不香了
占地:294.12平方米
150平米簡單大方的三層農村自建房設計圖,坡層頂,色彩鮮明,布
占地:150平方米
對稱一層農村養老別墅設計方案,室內戶型布局合理,14x12米
占地:141.46平方米
推薦:10套新農村自建房設計圖,2026年最新設計
閱讀次數:4825737次
100套鄉村別墅圖片大全,2026年最新設計
閱讀次數:2492203次
6款農村蓋一層平房的設計圖,10萬元就能建起來
閱讀次數:1852637次
這11個一層農村自建房別墅火爆了朋友圈!我最喜歡戶型十!你呢
閱讀次數:750268次
農村6萬元建一層小別墅圖,你敢相信嗎
閱讀次數:567686次
農村5萬塊就能自建房,6套普通房子設計圖分享,你沒看錯!
閱讀次數:419410次
8套農村漂亮三間平房圖片,非常適合在農村修建!
閱讀次數:411197次
農村自建房化糞池怎么做?附方案及施工過程
閱讀次數:391783次
農村一層三間平房設計圖,告別土氣養老房,讓人忍不住點贊
閱讀次數:350581次
新農村二層樓房圖片造價12萬,挑一套回家建房吧!
閱讀次數:349126次
