圖紙介紹:小戶型經濟型三層雙拼小別墅施工設計圖紙,普通農村雙拼樓房方案,造價低,單戶100平以內,外立面選擇暖黃色外墻磚,與藍色的坡屋頂結合,整體配色有濃有淡。視覺感上,讓建筑很沉穩。屋頂的老虎窗作為歐式別墅的經典元素,使得建筑整體風格更為純粹完整。老虎窗提供的采光和通風能力也極大地優化了頂層室內空間的舒適性。
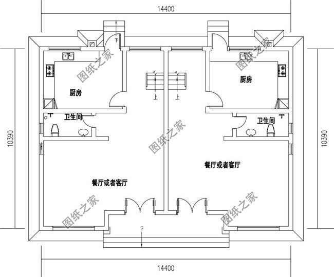
占地面積:14.4m*10.39m,150平方米左右,單戶75平左右;
建筑層高:三層;
建筑高度:11.52米(含屋頂);
設計功能:
一層:餐廳或客廳、廚房、衛生間;
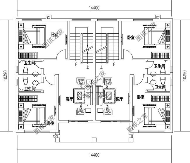
二層:客廳、臥室(帶衛生間)、臥室、衛生間、陽臺;
三層:備用房、臥室(帶衛生間)、臥室、衛生間、露臺;
圖紙目錄:
建 筑 圖:建筑施工說明、建筑構造設計說明、一層平面圖、二層平面圖、三層平面圖、屋頂平面圖、正立面圖、背立面圖、左立面圖、右立面圖、1-1剖面圖、樓梯大樣圖、節點大樣圖、門窗大樣圖、門窗表等;
結 構 圖:結構設計說明、大樣圖、基礎平面布置圖、一層柱配筋圖、二層柱配筋圖、三層柱配筋圖、一層頂梁平法施工圖、二層頂梁平法施工圖、頂層梁平法施工圖、一層頂板結構平面圖、二層頂板結構平面圖、頂層板結構平面圖、樓梯配筋圖等;
給排水圖:給排水設計說明、一層給排水平面圖、二層給排水平面圖、三層給排水平面圖、衛生間大樣圖、給排水系統圖等;
電 氣 圖:電氣設計說明、電氣設備材料表、等電位聯結做法、配電系統圖、弱電系統圖、配電干線系統圖、一層照明平面圖、二層照明平面圖、三層照明平面圖、一層插座平面圖、二層插座平面圖、三層插座平面圖、一層弱電平面圖、二層弱電平面圖、三層弱電平面圖、基礎接地平面圖、屋頂防雷平面圖等
本方案為A3施工圖+彩色效果圖,拿到即可施工。




























































































