
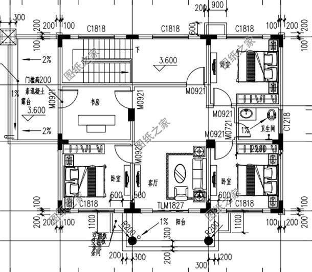
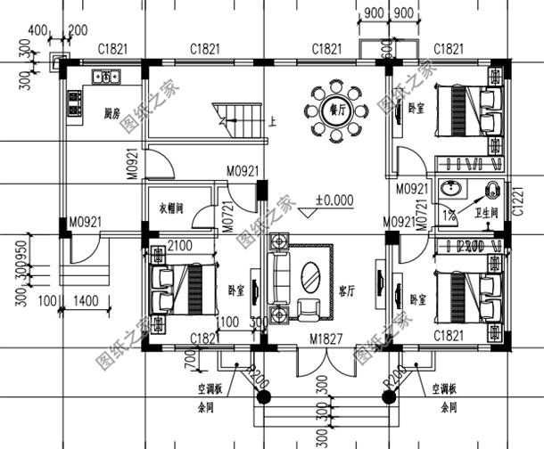
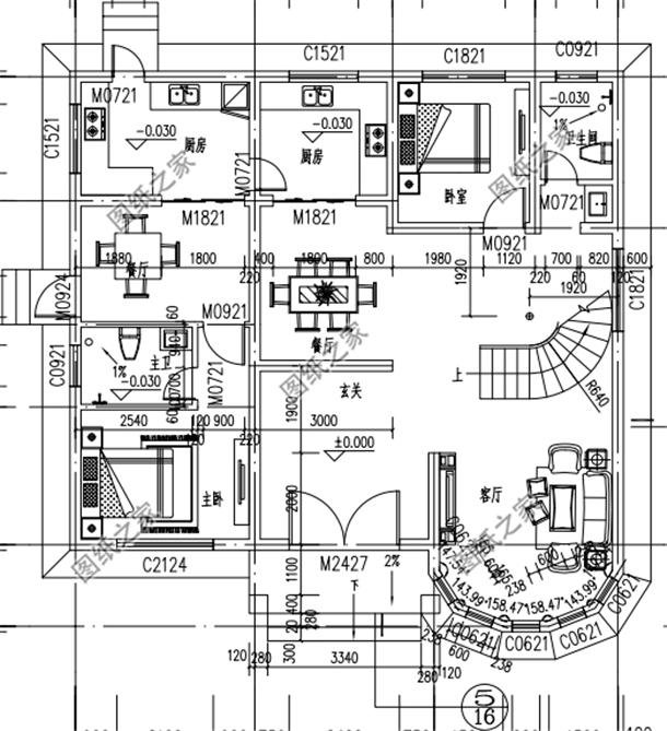
第一款:小型四合院二層悲傷設計圖方案圖紙介紹:新中式二層別墅設計圖,對稱設計,頂層大露臺,內設中空露天庭院,大面積的落地窗設計,使得整體室內光線充足,居住體驗提升。 ![]() 占地面積:11m*10.5m,114平方米左右; 建筑層高:二層; 建筑高度:8.2米(含屋頂); 設計功能: 一層戶型:客廳、餐廳、廚房、衛生間、主臥、書房、庭院; 二層戶型:臥室x2、書房、涼亭茶座、衛生間、大露臺; ![]() ![]() 第二款:新農村自建房二層小樓外觀圖及戶型圖,簡單大方圖紙介紹:新農村自建二層小樓外觀圖及戶型圖,簡單大方,漂亮接地氣。本戶型設計雙廚房雙餐廳,外型精美配色溫暖,帶有大露臺,是一個很溫暖很享受的家。 ![]() 占地面積:11.8m*11.98m,130平方米左右; 建筑層高:二層; 建筑高度:9.9米(含屋頂); 設計功能: 一層戶型:玄關、客廳、餐廳×2、廚房×2、衛生間、主臥(帶衛生間)、臥室; 二層戶型:客廳上空、休息室、主臥(帶衛生間)、臥室(帶衣帽間)、臥室、衛生間、陽臺、大露臺; ![]() ![]() 第三款:簡單時尚二層住宅設計圖紙,簡單的設計圖紙介紹:簡單時尚二層住宅設計圖紙,簡單的設計,不平凡的視覺感受,深淺有度的黃色外墻,搭配協調有質感,小樓二層的陽臺可以親近大自然。 ![]() 占地面積:13.5m*10.2m,110平方米左右; 建筑層高:二層; 建筑高度:9.77米(含屋頂); 設計功能: 一層戶型:客廳、餐廳、廚房、衛生間、主臥(帶衣帽間)、臥室×2; 二層戶型:客廳、、臥室x3、書房、衛生間、陽臺、露臺; ![]() ![]() 以上就是農村最好看兩層樓圖,簡單大方,漂亮接地氣,建起來就是一個很溫暖很享受的家。
圖紙之家-專注農村別墅/自建房設計18年,集合國內200余位經驗豐富的設計師,被評為口碑最好的農村建筑設計公司! |

20萬農村二層小洋樓設計圖,帶鍋爐房,漂亮簡單實用
占地:165平方米
三層半復式別墅設計方案,全套設計圖+效果圖
占地:160平方米
占地90平新中式經濟二層小別墅自建房設計圖,僅15萬
占地:89.3平方米
兄弟兩戶雙拼房屋設計圖及外觀圖片,戶型合理
占地:185平方米
農村13萬元二層小樓圖,簡單易建,造價低
占地:110平方米
農村25萬別墅款式二層自建房設計圖,外觀簡約大氣
占地:多種戶型
帶KTV的四開間的二層別墅設計圖,造型美觀經濟實用
占地:240.22平方米
兩戶250平方米農村豪華歐式三層兄弟雙拼別墅設計圖
占地:251平方米
農村最好看兩層小樓圖及全套CAD施工圖紙,新中式風格,簡潔大氣
占地:150平方米
20萬農村自建三層別墅設計圖,外觀美觀,戶型實用
占地:105平方米
新款農村三層雙拼聯體別墅戶型圖,客廳中空,單戶120平米左右
占地:240平方米
130平左右三層樓房設計圖,新農村住宅自建推薦
占地:128平方米
100平方米左右新農村二層房屋設計建筑CAD圖紙帶外觀效果圖
占地:多戶型可選
農村三層蓋房設計圖大全,最新的設計,最新的戶型
占地:150平方米
110平方米新農村實用現代的二層建筑設計圖紙帶外觀圖11X10米
占地:110平方米
經濟小戶型二層中式四合院(三合院)設計圖紙,帶堂屋和庭院
占地:143.544平方米
復式200平米三層樓房設計圖紙,大露臺還有健身房和書房
占地:200平方米
造價65萬左右的三層歐式別墅房屋設計施工CAD圖紙及效果圖
占地:178平方米
高端大氣的農村四層樓房別墅設計圖,戶型真不錯,占地130多平
占地:135.31平方米
帶電梯高端四層別墅房屋設計圖,外觀圖大氣、上檔次
占地:220平方米
推薦:10套新農村自建房設計圖,2026年最新設計
閱讀次數:4825737次
100套鄉村別墅圖片大全,2026年最新設計
閱讀次數:2492203次
6款農村蓋一層平房的設計圖,10萬元就能建起來
閱讀次數:1852637次
這11個一層農村自建房別墅火爆了朋友圈!我最喜歡戶型十!你呢
閱讀次數:750268次
農村6萬元建一層小別墅圖,你敢相信嗎
閱讀次數:567686次
農村5萬塊就能自建房,6套普通房子設計圖分享,你沒看錯!
閱讀次數:419410次
8套農村漂亮三間平房圖片,非常適合在農村修建!
閱讀次數:411197次
農村自建房化糞池怎么做?附方案及施工過程
閱讀次數:391783次
農村一層三間平房設計圖,告別土氣養老房,讓人忍不住點贊
閱讀次數:350581次
新農村二層樓房圖片造價12萬,挑一套回家建房吧!
閱讀次數:349126次
