
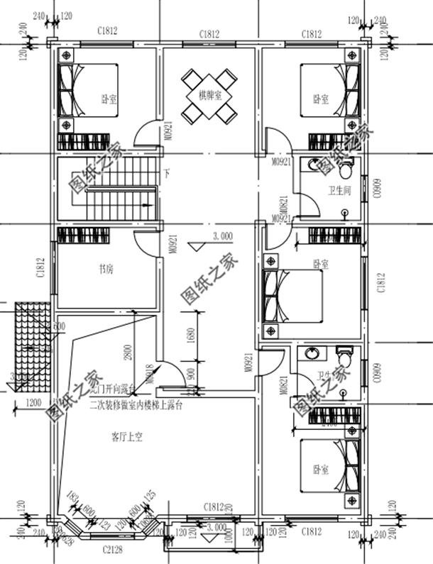
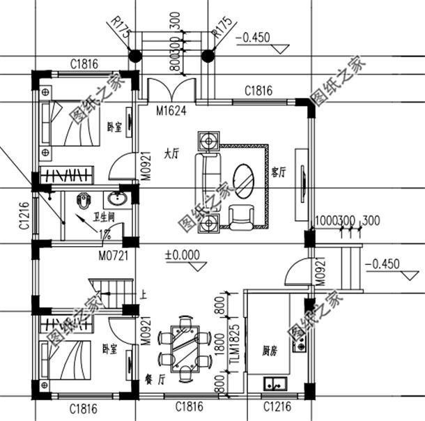
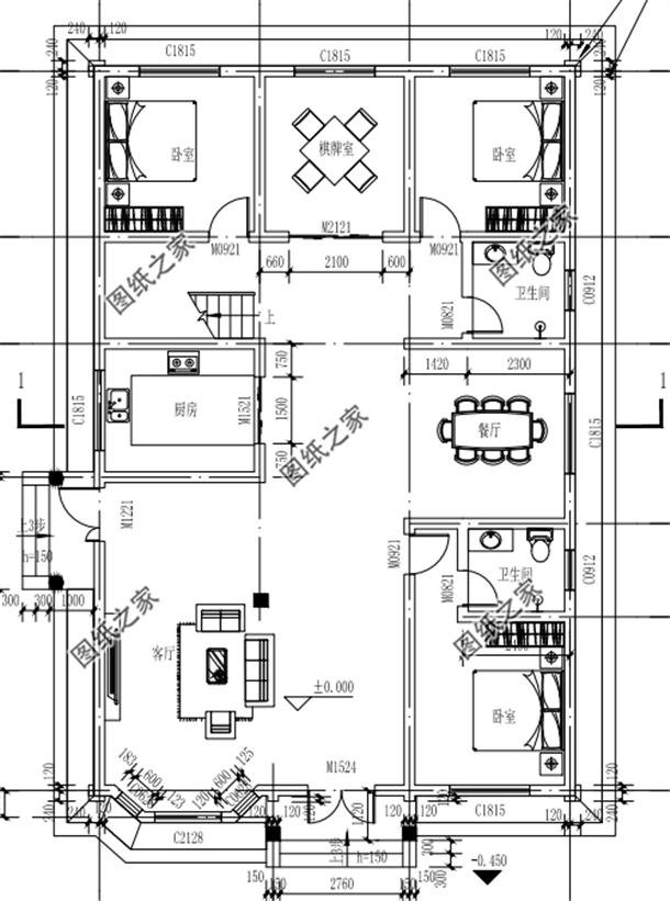
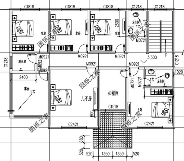
別墅圖紙一:簡單大方四間二層小樓房設計圖,帶車庫圖紙介紹:簡單大方四間二層小樓房設計圖,帶車庫,帶大露臺,擁有一套專業的房屋設計圖比沒有效果圖施工圖,會節省不少的成本,而且也減少很多不必要的麻煩,而且建出的房子效果好很多。 ![]() 占地面積:15.6m*12.8m,180平方米左右; 建筑層高:二層; 建筑高度:9.8米(含屋頂); 設計功能: 一層戶型:玄關、客廳、餐廳、廚房、衛生間、主臥(帶衛生間)、客房、車庫; 二層戶型:主臥(帶衛生間,衣帽間)、兒子房、客房x3、衛生間、洗衣房、大露臺; ![]() ![]() 別墅圖紙二:100平米左右簡單實用二層樓房設計圖圖紙介紹:100平米左右簡單實用的二層樓房設計圖,二層別墅會比一層別墅多一些層次感,但又沒有三層別墅那么多,所以看起來會在簡潔感中多一點華麗。 ![]() 占地面積:9.1m*11.2m,95平方米左右; 建筑層高:二層; 建筑高度:7.5米(含屋頂); 設計功能: 一層戶型:客廳、餐廳、廚房、衛生間、臥室×2; 二層戶型:臥室x2、書房、衛生間、陽臺、大露臺; ![]() ![]() 別墅圖紙三:小開間大進深的二層別墅設計圖紙圖紙介紹:小開間大進深的二層別墅設計圖紙,建在農村就是一道風景。暖色系真石漆外墻防臟防潮,美觀又實用,從設計到選材每個細節都能看出十分用心。內部客廳作挑高設計,高大氣派。 ![]() 占地面積:10.5m*16.1m,177平方米左右; 建筑層高:二層; 建筑高度:6.2米(含屋頂); 設計功能: 一層戶型:客廳、餐廳、廚房、衛生間、主臥(帶衛生間)、臥室×2、棋牌室; 二層戶型:客廳上空、休閑廳、主臥(帶衛生間)、臥室x3、衛生間、書房; ![]() ![]() 以上就是農村新款二層房屋設計圖,挑一個經典實用的設計是很有必要的,畢竟建房可是一輩子的事情啊。
圖紙之家-專注農村別墅/自建房設計18年,集合國內200余位經驗豐富的設計師,被評為口碑最好的農村建筑設計公司! |

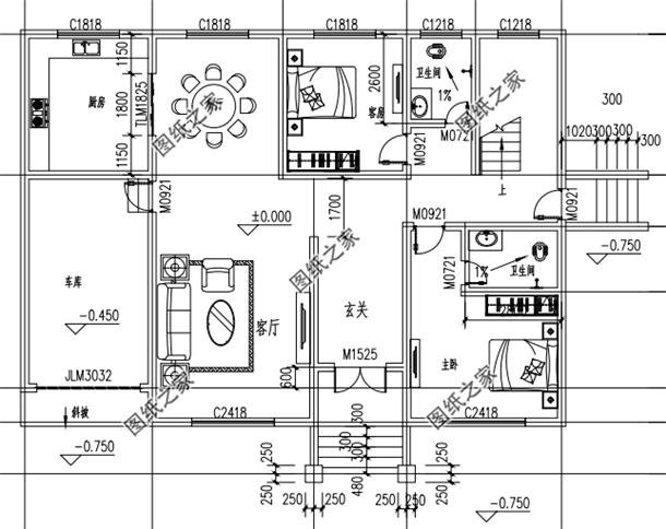
簡單的二層樓房圖片及設計方案,自建樓房必看
占地:140平方米
80平方米三層農村自建民房設計圖,小戶型別墅方案
占地:81平方米
帶閣樓兩層半雙拼別墅房屋設計圖,帶外觀效果圖
占地:240平方米
農村兄弟雙拼別墅三層,美觀氣派,室內布局合理實用
占地:300平方米
造價30萬的三層簡歐新農村別墅設計施工圖紙及效果圖
占地:133平方米
現代二層農村別墅全套設計圖,大旋轉露臺+超大中空客廳
占地:133平方米
140平四層復式別墅房屋設計圖,帶外觀效果圖
占地:140平方米
三層新農村自建房屋設計圖紙,占地120平米左右
占地:120平方米
農村帶車庫兩層歐式農村別墅設計圖紙,占地220平方米左右
占地:221平方米
鄉下建房一層平房設計圖紙及戶型圖,占地150平米左右
占地:150平方米
260平方米兩層帶車庫四合院房屋設計圖紙及效果圖
占地:260平方米
高端大氣三層歐式別墅設計圖,高檔新款外型圖片美觀時尚
占地:168平方米
簡約實用農村自建房戶型圖,美觀經濟又通透,南北通透住得爽!
占地:160.6平方米
兩層中式三合院別墅設計圖紙,堂屋套臥全都有,蓋一棟面子十足
占地:181.93平方米
160平方米三層帶大露臺的復式別墅設計圖紙
占地:155平方米
復式、旋轉樓梯三層別墅設計方案圖,戶型合理、實用
占地:138平方米
農村120平米兩層樓的房子設計圖,外觀新穎
占地:120平方米
140平方米農村三層復式房屋設計施工圖,開放式廚房
占地:143平方米
二層復式小別墅設計圖,樓中樓結構,外觀漂亮,簡單
占地:120平方米
現代三層農村房屋設計圖紙及效果圖,帶全套cad建筑圖
占地:95平方米
推薦:10套新農村自建房設計圖,2026年最新設計
閱讀次數:4825737次
100套鄉村別墅圖片大全,2026年最新設計
閱讀次數:2492203次
6款農村蓋一層平房的設計圖,10萬元就能建起來
閱讀次數:1852637次
這11個一層農村自建房別墅火爆了朋友圈!我最喜歡戶型十!你呢
閱讀次數:750268次
農村6萬元建一層小別墅圖,你敢相信嗎
閱讀次數:567686次
農村5萬塊就能自建房,6套普通房子設計圖分享,你沒看錯!
閱讀次數:419410次
8套農村漂亮三間平房圖片,非常適合在農村修建!
閱讀次數:411197次
農村自建房化糞池怎么做?附方案及施工過程
閱讀次數:391783次
農村一層三間平房設計圖,告別土氣養老房,讓人忍不住點贊
閱讀次數:350581次
新農村二層樓房圖片造價12萬,挑一套回家建房吧!
閱讀次數:349126次
