
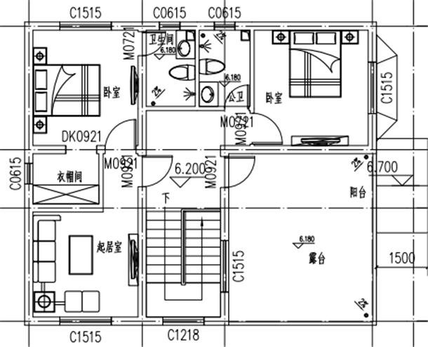
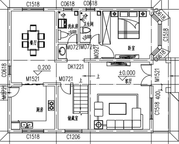
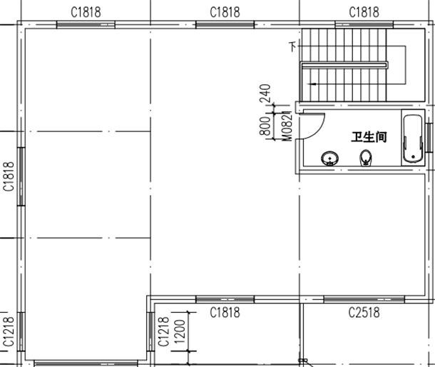
別墅款式一:農村一層簡單自建房設計戶型圖圖紙介紹:一層簡單自建房設計戶型圖,屋內迎面的便是寬敞通透的客廳以及餐廳。設有四間臥室,廚房與餐廳處在同一區域,方便干凈。大面積的門廳給人一種大氣之風,合理利用可以進行適當的植物配置進行裝飾。 ![]() 占地面積:13.76m*9.6m,137.76平方米左右; 建筑層高:一層; 建筑高度:6.3米(含屋頂); 設計功能: 一層戶型:客廳、廚房、餐廳、臥室x4、衛生間x2; ![]() 別墅款式二:農村二層小樓設計圖,外觀簡潔圖紙介紹:本方案為簡單新農村二層住宅設計圖,外觀簡潔,一層戶型布局合理、實用,二層只有一個衛生間,其他空間可以根據需求自行隔斷,可定制性非常高,能滿足各種需求的客戶。 ![]() 占地面積:12.84m*10.74m,138平方米左右; 建筑層高:二層; 建筑高度:9.50米(含屋頂); 設計功能: 一層戶型:客廳、餐廳、廚房、臥室x3、衛生間、樓梯間; 二層戶型:衛生間、可自行隔斷; ![]() ![]() 別墅款式三:80多平米自建房設計圖,農村小別墅經典戶型圖圖紙介紹:本方案為80多平米自建樓房圖,小戶型經典設計。面積雖然不大,但戶型功能齊全,客廳、臥室、廚房、餐廳、衛生間、洗衣房、儲藏間、衣帽間、露臺、陽臺一樣不少。 ![]() 占地面積:8.60m*10.00m,86平方米左右; 建筑層高:三層; 建筑高度:10.85米(含屋頂); 設計功能: 一 層:客廳、廚房、餐廳、臥室、衛生間、洗衣房、儲藏間 二 層:起居室(客廳)、書房(小起居室)、臥室(帶衛生間和衣帽間)、臥室(帶衛生間)、陽臺 三 層:起居室、臥室(帶衛生間和衣帽間)、臥室、衛生間、露臺、陽臺; ![]() ![]() ![]() 以上就是進深10米的農村房屋戶型圖,有一層、二層、三層,進深一樣,各有各的特點,這三款是不是你想要的呢?
圖紙之家-專注農村別墅/自建房設計18年,集合國內200余位經驗豐富的設計師,被評為口碑最好的農村建筑設計公司! |

農村蓋平房設計大全圖,鄉下建房一層戶型圖及效果圖
占地:160平方米
140平二層帶閣樓別墅設計方案圖,外觀圖片色彩明快
占地:140平方米
130平新農村二層住宅設計圖,外觀精致、漂亮
占地:130平方米
氣派的帶旋轉樓梯三層別墅房屋設計圖,戶型很好
占地:150平方米
150平二層別墅房屋設計圖,現代風格,造型精致
占地:150平方米
復式別墅新農村二層房屋設計圖紙,屋頂錯落有致
占地:多戶型可選
農村小別墅一層設計圖紙,外觀漂亮極了,130和160兩個戶型
占地:多種戶型可選
110平方米二層自建小別墅設計CAD施工圖紙帶效果圖,12x13米
占地:110平方米
30萬左右的新農村自建三層別墅施工設計圖紙及效果圖
占地:148平方米
二層自建房子最新款設計圖,平屋頂簡約經濟,美觀不失大方。
占地:115.64平方米
130平帶閣樓兩層半別墅房屋設計圖,含外觀效果圖
占地:130平方米
現代簡約時尚二層帶超大露臺農村別墅戶型,既可以休閑又可晾曬
占地:100.06平方米
農村三層房屋設計圖紙,三層農村住宅設計效果圖,11米*10米
占地:100平方米
帶地下室的一層別墅設計圖,農村自建很實用
占地:192平方米
農村兩層新中式別墅圖紙設計圖,外觀圖片大氣,21萬左右
占地:108平方米
12米×10米左右一層別墅平房戶型圖及設計圖,造價低
占地:110平方米
鄉村三層簡單自建房子設計圖,全部建好34萬左右,外觀簡潔
占地:127.912平方米
農村一層中式三合院戶型設計圖,造型古香古色
占地:215平方米左右
鄉村最美四合院設計圖及外觀效果圖片,國人的理想住宅
占地:280.62平方米
200平農村二層別墅設計圖,外觀現代簡約
占地:204平方米
推薦:10套新農村自建房設計圖,2026年最新設計
閱讀次數:4825737次
100套鄉村別墅圖片大全,2026年最新設計
閱讀次數:2492203次
6款農村蓋一層平房的設計圖,10萬元就能建起來
閱讀次數:1852637次
這11個一層農村自建房別墅火爆了朋友圈!我最喜歡戶型十!你呢
閱讀次數:750268次
農村6萬元建一層小別墅圖,你敢相信嗎
閱讀次數:567686次
農村5萬塊就能自建房,6套普通房子設計圖分享,你沒看錯!
閱讀次數:419410次
8套農村漂亮三間平房圖片,非常適合在農村修建!
閱讀次數:411197次
農村自建房化糞池怎么做?附方案及施工過程
閱讀次數:391783次
農村一層三間平房設計圖,告別土氣養老房,讓人忍不住點贊
閱讀次數:350581次
新農村二層樓房圖片造價12萬,挑一套回家建房吧!
閱讀次數:349126次
