
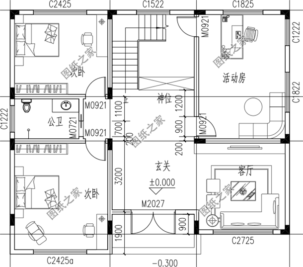
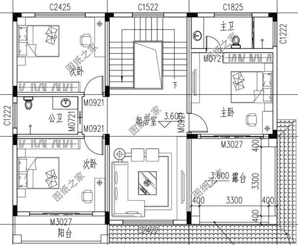
農村別墅一:漂亮的農村二層小樓設計圖紙圖紙介紹:漂亮的農村二層小樓設計圖紙,簡約又時尚大氣,外觀及空間功能搭配都是根據廣大人群需求來設計。 ![]() 占地面積:12.6m*10.1m,126平方米左右; 建筑層高:二層; 建筑高度:9.7米(含屋頂); 設計功能: 一層戶型:玄關、客廳、神位、臥室x2、衛生間、活動房; 二層戶型:起居室、主臥(帶衛生間)、臥室x2、衛生間、大露臺; ![]()
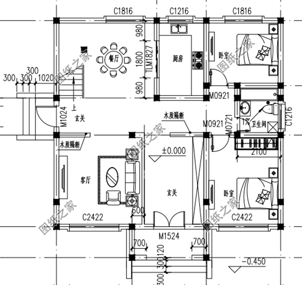
![]() 農村別墅二:鄉下120平米二層樓房設計圖圖紙介紹:鄉下120平米二層樓房設計圖,生活過得很滋潤。城市生活固然方便得多,但個人覺得,在城市里只能叫生存,在農村里才叫生活。 ![]() 占地面積:10.8m*11.5m,120平方米左右; 建筑層高:二層; 建筑高度:8.6米(含屋頂); 設計功能: 一層戶型:玄關、客廳、餐廳、廚房、衛生間、臥室×2; 二層戶型:客廳、主臥(帶陽臺)×2、臥室、書房、衛生間、露臺; ![]()
![]() 農村別墅三:農村別墅款式二層自建房設計圖圖紙介紹:農村別墅款式二層自建房設計圖,占地115平左右,外觀鮮艷亮眼,造型時尚大氣,給人一種清新自然的舒適感,室內布局簡單實用,非常適合農村自建。 ![]() 占地面積:11.06m*9.76m,115平方米左右; 建筑層高:二層; 建筑高度:6.5米(含屋頂); 設計功能: 一層戶型:客廳、餐廳、廚房 、臥室x3、衛生間; 二層戶型:臥室x3、棋牌室、衛生間、露臺; ![]() ![]() 以上就是120平方米的自建房設計圖,配色明亮簡潔,造型優美,低調沉穩的風格才是農村建房朋友所青睞的。
圖紙之家-專注農村別墅/自建房設計18年,集合國內200余位經驗豐富的設計師,被評為口碑最好的農村建筑設計公司! |

155平方米自建二層CAD房屋設計圖紙及效果圖,13X12米
占地:156平方米
小型三層別墅cad建筑圖紙帶效果圖,帶屋頂露臺
占地:101平方米左右
新農村自建20萬二層小樓外觀圖及戶型圖,簡單大方,漂亮接地氣
占地:130平方米
歐式豪華三層別墅設計圖,占地面積170平米,高端大氣帶露臺
占地:170平方米
15×12米一層農村寶藏戶型,適合養老房,看完鄰居直接要圖紙!
占地:180平方米
農村25萬別墅款式二層自建房設計圖,外觀簡約大氣
占地:多種戶型
兩層半帶閣樓別墅房屋設計圖,含外觀效果圖片
占地:118平方米
12x10三層別墅設計圖,農村自建房推薦戶型
占地:120平方米
二層農村自建四合院設計圖,中式外觀古樸有質感200-300平方米
占地:270平方米左右
新農村實用三層帶露臺房屋設計圖紙,占地110平方米
占地:109平方米
帶車庫帶露臺二層農村小別墅設計圖,宅基地大小適中,外觀造型
占地:180平方米
農村一層四開間養老別墅設計圖,造型美布局佳
占地:164.27平方米
造型新穎漂亮的農村二層現代風別墅設計圖,老少皆宜的外觀
占地:144.54平方米
260平方米兩層帶車庫四合院房屋設計圖紙及效果圖
占地:260平方米
100平方米自建房二層設計圖紙及效果圖,12x9米
占地:100平方米
帶雙車庫的新中式二層四合院別墅設計圖,戶型布局實用
占地:321平方米
高顏值又實用的一層雙拼鄉村別墅設計圖,舒適度堪比豪宅
占地:217.3平方米
大氣的美式三層別墅設計圖,外觀效果圖氣派、美觀
占地:148平方米
農村新款二層中式別墅設計圖效果圖,帶堂屋設計
占地:144平方米
氣派的歐式風格三層房子設計圖紙,外觀圖太漂亮了
占地:132平方米
推薦:10套新農村自建房設計圖,2026年最新設計
閱讀次數:4825737次
100套鄉村別墅圖片大全,2026年最新設計
閱讀次數:2492203次
6款農村蓋一層平房的設計圖,10萬元就能建起來
閱讀次數:1852637次
這11個一層農村自建房別墅火爆了朋友圈!我最喜歡戶型十!你呢
閱讀次數:750268次
農村6萬元建一層小別墅圖,你敢相信嗎
閱讀次數:567686次
農村5萬塊就能自建房,6套普通房子設計圖分享,你沒看錯!
閱讀次數:419410次
8套農村漂亮三間平房圖片,非常適合在農村修建!
閱讀次數:411197次
農村自建房化糞池怎么做?附方案及施工過程
閱讀次數:391783次
農村一層三間平房設計圖,告別土氣養老房,讓人忍不住點贊
閱讀次數:350581次
新農村二層樓房圖片造價12萬,挑一套回家建房吧!
閱讀次數:349126次
