
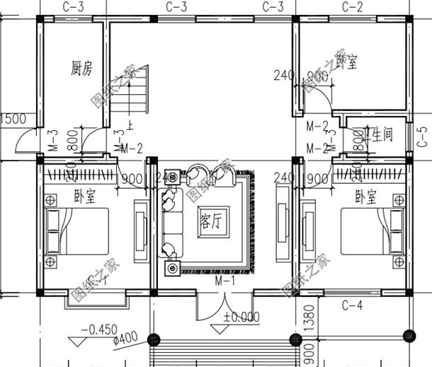
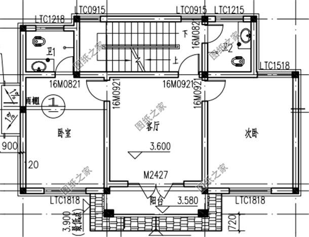
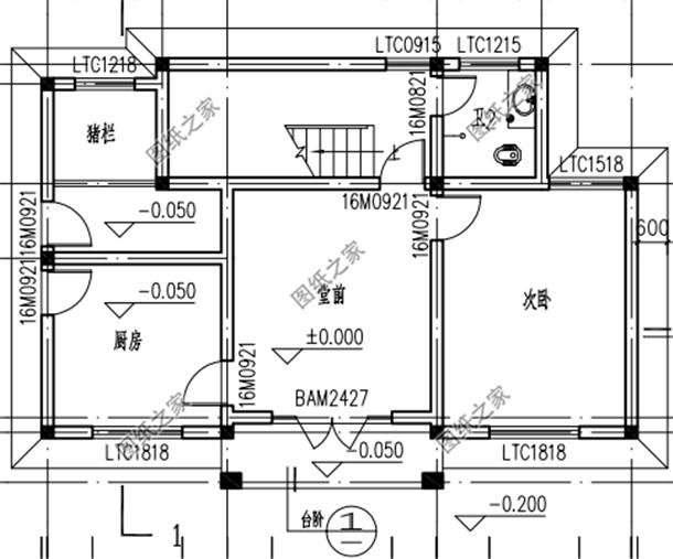
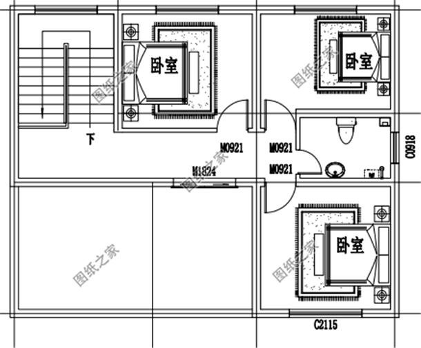
別墅戶型一:110平米三間兩層農村別墅房屋設計圖圖紙介紹:本方案為110平左右三間兩層農村別墅房屋設計圖,戶型經典、外觀造型適合農村自建。 ![]() 占地面積:11.94m*8.94m,107平方米左右; 建筑層高:二層; 建筑高度:8.80米(含屋頂); 設計功能: 一層別墅戶型:客廳、餐廳、廚房、臥室x3、衛生間; 二層別墅戶型:客廳、臥室x3、書房、衛生間; ![]() ![]() 別墅戶型二:11*8米三層別墅房屋設計圖圖紙介紹:本方案為11x9三層別墅房屋設計圖,含效果圖片,本方案戶型簡單、實用,小戶型設計,三層帶大露臺。 ![]() 占地面積:11.0m*8.8m,97平方米左右; 建筑層高:三層; 建筑高度:11.0米(含屋頂); 設計功能: 一 層:客廳、餐廳、臥室、衛生間; 二 層:休閑區、臥室x4、衛生間; 三 層:臥室x3、衛生間、大露臺; ![]() ![]() ![]() 別墅戶型三:實用三層新農村住宅設計圖圖紙介紹:本戶型為100平米左右實用三層新農村住宅設計圖,采光好,臥室多,外觀造型美觀,布局實用,十分適合農村自建。 ![]() 占地面積:11.9m*8.6m,100平方米左右; 建筑層高:三層; 建筑高度:11.8米(含屋頂)坡屋頂; 設計功能: 一層:豬欄、廚房、堂屋、次臥、衛生間; 二層:臥室、客廳、次臥、2間衛生間、陽臺; 三層:露臺、客廳、次臥、衛生間; ![]() ![]() ![]() 以上就是11*8米三款農村住房設計圖,戶型簡單、實用,小戶型設計,十分適合農村自建。
圖紙之家-專注農村別墅/自建房設計18年,集合國內200余位經驗豐富的設計師,被評為口碑最好的農村建筑設計公司! |

160平方米農村三層小別墅設計圖紙,13.8x12.7米
占地:163平方米
百余平三層豪華別墅設計圖,高品位穩重耐看,全村都羨慕的豪華
占地:108.95平方米
新農村三層房屋設計圖紙(含效果圖),農村小別墅圖紙推薦
占地:116.15平方米
大面積農村一層房子設計圖,戶型實用、合理
占地:190平方米
120平帶車庫二層農村別墅施工圖,簡約時尚的外觀
占地:119.13平方米
2026二層農村新款別墅戶型圖,占地不到110平米
占地:110平方米
適合農村自建四合院圖片,中式二層四合院別墅設計施工圖紙
占地:232平方米
帶地下室三層復式別墅設計方案,全套設計圖+效果圖
占地:168平方米
五十萬二層半鄉村別墅,客廳挑空設計,占地200平米左右
占地:200平方米
自建一層農村別墅圖,經濟實用新選擇,建房必備參考戶型!
占地:142.88平方米
新中式農村自建三層別墅房屋施工,12x10米簡潔雅致
占地:121.77平方米
170平米自建三層房屋別墅設計圖紙及效果圖
占地:170平米
135平鄉村三層復式樓房設計圖,自建房推薦
占地:135平方米
200平米二層自建房別墅設計圖,外觀漂亮布局實用
占地:207.09平方米
農村三層蓋房設計圖大全,最新的設計,最新的戶型
占地:150平方米
110平房子設計圖,經典的農村自建房屋設計圖
占地:110平方米
農村仿古四合院設計圖自建房,外觀中式古樸典雅
占地:378平方米
16x14米三層雙拼別墅設計圖,外觀精致大氣內里實用,兄弟建房上
占地:217.28平方米
10萬農村別墅設計圖小戶型,經濟、耐看、實用
占地:多種戶型
四間兩層實用簡約的住房設計圖,毛坯24萬,農村建正合適
占地:159.48平方米
推薦:10套新農村自建房設計圖,2026年最新設計
閱讀次數:4825737次
100套鄉村別墅圖片大全,2026年最新設計
閱讀次數:2492203次
6款農村蓋一層平房的設計圖,10萬元就能建起來
閱讀次數:1852637次
這11個一層農村自建房別墅火爆了朋友圈!我最喜歡戶型十!你呢
閱讀次數:750268次
農村6萬元建一層小別墅圖,你敢相信嗎
閱讀次數:567686次
農村5萬塊就能自建房,6套普通房子設計圖分享,你沒看錯!
閱讀次數:419410次
8套農村漂亮三間平房圖片,非常適合在農村修建!
閱讀次數:411197次
農村自建房化糞池怎么做?附方案及施工過程
閱讀次數:391783次
農村一層三間平房設計圖,告別土氣養老房,讓人忍不住點贊
閱讀次數:350581次
新農村二層樓房圖片造價12萬,挑一套回家建房吧!
閱讀次數:349126次
