圖紙介紹:百余平三層豪華別墅設計圖,高品位穩重耐看,全村都羨慕的豪華房子,別墅為大氣歐式風格,立面歐式羅馬柱,精致的配色,花瓶欄桿,八角窗,歐式元素的裝飾讓整個立面都非常精致接地氣。一層前廳堂屋神位的設計,結合農村生活習俗,實用性強。二、三層的露臺可以休閑養花愜意舒適。
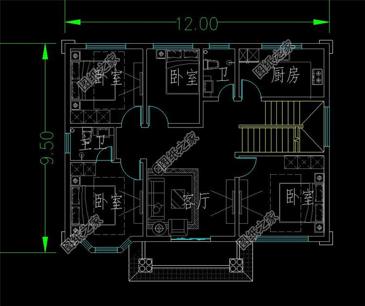
占地面積:12m*9.5m,108.95平方米;
建筑層高:三層;
建筑高度:13.078米(含屋頂);
設計功能:
一層戶型:神位、客廳、餐廳、廚房、臥室(帶衛生間)、衛生間;
二層戶型:小客廳、廚房、臥室(帶衛生間)、臥室x3、衛生間、陽臺;
三層戶型:小客廳、廚房、臥室(帶衛生間)、臥室x3、衛生間、陽臺;
圖紙目錄:
建 筑 圖:建筑設計說明、一層平面圖、二層平面圖、三層平面圖、屋頂平面圖、正立面圖、背立面圖、左立面圖、右立面圖、1-1剖面圖、樓梯大樣圖、門斗大樣圖、節點大樣圖、門窗詳圖、門窗表等;
結 構 圖:結構設計說明、基礎平面布置圖、基礎大樣圖、一層梁結構平面圖、二層梁結構平面圖、三層梁結構平面圖、屋頂梁結構平面圖、二層板結構平面圖、三層板結構平面圖、屋面板結構平面圖、樓梯大樣圖、節點大樣圖等;
給排水圖:給排水設計說明、一層給排水平面圖、二層給排水平面圖、三層給排水平面圖、屋頂給排水平面圖、衛生間大樣圖、給排水系統圖等;
電 氣 圖:電氣設計說明、配電系統圖、弱電系統圖、配電干線系統圖、一層照明平面圖、二層照明平面圖、三層照明平面圖、一層插座平面圖、二層插座平面圖、三層插座平面圖、一層弱電平面圖、二層弱電平面圖、三層弱電平面圖、接地平面圖、屋頂防雷平面圖等;
本套方案包含全套A3設計圖+彩色效果圖。



































































































