
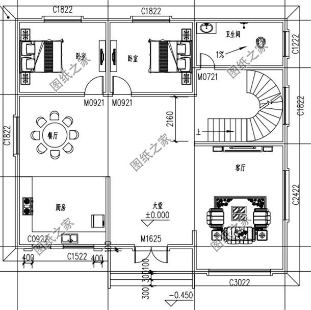
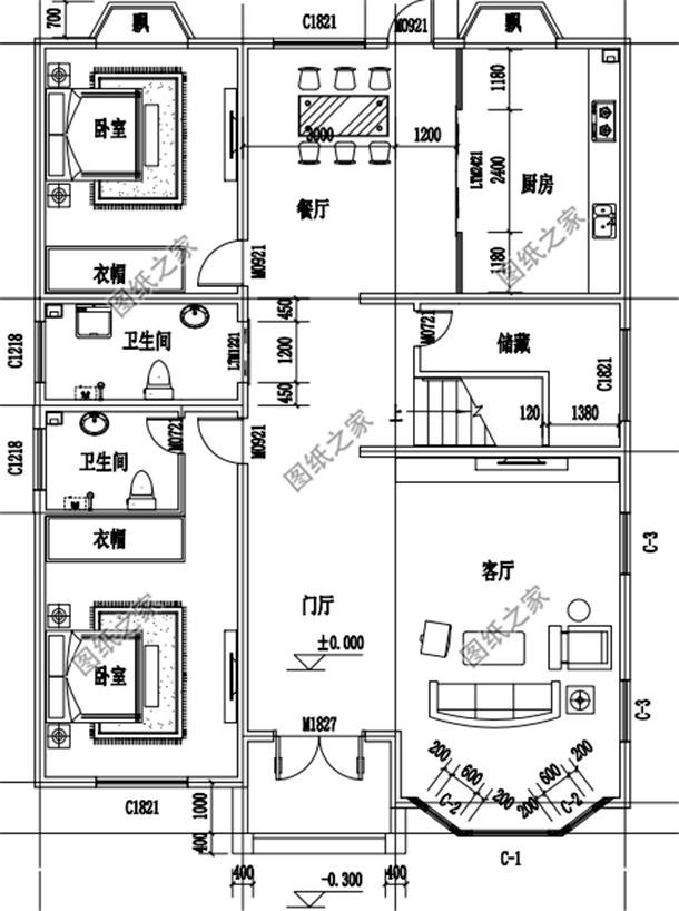
別墅款式一:新農村二層客廳挑高樓房設計圖圖紙介紹:本方案為新農村三層客廳挑高樓房設計圖,外觀歐式風格,精致美觀,戶型布局合理,空間利用率高。 ![]() 占地面積:11.48m*15.48m,178平方米左右; 建筑層高:二層; 建筑高度:8.4米(含屋頂); 設計功能: 一層戶型:門廳、客廳、餐廳、廚房、主臥(帶衛生間)、次臥、衛生間、儲藏間; 一層半:樓梯上到一層半,可以進入露臺; 二層戶型:客廳上空、主臥(帶衛生間)、臥室x2、衛生間、書房、衣帽間; ![]() ![]() 別墅款式二:兩層三間農村房屋設計圖圖紙介紹:本戶型為兩層三間新農村住宅設計圖,精美的外墻,漂內部戶型設計合理,南北通透,采光,通風好,設計師把衛生間放到邊角恰到好處。 ![]() 占地面積:13.0m*12.2m,155平方米左右; 建筑層高:二層; 建筑高度:10.34米(含屋頂); 設計功能: 一層戶型設計:大堂、客廳、餐廳、廚房、臥室x2、衛生間; 二層戶型設計:客廳、主臥(帶衣帽間和衛生間)、臥室x2、衛生間、大露臺、陽臺; ![]() ![]() 別墅款式三:二層半別墅設計圖紙圖紙介紹:戶型為二層半獨棟別墅,帶閣樓,旋轉樓梯,本戶型平面功能分區明確,布置合理;立面造型樸素大方而又活潑別致,色彩清新淡雅,明廚明衛,各使用空間都有較好的采光通風,富有時代氣息。 ![]() 占地面積:12m*10.8m,130平方米左右; 建筑層高:三層; 建筑高度:9.55米(含屋頂); 設計功能:一層設有客廳、餐廳、廚房、洗衣房、儲藏間、臥室、衛生間; 二層設有主臥室(帶衣帽間)、客房帶陽臺、兒童臥室、走入式衣柜、2間衛生間、書房; 閣樓層設有3臥室、衛生間、活動室、露臺; ![]() ![]() ![]() 以上就是三款新農村自建房設計圖紙,漂內部戶型設計合理,南北通透,采光,通風好,空間利用率高。
圖紙之家-專注農村別墅/自建房設計18年,集合國內200余位經驗豐富的設計師,被評為口碑最好的農村建筑設計公司! |

120平方兩層房子設計圖及圖片,外觀大方好看,內部結構合理
占地:120平方米
造型新穎漂亮的農村二層現代風別墅設計圖,老少皆宜的外觀
占地:144.54平方米
簡單漂亮實用的三層自建房設計圖,帶露臺,占地170平方米
占地:170平方米
田園風格別墅設計圖及外觀圖片,樓中樓結構
占地:140平方米
農村一層雙拼別墅設計方案,豐富的室內空間配置,滿足您的生活
占地:358.46平方米
農村兩間三層房屋設計圖,含外觀圖片
占地:120平方米
農村120平三層樓房設計圖,造型現代,帶屋頂花園
占地:120平方米
漂亮實用的新農村二層小樓圖,造價20萬左右,超大景觀露臺
占地:130平方米
現代風格三拼別墅設計圖紙,三兄弟回村自建房戶型
占地:324平方米
帶閣樓的一層半平房設計圖,比樓房還舒適,12米×13米
占地:170.1平方米
150平米二層鄉村小別墅圖,戶型合理,外觀清新淡雅
占地:150平方米
120平米三層小別墅設計方案和效果圖,端莊大氣很經典
占地:120平方米
140平歐式二層半帶露臺的獨棟別墅圖片,含全套設計圖
占地:140平方米
簡潔大氣140平方三層房子設計圖,帶車庫戶型極佳
占地:140平方米
80平方米農村四層房屋設計圖紙及效果圖
占地:80平方米
鄉村兩層半150平帶閣樓別墅房屋設計圖,客廳大、臥室多
占地:150平方米
農村自建二層樓房設計圖及效果圖,二層房屋圖推薦
占地:105平方米
二層門面房自建小樓設計圖紙及效果圖,占地150平
占地:151.83平方米
現代風平屋頂一層自建房設計,經濟時尚
占地:147.17平方米
農村二層中式小三合院別墅全套設計圖,民族特色風格
占地:122平方米
推薦:10套新農村自建房設計圖,2026年最新設計
閱讀次數:4825737次
100套鄉村別墅圖片大全,2026年最新設計
閱讀次數:2492203次
6款農村蓋一層平房的設計圖,10萬元就能建起來
閱讀次數:1852637次
這11個一層農村自建房別墅火爆了朋友圈!我最喜歡戶型十!你呢
閱讀次數:750268次
農村6萬元建一層小別墅圖,你敢相信嗎
閱讀次數:567686次
農村5萬塊就能自建房,6套普通房子設計圖分享,你沒看錯!
閱讀次數:419410次
8套農村漂亮三間平房圖片,非常適合在農村修建!
閱讀次數:411197次
農村自建房化糞池怎么做?附方案及施工過程
閱讀次數:391783次
農村一層三間平房設計圖,告別土氣養老房,讓人忍不住點贊
閱讀次數:350581次
新農村二層樓房圖片造價12萬,挑一套回家建房吧!
閱讀次數:349126次
