
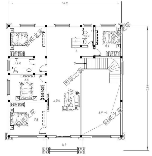
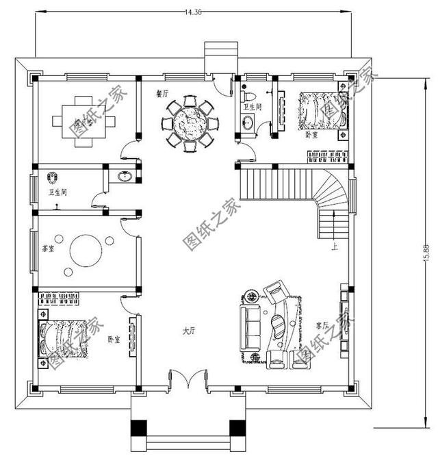
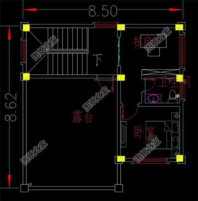
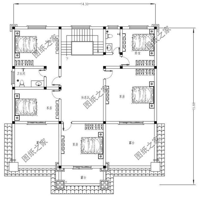
款式一:新農村別墅建筑設計施工圖新農村私人別墅建筑設計施工圖,全套別墅設計圖紙,本戶型外墻采用富有質感的米白色和棕色真石漆裝飾,暖人人心。磚紅色坡屋頂色彩濃烈,彰顯熱情的生活態度。 ![]() 占地面積:14.36m*15.88m,209.07平方米左右; 建筑層高:三層; 建筑高度:13.063米(含屋頂); 建筑結構:磚混結構; 設計功能: 一層戶型:大廳、客廳、娛樂室、茶室、餐廳、臥室(帶衛生間)、臥室、衛生間; 二層戶型:客廳上空、起居室、臥室(帶衛生間)、臥室x3、衛生間、陽臺; 三層戶型:休息區、臥室(帶衛生間)、臥室x4、衛生間、露臺x3; ![]() ![]() ![]() 款式二:新農村小開間三層樓房設計圖新農村三層樓房設計圖,小開間大進深,占地66平米左右。這款別墅雖然占地面積不大,但是外觀優雅端莊,顯得很有品味,配色講究,簡單大方。 ![]() 占地面積:10m*8.62m,66.34平方米; 建筑層高:三層; 建筑結構:框架結構; 建筑高度:11.70米(含屋頂); 設計功能: 一層戶型:客廳、餐廳、廚房、臥室、衛生間; 二層戶型:臥室X3、衛生間、陽臺; 三層戶型:臥室、書房、衛生間、露臺; ![]() ![]() ![]() 款式三:新農村中式三層四合院別墅設計戶型圖新農村中式三層四合院別墅設計戶型圖,外觀造型簡單大方,外墻采用白色涂料,加以淺黃色作為點綴。屋頂采用藍色琉璃瓦,多個坡頂,高低有序,層次分明。 ![]() 占地面積:17.5m*15.2m,234.22平方米左右; 建筑層高:三層; 建筑結構:磚混結構; 建筑高度:12.734米(含屋頂); 設計功能: 一層戶型:客廳、餐廳、廚房、淋浴房、臥室(帶衣帽間)、臥室(帶客廳)、臥室、衛生間x2; 二層戶型:客廳、臥室(帶客廳衛生間)x2、臥室(帶衣帽間衛生間)x2; 三層戶型:茶室、小客廳、臥室(帶衣帽間衛生間)、臥室(帶衣帽間小客廳衛生間)、臥室、衛生間、露臺; ![]() ![]() ![]() 介紹完了農村大氣的三層樓房設計圖,大家還想看哪些款式呢,歡迎下方留言。
圖紙之家-專注農村別墅/自建房設計18年,集合國內200余位經驗豐富的設計師,被評為口碑最好的農村建筑設計公司! |

農村18萬元二層小樓圖,帶開放式車庫
占地:110平方米
110平方米農村三層復式房屋施工圖,通透時尚,低調又奢華
占地:107.98平方米
120平米左右農村房屋設計圖占地面積適宜,外觀舒適大氣
占地:120平方米
五間二層別墅設計圖紙,樓梯設計的無比大氣
占地:300平方米
簡簡單單的二層樓房的設計圖,24萬就能搞定
占地:120平方米
帶車庫的農村四合院別墅設計圖,富貴人家的象征,日子越過越興
占地:219.24平方米
四開間一層自建房設計圖,四臥二廳+棋牌室+書房
占地:181.29平方米
獨棟三層樓房設計圖紙及效果圖,農村蓋房推薦
占地:125平方米
網紅農村一層小別墅設計圖,建一層的必看
占地:多戶型可選
2026年新款一層住宅別墅設計圖紙,中式風格漂亮極了
占地:207平方米
80-90平米二層經典小別墅房屋設計圖,左右對稱外觀
占地:88.46平方米
經典戶型二層農村小別墅設計圖,造價25萬內
占地:140平方米
鄉下建房一層戶型圖,一層住宅設計圖紙,誰說一層平房不能叫別
占地:200平方米
大戶型高端三層別墅設計圖紙,外觀效果圖+CAD建筑圖
占地:227平方米
兄弟倆二層雙拼別墅設計圖紙,一層共用,設計新穎
占地:180平方米
農村一層中式別墅設計圖,經典大氣,布局舒適,面寬20米
占地:192.92平方米
農村三層雙拼別墅設計圖,兄弟建房開間20米,單戶80平方
占地:160平方米
四開間一層半別墅設計圖,帶閣樓設計的戶型方案
占地:190.7平方米
外觀看起來高端、奢華的二層小別墅設計圖,推薦
占地:130平方米
二層半大客廳復式別墅房屋設計圖,客廳寬闊明亮
占地:125平方米
推薦:10套新農村自建房設計圖,2026年最新設計
閱讀次數:4825737次
100套鄉村別墅圖片大全,2026年最新設計
閱讀次數:2492203次
6款農村蓋一層平房的設計圖,10萬元就能建起來
閱讀次數:1852637次
這11個一層農村自建房別墅火爆了朋友圈!我最喜歡戶型十!你呢
閱讀次數:750268次
農村6萬元建一層小別墅圖,你敢相信嗎
閱讀次數:567686次
農村5萬塊就能自建房,6套普通房子設計圖分享,你沒看錯!
閱讀次數:419410次
8套農村漂亮三間平房圖片,非常適合在農村修建!
閱讀次數:411197次
農村自建房化糞池怎么做?附方案及施工過程
閱讀次數:391783次
農村一層三間平房設計圖,告別土氣養老房,讓人忍不住點贊
閱讀次數:350581次
新農村二層樓房圖片造價12萬,挑一套回家建房吧!
閱讀次數:349126次
