
|
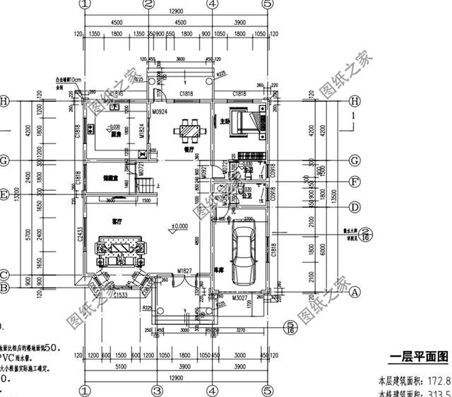
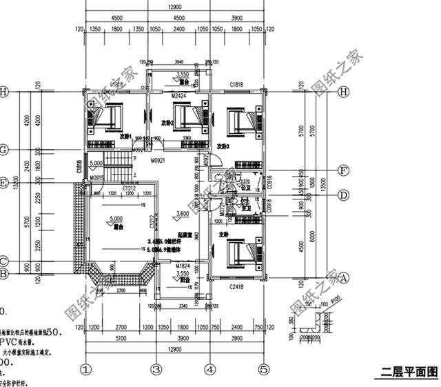
農村建房子講究的就是經濟實用,所以很多朋友都會選擇建個車庫或者地下室的,畢竟車現在在每家每戶都是有的,地下室可以用來儲藏雜物,不占用居住空間,顯得很整潔。今天推薦的這三款農村自建房設計圖,地下室的、車庫的全都有,其中還有一款平屋頂戶型,很適合農村建造,想要建房的朋友們千萬不要錯過。 方案一:農村二層復式別墅設計圖,帶地下室設計圖紙介紹:本戶型占地208平米左右,戶型方正實用,別墅帶有設有地下室,有酒窖、家庭影院等功能齊全,用作休閑娛樂空間,多功能影音室的設計豐富了農村人的閑暇時光。客廳挑空,設計了旋轉樓梯,非常大氣,非常適合農村自建房。 占地面積:17.5m*13.45m,208.98平方米左右; 建筑層高:二層; 建筑高度:9.82米(含屋頂); 設計功能: 地下室戶型:家庭影音、酒窖、棋牌室、儲物間、健身區; 一層戶型:玄關、客廳、餐廳、廚房、臥室(帶衛生間)、臥室(帶衛生間、衣帽間)、車庫; 二層戶型:臥室(帶衛生間、衣帽間、書房)x2、臥室(帶汗蒸房)、露臺x2、陽臺; ![]() ![]() ![]() ![]() 方案二:農村二層別墅設計圖,占地170平米,帶車庫設計圖紙介紹:這款豪華二層別墅占地170平米,帶車庫設計,歐式風格,外觀沉穩,戶型簡單大氣,一點也不會讓人覺得單調乏味,車庫獨立設計,是適合農村建房的好戶型。 占地面積:12.90m*13.50m,170平方米左右; 建筑層高:二層; 建筑高度:9.54米(含屋頂); 設計功能: 一層戶型:客廳、餐廳、廚房 、儲藏室、主臥(帶衛生間)、衛生間、車庫; 二層戶型:起居室、臥室(帶衛生間)、臥室x3、衛生間、露臺、陽臺; ![]() ![]() ![]() ![]() 方案三:農村現代兩層別墅設計圖,平屋頂設計,簡潔實用圖紙介紹:這款二層別墅占地192平米左右,現代風格,平屋頂設計,簡單又實用。門口的玄關很好 占地面積:15.76m*13.26m,192平方米左右; 建筑層高:二層; 建筑高度:11.125米(含屋頂); 設計功能: 一層戶型:客廳、活動室、廚房、餐廳、臥室(帶衛生間)、臥室x2、衛生間; 二層戶型:起居室、書房、臥室(帶衣帽間、衛生間)、臥室x3、衛生間、陽臺x2; ![]() ![]() ![]() 看完了這三款自建房戶型,不知道大家更喜歡哪一套呢?
圖紙之家-專注農村別墅/自建房設計18年,集合國內200余位經驗豐富的設計師,被評為口碑最好的農村建筑設計公司! |

簡單實用農村自建四層小別墅設計圖(三層半),95平米
占地:95平方米
二層精美偏法式風格別墅設計圖,不但顏值高,品質還高
占地:154.17平方米
農村四層雙拼別墅房屋設計圖,造型現代、大氣
占地:220平方米
50萬農村自建三間三層別墅設計圖,占地130平米左右
占地:135平方米
帶院子的四間二層別墅房屋設計圖,帶獨立車庫
占地:350平方米
精致農村別墅圖,150平米一層三合院設計,四臥二廳舒適宜居
占地:149.43平方米
120平二層別墅房屋設計圖,造型美觀、現代
占地:120平方米
2026新款農村三層雙拼自建房設計圖,占地150平米左右
占地:150平方米
造價低經濟簡單的二層農村自建房圖紙設計,簡潔實用
占地:136.08平方米
預算10萬左右新農村自建房屋設計圖紙,帶效果圖
占地:82平方米
面寬20多米二層新中式雙拼別墅設計圖,外觀漂亮時尚
占地:246.66平方米左
新中式三層別墅,旋轉樓梯+挑空客廳,高級感拉滿
占地:125平方米
帶地下室的三層歐式別墅戶型設計圖,帶地下室農村自建房
占地:139.256平方米
180平方現代風三層別墅設計圖,經典大氣,百看不厭
占地:180.48平方米
200平方米農村二層中式四合院設計圖,含外觀圖片
占地:200平方米
二層歐式農村小別墅設計圖,9.5米乘13米,戶型好到鄰居求圖紙
占地:118.32平方米
一二層都帶廚房餐廳的獨棟二層別墅設計圖,帶雙廚房
占地:143.68平方米
帶架空層的農村一層小別墅設計圖,大氣穩重又很實用
占地:123.5平方米
面寬15米一層四間現代風別墅,外觀漂亮布局實用,養老度假超巴
占地:180平方米
鄉村中式四合院二層別墅設計圖,中式韻味十足
占地:223平方米左右
推薦:10套新農村自建房設計圖,2026年最新設計
閱讀次數:4825737次
100套鄉村別墅圖片大全,2026年最新設計
閱讀次數:2492203次
6款農村蓋一層平房的設計圖,10萬元就能建起來
閱讀次數:1852637次
這11個一層農村自建房別墅火爆了朋友圈!我最喜歡戶型十!你呢
閱讀次數:750268次
農村6萬元建一層小別墅圖,你敢相信嗎
閱讀次數:567686次
農村5萬塊就能自建房,6套普通房子設計圖分享,你沒看錯!
閱讀次數:419410次
8套農村漂亮三間平房圖片,非常適合在農村修建!
閱讀次數:411197次
農村自建房化糞池怎么做?附方案及施工過程
閱讀次數:391783次
農村一層三間平房設計圖,告別土氣養老房,讓人忍不住點贊
閱讀次數:350581次
新農村二層樓房圖片造價12萬,挑一套回家建房吧!
閱讀次數:349126次
