
|
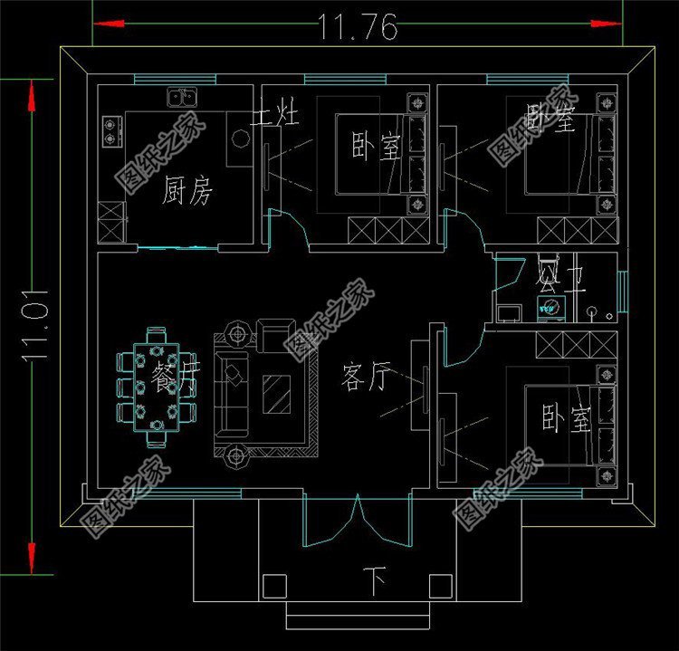
農村老百姓建房,看重的不是房子有多豪華,裝修有多上檔次,而是實用、便宜、有面兒。臥室不能太少,最起碼要保證每一位家人有自己的獨立臥室;客廳得要大,這樣接待才方便。所以小編推薦這四款農村一層自建房設計圖以及戶型圖,來看看吧! 第一款:農村三室兩廳一層小別墅平房設計圖以及戶型圖,外觀簡約![]() 戶型方案實用,可比肩城市別墅,簡單、舒適又省錢!室內布局很簡單,就是常見的客廳餐廳+客房的配備,作為養老房是最合適不過的了,冬天的時候可以自己安裝暖氣,這樣的話家里的老人再也不用擔心老寒腿的問題!簡單的設計歷久彌新,這樣的房子才最適合我們農村人自建生活! 占地面積:11.76m*11.01m,113.4平方米; 建筑層高:一層; 建筑高度:6.583米(含屋頂); 設計功能: 一層戶型:客廳、廚房、餐廳、臥室x3、衛生間; ![]() 第二款:農村四開間一層半別墅設計圖以及戶型圖,帶閣樓設計![]() 年輕人專屬,高顏值低造價,不后悔系列,外觀獨樹一幟,辨識度超高,錯落有致的坡屋頂碰撞出不一樣的火花,古樸與時尚有機結合,閣樓弧窗的設計畫龍點睛,兼具實用性與美觀度 占地面積:16.96m*11.96m,190.7平方米; 建筑層高:一層; 建筑高度:7.6米(含屋頂); 設計功能: 一層戶型:玄關、客廳、廚房、餐廳、臥室(帶衛生間)、臥室x2、衛生間、洗衣房; 閣樓戶型:臥室x3、衛生間、雜物間(可自由安排)x4 ![]() ![]() 第三款:外觀洋氣的農村一層半別墅設計圖以及戶型圖,12x10米帶閣樓戶型![]() 省錢是關鍵!外觀造型錯落有致、穩重大方,整體配套自然和諧,色彩淡雅,與其它色彩搭配有很大的相容性,這種立體感和藝術感讓別墅顯得十分洋氣。屋頂錯落有致,適當的線條勾勒,看似隨性卻又是精心布置的檐線走向,增添一絲活潑靈動感。 占地面積:12m*10m,110.54平方米左右; 建筑層高:一層; 建筑高度:7.364米(含屋頂); 設計功能: 一層戶型:玄關、客廳、廚房、餐廳、臥室(帶衛生間)、臥室、衛生間; 閣樓戶型:活動廳、臥室x3、衛生間; ![]() ![]() 第四款:農村一層新農村設計圖以及戶型圖,主體造價15萬![]() 外觀簡單時尚,造型不復雜,施工難度不大。門外的檐廊也能起到陽臺的作用,進行一番修飾,也是很好的聊天之地。帶有獨立廚房設計,油漬分離,衛生間設在兩邊,都非常方便日常生活。 占地面積:23.36m*10.56m,193.47平方米左右; 建筑層高:一層; 建筑高度:5.774米(含屋頂); 設計功能: 一層戶型:客廳、臥室(帶衛生間)、臥室x4、書房、儲藏室、廚房、餐廳、衛生間 ![]() 以上就是小編推薦的農村自建一層房設計圖以及戶型圖,有喜歡的嗎?給家里父母看看!
圖紙之家-專注農村別墅/自建房設計18年,集合國內200余位經驗豐富的設計師,被評為口碑最好的農村建筑設計公司! |

農村一層養老別墅設計圖,兩個戶型方案可選
占地:多種戶型
110平米一層小別墅設計方案,布局四室兩廳一廚兩衛
占地:110.5平方米
占地70平方米的三層獨棟別墅設計圖,小戶型自建房屋效果圖
占地:70平方米左右
30萬農村小別墅設計圖片,30萬別墅設計戶型推薦
占地:130平方米
新農村四層獨棟復式別墅設計圖,設計豪華時尚
占地:140平方米
17X12米三層雙拼別墅自建房設計圖,歐式風格,戶型方正
占地:190平方米
155平方米自建二層CAD房屋設計圖紙及效果圖,13X12米
占地:156平方米
豪華大氣三層農村自建房設計圖,經典大氣,百看不厭,新中式風
占地:141.75平方米
現代簡約時尚二層帶超大露臺農村別墅戶型,既可以休閑又可晾曬
占地:100.06平方米
簡單大方四間二層小樓房設計圖,帶車庫,帶大露臺
占地:180平方米
100來平復式旋轉樓梯二層簡歐別墅設計圖,戶型實用
占地:101.523平方米
30萬造價三層別墅建筑設計圖紙,戶型利用率高
占地:130平方米
農村中式四合院房屋圖片及設計圖,白墻黛瓦的江南風格
占地:337平方米
簡歐二層別墅設計圖紙含效果圖片,寶家鄉墅經典風格
占地:137.34平方米
農村一層平房別墅設計圖,18米乘9米,實實在在的好戶型
占地:162平方米
110平方米農村兩層別墅設計效果圖及圖紙,12X12米
占地:110平方米
12×11米兩層農村建房圖紙,農村建房最佳戶型,簡單的風格
占地:140平方米
新款中式二層四合院住宅設計圖,農村自建帶露臺設計
占地:223平方米
鄉村三層簡單自建房子設計圖,全部建好34萬左右,外觀簡潔
占地:127.912平方米
13×16米農村自建樓房三層別墅戶型設計圖,大氣
占地:168平方米
推薦:10套新農村自建房設計圖,2026年最新設計
閱讀次數:4825737次
100套鄉村別墅圖片大全,2026年最新設計
閱讀次數:2492203次
6款農村蓋一層平房的設計圖,10萬元就能建起來
閱讀次數:1852637次
這11個一層農村自建房別墅火爆了朋友圈!我最喜歡戶型十!你呢
閱讀次數:750268次
農村6萬元建一層小別墅圖,你敢相信嗎
閱讀次數:567686次
農村5萬塊就能自建房,6套普通房子設計圖分享,你沒看錯!
閱讀次數:419410次
8套農村漂亮三間平房圖片,非常適合在農村修建!
閱讀次數:411197次
農村自建房化糞池怎么做?附方案及施工過程
閱讀次數:391783次
農村一層三間平房設計圖,告別土氣養老房,讓人忍不住點贊
閱讀次數:350581次
新農村二層樓房圖片造價12萬,挑一套回家建房吧!
閱讀次數:349126次
