
|
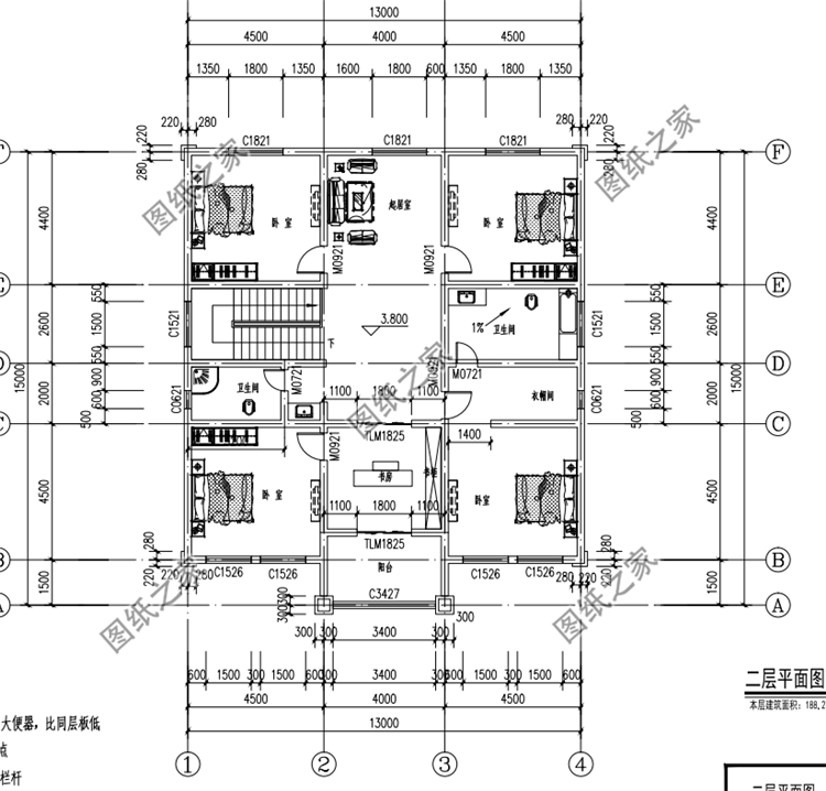
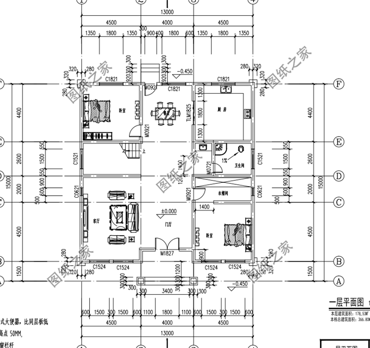
農村建房子和城里買房最大的區別就是建房子可以隨意幾層都行,只要宅基地足夠大,那么想要的風格款式、功能布局都能夠滿足,除了日常居住就餐空間,還能安排一點娛樂空間。今天給大家分享的這三款占地180平米左右二層樓房設計圖,超級大的戶型,看上去就非常的大氣,讓人忍不住也來一棟一樣的。 戶型一:農村二層樓房設計圖,占地180平米,外觀簡單大方圖紙介紹:本戶型占地180平米,外觀造型美觀,簡單大方,占地面積大,戶型非常大氣,室內布局也非常合理,二樓陽臺充分保證室內的采光和通風。 占地面積:13.0m*15.0m,180平方米左右; 建筑層高:二層; 建筑高度:9.9米(含屋頂); 設計功能: 一層戶型:客廳、餐廳、廚房、衛生間、臥室(帶衣帽間)、臥室; 二層戶型:起居室、臥室(帶衣帽間,衛生間)、臥室(帶書房)、臥室×2、陽臺; ![]() ![]() ![]() ![]() 戶型二:農村二層別墅設計圖,占地180平米,帶車庫設計圖紙介紹:本戶型占地180平米左右,面寬16.5米(含車庫),外觀大氣典雅,非常的精美華麗,色彩搭配也深受農村朋友的喜愛。 占地面積:16.56m*12.36m,180.366平方米; 建筑層高:二層; 建筑高度:11.398米(含屋頂); 設計功能: 一層戶型:客廳、廚房、餐廳、臥室(帶衛生間)、臥室、衛生間; 二層戶型:小客廳、棋牌室、臥室(帶衛生間)x2、臥室x3、衛生間、露臺、陽臺; ![]() ![]() ![]() 戶型三:農村二層樓房設計圖,歐式風格,占地180平米左右圖紙介紹:本戶型占地180平米左右,外觀簡單大氣,經典的歐式外觀,暖色外墻搭配藍色坡屋頂,十分好看。室內布局也非常合理,共六間臥室足夠一大家人居住。 占地面積:17.4m*11.8m,180平方米左右; 建筑層高:二層; 建筑高度:9.8米(含屋頂); 設計功能: 一層戶型:玄關、客廳、餐廳、廚房、衛生間、主臥(帶衛生間)、臥室×2、走廊; 二層戶型:客廳上空、客廳、主臥(帶衛生間)、臥室×2、書房、小書房、露臺×2; ![]() ![]() ![]() ![]() 這么大氣的戶型不收藏還在等什么呢?趕快來一棟讓別人羨慕吧。
圖紙之家-專注農村別墅/自建房設計18年,集合國內200余位經驗豐富的設計師,被評為口碑最好的農村建筑設計公司! |

120平米三層30萬別墅圖片大全及全套施工圖,外觀簡潔大方
占地:120平方米
帶堂屋新農村三層房屋別墅設計圖紙,帶外觀效果圖
占地:214平方米
中式二層對稱別墅設計圖,帶地下室設計,整體造價經濟
占地:171.6平方米
面寬8米兩開間四層歐式風別墅,布局實用,小占地大精彩!
占地:100.86平方米
100平內簡單精致的小戶型自建房二層設計圖,旋轉樓梯
占地:97.08平方米
12x10米帶閣樓的農村一層半別墅設計圖,外觀洋氣
占地:110.54平方米
小L型新款二層別墅設計圖,復式客廳旋轉樓梯,14米乘13米
占地:182平方米
一層帶閣樓農村別墅設計圖,多得一層可變空間,太值了!
占地:165.89平方米
面寬16米方正實用二層別墅設計圖,中式風格不輸村里的別墅洋房
占地:182.82平方米
農村10萬自建一層平房設計圖,占地面積120平米
占地:120平方米
三層農村小別墅設計圖,一層帶商鋪,占地110平米,經濟實用
占地:110平方米
帶電梯高端四層別墅房屋設計圖,外觀圖大氣、上檔次
占地:220平方米
兄弟三層雙拼房屋設計圖,帶效果圖,戶型好
占地:256平方米
三層帶車庫樓中樓建房別墅圖紙,占地130平米左右,戶型室內布局
占地:130平方米
經典三層農村房屋設計圖紙,占地100平米左右,外觀典雅精致,內
占地:100平方米
140平三層復式別墅設計圖及外觀效果圖
占地:140平方米
全新農村簡歐風格三層房屋別墅效果圖,110和210兩個戶型,帶電梯
占地:多種戶型
高端二層新中式四合院別墅設計圖,含全套CAD施工圖
占地:217平方米
開間12米的三層簡歐別墅設計圖,農村建房布局實用住的舒服
占地:108.15平方米
美式二層別墅設計圖,含外觀效果圖,造型精美
占地:144平方米
推薦:10套新農村自建房設計圖,2026年最新設計
閱讀次數:4825737次
100套鄉村別墅圖片大全,2026年最新設計
閱讀次數:2492203次
6款農村蓋一層平房的設計圖,10萬元就能建起來
閱讀次數:1852637次
這11個一層農村自建房別墅火爆了朋友圈!我最喜歡戶型十!你呢
閱讀次數:750268次
農村6萬元建一層小別墅圖,你敢相信嗎
閱讀次數:567686次
農村5萬塊就能自建房,6套普通房子設計圖分享,你沒看錯!
閱讀次數:419410次
8套農村漂亮三間平房圖片,非常適合在農村修建!
閱讀次數:411197次
農村自建房化糞池怎么做?附方案及施工過程
閱讀次數:391783次
農村一層三間平房設計圖,告別土氣養老房,讓人忍不住點贊
閱讀次數:350581次
新農村二層樓房圖片造價12萬,挑一套回家建房吧!
閱讀次數:349126次
