
|
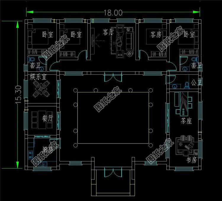
人的一生有很多愿望或者目標,擁有自己的一棟房子,你我想便是其中之一吧。在城里有房,也可以回到家鄉建一棟新房,偶爾遠離城市的喧囂,擁抱農村的幽靜又何嘗不是一件美事呢?就一棟一層就可以,不用太高簡簡單單就可以,今天小編推薦5款農村一層小樓,絕對不會浪費你家宅基地,每一分錢都花得值。 第一款:農村一層中式合院別墅設計圖以及戶型圖,帶小院子的規劃![]() 有庭有院,風水絕佳,排隊來參觀的人不少灰墻黑瓦,木質窗格,保留四合院的古樸風采,褪去繁復的造型,既保留中式古宅的意蘊,同時更具有生活氣息。大門圍墻也有雕花窗格,注重細節的雕刻,別有一番風味。別墅與山水相接,自然融入在大自然的風光秀麗中,好一幅山水田園水墨畫,此情此景只有夢中有,人間哪得幾回聞。四間臥室,足夠一家人居住,兩間帶有獨衛,生活更加方便,也有利于保護個人的隱私性。客廳居于走廊和臥室正中間,將室內布局劃分得更加清晰明了,整個空間合理有序,生活有條不紊。入門就是大庭院,盡顯大戶人家的大手筆,讓人心生敬畏。周圍又是幽深的走廊,凸顯古樸質感。右邊書房茶座,可以引客在此休憩,泡上一壺清茶,盡享片刻悠閑。 占地面積:18m*15.3m,202.15平方米左右; 建筑層高:一層; 建筑高度:6.275米(含屋頂); 設計功能: 一層戶型:客廳、廚房、餐廳、娛樂室、書房、茶座、臥室(帶衛生間)x2、臥室、庭院 ![]() 第二款:帶地下室的一層別墅設計圖以及戶型圖,農村自建房推薦![]() 地下室可以當酒窖或儲物間(大小施工時可以自行調整),廚房就在餐廳的旁邊。四個臥室,家里有老人也可以一起住,還配有內衛,造價經濟,住起來也十分舒適,建起來很氣派,農村建房就選它。 占地面積:17.46m*12.56m,206平方米左右; 建筑層高:一層; 建筑高度:7.051米(含屋頂); 設計功能: 地下室:酒窖; 一層戶型:客廳、廚房、餐廳、臥室X2、臥室(帶衛生間)X2、衛生間 ![]() ![]() 第三款:帶院子的一層農村別墅自建房設計圖以及戶型圖,造價不高,養老房首選![]() 家里有老人家一般比較適合住一樓。別墅外觀是以灰色為主,搭配藍色坡屋頂,整體大氣沉穩,精致美觀,內部布局合理,院子里可以放松休息,同時還能種點花花草草,聽起來還是很美好的。 占地面積:11.83m*12.5m,144.819平方米; 建筑層高:一層; 建筑高度:6.741米(含屋頂); 設計功能: 一層戶型:客廳、廚房、餐廳、臥室X3、臥室(帶衛生間)、儲藏室、衛生間 ![]() 第四款:一層簡單自建房設計圖以及戶型圖,占地面積140平方米![]() 絳紅色的斜坡屋頂清新明快,屋檐的線條輕盈流暢,頗具造型感。黃色墻身素雅簡單,沒有過多的外墻裝飾,但是氣質卻更加平易近人。進入屋內,迎面的便是寬敞通透的客廳以及餐廳。設有四間臥室,廚房與餐廳處在同一區域,方便干凈。大面積的門廳給人一種大氣之風,合理利用可以進行適當的植物配置進行裝飾。 占地面積:13.76m*9.6m,137.76平方米左右; 建筑層高:一層; 建筑高度:6.3米(含屋頂); 設計功能: 一層戶型:客廳、廚房、餐廳、臥室x4、衛生間x2 ![]() 第五款:農村中式一層仿古自建房設計圖以及戶型圖,灰墻青瓦,占地160多平米![]() 外觀中式韻味十足,古典古韻,三間臥室的設計,還帶雜物間,不管從哪個角度看,這棟房子都屬于很舒適的類型;除去居室空間外,剩余最大的面積就是客廳了,相信生活在這樣一棟房子里,定會讓人感到無比舒心! 占地面積:15.6m*10.8m,168.48平方米左右; 建筑層高:一層; 建筑高度:6.63米(含屋頂); 設計功能: 一層戶型:客廳、廚房、餐廳、臥室x3、衛生間、雜物間(地下酒窖) ![]() 以上就是小編推薦的五款農村自建一層小別墅設計圖以及戶型圖,你家想建哪款?評論區告訴我吧!
圖紙之家-專注農村別墅/自建房設計18年,集合國內200余位經驗豐富的設計師,被評為口碑最好的農村建筑設計公司! |

160平方米農村二層別墅設計效果圖帶CAD建筑圖
占地:160平方米
120平方三層房子設計圖,漂亮實用農村自建小別墅設計圖
占地:120平方米
一層農房別墅設計圖紙,140平方米,面寬15米
占地:140平方米
新中式一層合院別墅圖,15米×15.8米,主體造價低至15萬
占地:183.08平方米
140平二層帶閣樓別墅設計方案圖,外觀圖片色彩明快
占地:140平方米
140平方米新農村四層房屋設計圖紙,農村自建推薦
占地:140平方米
地中海風格二層別墅設計圖及效果圖,外觀有格調
占地:125平方米
簡單實用農村自建四層小別墅設計圖(三層半),95平米
占地:95平方米
兄弟合建中式一層四合院設計圖,古樸雅致代代相傳,永不過時
占地:468.03平方米
新農村三層房屋cad建筑設計圖紙,磚混結構
占地:138平方米
兩層樓房設計圖,兩層新農村樓房圖紙,外觀典雅古樸
占地:140平方米
占地70平方米的三層獨棟別墅設計圖,小戶型自建房屋效果圖
占地:70平方米左右
二層樓房圖片及施工圖紙,占地160平米左右,帶車庫
占地:160平方米
農村建房兄弟雙拼三層,經典的歐式風格,大氣的外觀
占地:250平方米
一層時尚農村自建別墅方案,低至10萬的造價,適合住家養老
占地:131.04平方米
三層農村自建房別墅設計圖紙,大廳中空,外觀高端大氣
占地:230平方米
鄉下建房一層戶型圖及全套圖紙,養老房,還是一層好
占地:210平方米
180平方米新農村三層別墅設計圖紙,效果圖+全套cad施工圖
占地:180平方米
12x12農村三層別墅設計圖,自建房屋推薦戶型
占地:148平方米
2026年新款二層半農村自建小別墅設計圖紙,占地150平方米
占地:150平方米
推薦:10套新農村自建房設計圖,2026年最新設計
閱讀次數:4825737次
100套鄉村別墅圖片大全,2026年最新設計
閱讀次數:2492203次
6款農村蓋一層平房的設計圖,10萬元就能建起來
閱讀次數:1852637次
這11個一層農村自建房別墅火爆了朋友圈!我最喜歡戶型十!你呢
閱讀次數:750268次
農村6萬元建一層小別墅圖,你敢相信嗎
閱讀次數:567686次
農村5萬塊就能自建房,6套普通房子設計圖分享,你沒看錯!
閱讀次數:419410次
8套農村漂亮三間平房圖片,非常適合在農村修建!
閱讀次數:411197次
農村自建房化糞池怎么做?附方案及施工過程
閱讀次數:391783次
農村一層三間平房設計圖,告別土氣養老房,讓人忍不住點贊
閱讀次數:350581次
新農村二層樓房圖片造價12萬,挑一套回家建房吧!
閱讀次數:349126次
